Prodej bytu 3+kk, Bad Kleinkirchheim, Rakousko, Wasserfallweg, 65 m2 (ID: 2015207)

Wasserfallweg, Bad Kleinkirchheim

345 000 €
/za nemovitost

Parametry bytu

AdresaWasserfallweg, Bad Kleinkirchheim
ID0188
StavbaCihlová
Stav objektuVelmi dobrý
Patro2. z 4
VybavenoAno
Lokalita objektuKlidná část obce
VlastnictvíOsobní
Užitná plocha65 m2
Podlahová plocha74 m2
Třída energetické náročnostiD - Méně úsporná
Elektřina230V
OdpadVeřejná kanalizace
KomunikaceAsfaltová
TelekomunikaceSatelit
DopravaSilnice, MHD
VodaVodovod
Topné tělesoPodlahové vytápění
Zdroj topeníÚstřední dálkové
Balkon
Garáž
Parkování

Origo partneři

Popis

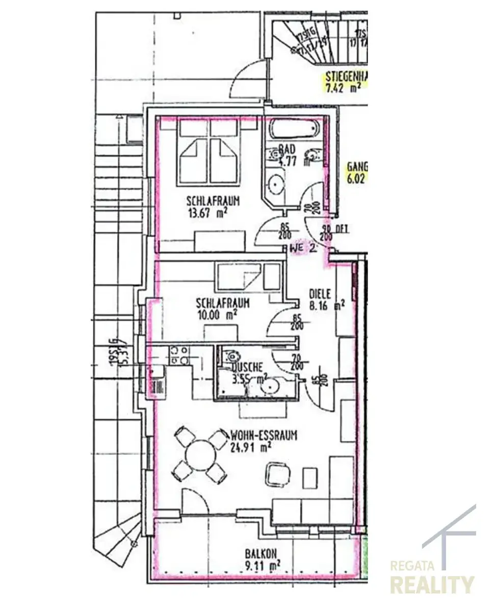
Nabízíme k prodeji stylový byt 3 + kk v širším centru obce Bad Kleinkirchheim v dochozí vzdálenosti od lanovek a termálních lázní. Tento příjemný cihlový byt o celkové ploše 74 m² a užitné ploše 65 m² se nachází ve 1. podlaží čtyřpodlažního objektu a je ihned k dispozici.

Nemovitost je ve velmi dobrém stavu a poskytuje komfortní bydlení. Interiér je vybaven vestavěnými skříněmi, které nabízejí dostatek prostoru pro uložení osobních věcí. Plně vybavená kuchyň zahrnuje spotřebiče a nádobí. Byt disponuje dvěma pokoji na spaní, což je ideální pro rodiny nebo sdílení s přáteli.

Dvě koupelny zajišťují maximální pohodlí, jedna z nich je vybavena vanou, zatímco druhá disponuje sprchovým koutem. V obou koupelnách se nachází toaleta a bidet. Pro milovníky slunce je k dispozici slunný balkon s krásným výhledem na okolní krajinu, kde lze trávit příjemné chvíle během teplých měsíců.

Vytápění je zajištěno centrálním vytápěním biomasou s podlahovým topením, což zaručuje příjemné a rovnoměrné teplo v celém bytě.
Měsíční náklady na bydlení činí 377 € plus elektřina.

K bytu náleží také parkovací místo a garáž, což zajišťuje pohodlné parkování a dodatečný komfort pro rezidenty.

Tento byt v Bad Kleinkirchheimu je ideální volbou pro ty, kteří hledají harmonické a komfortní bydlení s dostatkem prostoru a moderním vybavením. V těsné blízkosti se nachází příroda, která láká k různým aktivitám a relaxaci.

Poznámka RK: V Rakousku hradí kupující provizi realitní kanceláři dle zákona 3,6%, plus daň z nabytí nemovitosti 3,5% a poplatek za zápis do KN 1,1%. Právní a notářské služby se hradí zvlášť. Celkové další výdaje tvoří cca 10-12% z kupní ceny.

V případě zájmu o prohlídku nás neváhejte kontaktovat.

Makléř

Máte zájem o tento byt?

Tímto, v souladu s nařízením Evropského parlamentu a Rady (EU) 2016/679, v platném znění, prohlašuji, že mi je alespoň 16 let a uděluji tak svůj souhlas se zpracováním zadaných údajů (jméno, telefon, e-mail, ip adresa) společnosti B3 Technology, s.r.o., IČ: 07330600, se sídlem Novostavby 126/23, 435 11 Lom (správce dat), za účelem předání dotazu z tohoto formuláře Vámi vybranému inzerentovi a zpětného kontaktování mé osoby. Osobní údaje bude správce zpracovávat manuálně i automaticky přímo prostřednictvím svých zaměstnanců. Informace předané tímto formulářem budou uloženy v databázi správce maximálně po dobu 10 let. Odvolání souhlasu s uložením a zpracováním poskytnutých dat lze e-mailem na info@origo-reality.cz. V případě podezření na neoprávněné použití Vámi poskytnutých údajů máte právo předat podnět k šetření Úřadu pro ochranu osobních údajů. Více informací
Chystáte se prodat nemovitost?
Pomůžeme Vám!

Přihlášení k odběru

Nenechte si ujít nejnovější nabídky prodeje bytů 3+kk.