Prodej zemědělské usedlosti, Rudník, 380 m2

Rudník

8 490 000 Kč
/za nemovitost
Hypotéka od 37 945 Kč /měs. Chci hypotéku

Parametry domu

AdresaRudník
ID938385
StavbaCihlová
Stav objektuPřed rekonstrukcí
VybavenoNe
Druh objektuSamostatný
Lokalita objektuOkraj obce
VlastnictvíOsobní
Užitná plocha380 m2
Plocha pozemku11591 m2

Origo partneři v Rudníku

Popis

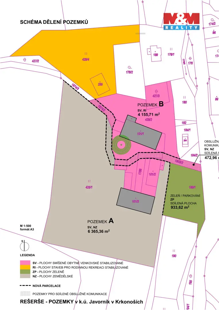
Ve výhradním zastoupení vám nabízíme bývalou zemědělskou usedlost, později penzion, nacházející se v klidné okrajové části obce Javorník v Krkonoších.
Nemovitost je ve stavu před rekonstrukcí, což novému majiteli umožňuje přizpůsobit celý objekt vlastním představám. Součástí prodeje je také projektová dokumentace na přestavbu objektu za účelem vybudování moderního rekreačního zařízení.
Stávající dispozice zahrnuje ubytovací část doplněnou o navazující objekty, ve kterých se nacházejí další dva rozestavěné apartmány a jeden nedokončený dům. Velkou předností je rozsáhlý pozemek o celkové výměře 11 591 m², který nabízí široké možnosti využití – od rozparcelování, až po menší rezidenční projekt.
Klidná poloha na okraji obce poskytuje dostatek soukromí a prostoru, zároveň však zůstává dobře dostupná. Kompletní občanská vybavenost je v nedalekém Trutnově (15 km). Pro více informací a domluvení prohlídky kontaktujte makléře.

Makléř

Máte zájem o tento dům?

Tímto, v souladu s nařízením Evropského parlamentu a Rady (EU) 2016/679, v platném znění, prohlašuji, že mi je alespoň 16 let a uděluji tak svůj souhlas se zpracováním zadaných údajů (jméno, telefon, e-mail, ip adresa) společnosti B3 Technology, s.r.o., IČ: 07330600, se sídlem Novostavby 126/23, 435 11 Lom (správce dat), za účelem předání dotazu z tohoto formuláře Vámi vybranému inzerentovi a zpětného kontaktování mé osoby. Osobní údaje bude správce zpracovávat manuálně i automaticky přímo prostřednictvím svých zaměstnanců. Informace předané tímto formulářem budou uloženy v databázi správce maximálně po dobu 10 let. Odvolání souhlasu s uložením a zpracováním poskytnutých dat lze e-mailem na info@origo-reality.cz. V případě podezření na neoprávněné použití Vámi poskytnutých údajů máte právo předat podnět k šetření Úřadu pro ochranu osobních údajů. Více informací
Chystáte se prodat nemovitost?
Pomůžeme Vám!

Přihlášení k odběru

Nenechte si ujít nejnovější nabídky prodeje zemědělských usedlostí v Rudníku.