Prodej pozemku pro bydlení, Slavče, 1269 m2

Slavče

2 799 000 Kč
/za nemovitost
Hypotéka od 12 510 Kč /měs. Chci hypotéku

Parametry pozemku

AdresaSlavče
ID001904
Stav objektuVelmi dobrý
Lokalita objektuKlidná část obce
Užitná plocha1269 m2
Plocha pozemku1269 m2
KomunikaceAsfaltová
DopravaSilnice, Autobus
Bezbarierový přístup

Origo partneři v Slavči

Výkup a prodej starého nábytku

Pojištění a finance

Popis

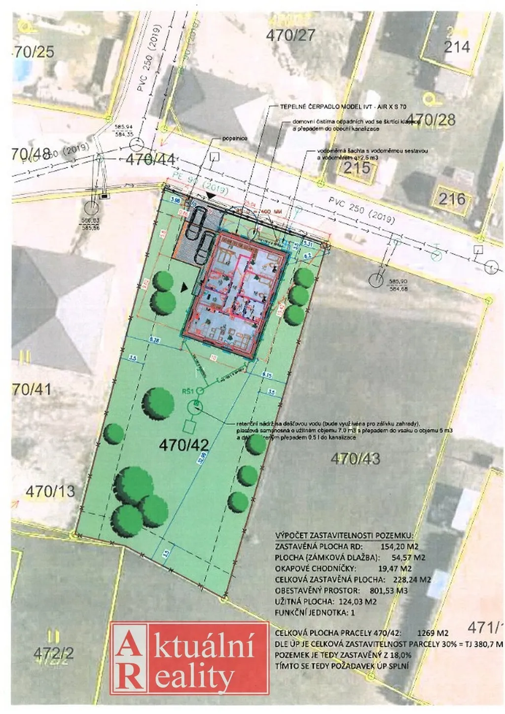
Nabízíme k prodeji pěkný rovinatý pozemek v obci Slavče nedaleko Trhových Svinů. Pozemek se nachází v lokalitě s výstavbou nových rodinných domů v klidné části na okraji obce. Vydáno platné stavební povolení, projekt a veškerá dokumentace součástí ceny - možno ihned stavět. Na pozemku možnost připojení na inženýrské sítě. V obci Slavče se nachází základní občanská vybavenost. Veškerou vybavenost najdete v nedaleko vzdáleném městě Trhové Sviny (cca. 6 km). České Budějovice 25 km. Lokalita je vhodná pro rodiny hledající klidné bydlení a zároveň aktivní styl života - okolí Slavče tvoří kopcovitá zalesněná krajina s téměř nedotčenou přírodou. Oblast láká jak k pěší turistice, tak k cyklistickým vyjížďkám, možnost krásného koupání nabízí malá přehradní nádrž v Dobrkovské Lhotce.
Více informací při osobní prohlídce. DOPORUČUJEME.

Makléř

Máte zájem o tento pozemek?

Tímto, v souladu s nařízením Evropského parlamentu a Rady (EU) 2016/679, v platném znění, prohlašuji, že mi je alespoň 16 let a uděluji tak svůj souhlas se zpracováním zadaných údajů (jméno, telefon, e-mail, ip adresa) společnosti B3 Technology, s.r.o., IČ: 07330600, se sídlem Novostavby 126/23, 435 11 Lom (správce dat), za účelem předání dotazu z tohoto formuláře Vámi vybranému inzerentovi a zpětného kontaktování mé osoby. Osobní údaje bude správce zpracovávat manuálně i automaticky přímo prostřednictvím svých zaměstnanců. Informace předané tímto formulářem budou uloženy v databázi správce maximálně po dobu 10 let. Odvolání souhlasu s uložením a zpracováním poskytnutých dat lze e-mailem na info@origo-reality.cz. V případě podezření na neoprávněné použití Vámi poskytnutých údajů máte právo předat podnět k šetření Úřadu pro ochranu osobních údajů. Více informací
Chystáte se prodat nemovitost?
Pomůžeme Vám!
Theleadway banner

Přihlášení k odběru

Nenechte si ujít nejnovější nabídky prodeje pozemků pro bydlení v Slavči.