Prodej rodinného domu, Březová - Rudolec, 113 m2 (ID: 2012077)

Březová, Rudolec

9 223 000 Kč
/za nemovitost
Hypotéka od 41 221 Kč /měs. Chci hypotéku

Parametry domu

AdresaBřezová, Rudolec
ID938465
Stav objektuVe výstavbě
VybavenoČástečně
Druh objektuSamostatný
Lokalita objektuKlidná část obce
VlastnictvíOsobní
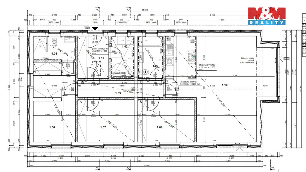
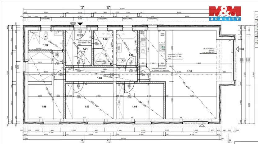
Užitná plocha113 m2
Plocha pozemku930 m2

Origo partneři v Březové

Popis

Sníte o vlastním domě, který si dokončíte dle vlastních představ? Koukněte na rozpracovanou stavbu, která je připravena pro nového majitele. Dům bude se střechou, okna + hs portály osazené kastlíky na venkovní žaluzie, hotové zateplení fasády, hotové sádrové omítky, částečně provedené terénní úpravy, dům napojen na elektřinu, vodu, kanalizaci, hotové elektrorozvody, připraveno stání pro 4 automobily, hotové rozvody podlahového topení, vody, kanalizace, příprava na tepelné čerpadlo, hotové betonové podlahy. Pokud Vás tato lokalita a dům k dokončení oslovil, zavolejte a domluvte si Vaší prohlídku. V rámci obchodu Vás bude kontaktovat naše finanční centrum.

Makléř

Máte zájem o tento dům?

Tímto, v souladu s nařízením Evropského parlamentu a Rady (EU) 2016/679, v platném znění, prohlašuji, že mi je alespoň 16 let a uděluji tak svůj souhlas se zpracováním zadaných údajů (jméno, telefon, e-mail, ip adresa) společnosti B3 Technology, s.r.o., IČ: 07330600, se sídlem Novostavby 126/23, 435 11 Lom (správce dat), za účelem předání dotazu z tohoto formuláře Vámi vybranému inzerentovi a zpětného kontaktování mé osoby. Osobní údaje bude správce zpracovávat manuálně i automaticky přímo prostřednictvím svých zaměstnanců. Informace předané tímto formulářem budou uloženy v databázi správce maximálně po dobu 10 let. Odvolání souhlasu s uložením a zpracováním poskytnutých dat lze e-mailem na info@origo-reality.cz. V případě podezření na neoprávněné použití Vámi poskytnutých údajů máte právo předat podnět k šetření Úřadu pro ochranu osobních údajů. Více informací
Chystáte se prodat nemovitost?
Pomůžeme Vám!

Přihlášení k odběru

Nenechte si ujít nejnovější nabídky prodeje rodinných domů v Březové (okr. Sokolov).