Prodej bytu 6+kk a větší, Pefkochori, Řecko, 200 m2

Pefkochori

1 120 000 €
/za nemovitost

Parametry bytu

AdresaPefkochori
IDF26586
StavbaSmíšená
Stav objektuNovostavba
Patro1. z 3
Lokalita objektuCentrum obce
VlastnictvíOsobní
Užitná plocha200 m2
Podlahová plocha200 m2
Elektřina230V
OdpadVeřejná kanalizace
TopeníLokální elektrické
TelekomunikaceTelefon, Internet
DopravaDálnice, Silnice, Autobus
VodaVodovod
Balkon
Sklep
Terasa
Výtah
Parkování

Origo partneři

Popis

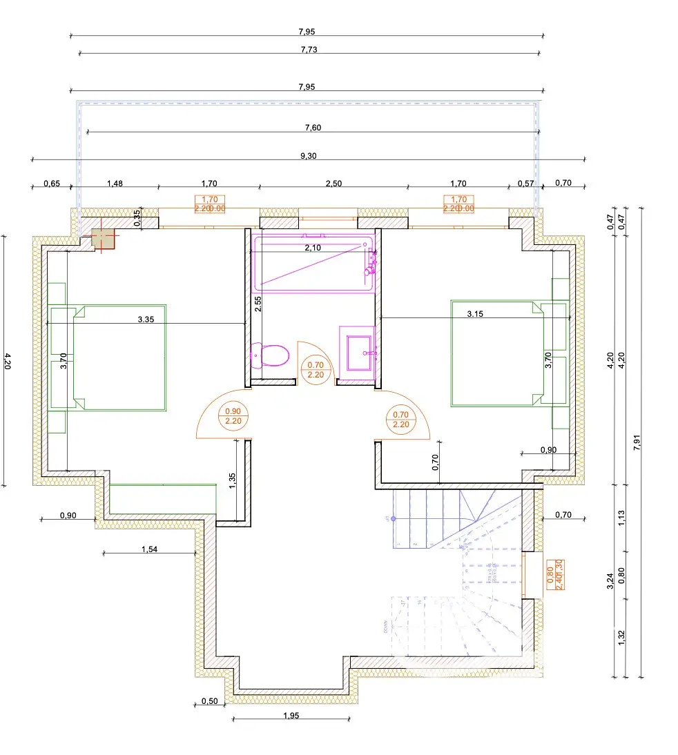
Nabízíme k prodeji novostavbu luxusní vily s 6 ložnicemi, 2 koupelnami a 2 WC, situovanou v oblíbené přímořské destinaci Pefkochori na poloostrově Kassandra, region Chalkidiki, pouze 400 m od moře. Vila je součástí komorního projektu 4 exkluzivních vil, každá s vlastním bazénem a krásným výhledem na moře.

Každá vila nabízí 200 m² obytné plochy a nachází se na soukromém pozemku o velikosti 600–700 m². Dispozice je rozložena do tří podlaží a poskytuje dostatek prostoru i pro větší rodinu nebo investiční pronájem.

V přízemí se nachází prostorný obývací pokoj s jídelnou a plně vybavenou kuchyní, doplněný o samostatné WC. První patro nabízí dvě ložnice s přístupem na velkou terasu a koupelnu. V suterénu jsou umístěny další čtyři ložnice, koupelna, WC a skladovací prostor.

Exteriér vily je navržen pro maximální komfort – soukromý bazén, venkovní posezení s BBQ, zahrada a parkování.

Hlavní benefity vily:
- 6 ložnic, 2 koupelny, 2 WC
- obytná plocha 200 m²
- pozemek 600–700 m²
- soukromý bazén
- terasa s výhledem na moře
- plně vybavená italská kuchyně
- klimatizace, příprava na centrální vytápění (tepelné čerpadlo)
- solární ohřev vody
- bezpečnostní systém, satelitní TV
- příprava pro nabíjení elektromobilu
- venkovní BBQ
- soukromé parkování

Pefkochori je vyhledávané letovisko na poloostrově Kassandra, známé svými krásnými plážemi, čistým mořem a bohatou občanskou vybaveností. V docházkové vzdálenosti se nachází restaurace, obchody i supermarkety.

Vzdálenosti:
- pláž cca 400 m
- restaurace a obchody cca 900 m
- nemocnice cca 15 km
- letiště Thessaloniki cca 80 km

Tato vila představuje ideální volbu pro luxusní rekreační bydlení, rodinný dům u moře i investici s vysokým výnosem z pronájmu v jedné z nejoblíbenějších oblastí severního Řecka.

Splňte si sen o vlastním bydlení u moře a dopřejte si životní styl Řecka, který je symbolem luxusu a svobody. S námi – lídrem na trhu se stovkami spokojených zákazníků máte jistotu profesionálního servisu a špičkové péče po celou dobu koupě.

Makléř

Máte zájem o tento byt?

Tímto, v souladu s nařízením Evropského parlamentu a Rady (EU) 2016/679, v platném znění, prohlašuji, že mi je alespoň 16 let a uděluji tak svůj souhlas se zpracováním zadaných údajů (jméno, telefon, e-mail, ip adresa) společnosti B3 Technology, s.r.o., IČ: 07330600, se sídlem Novostavby 126/23, 435 11 Lom (správce dat), za účelem předání dotazu z tohoto formuláře Vámi vybranému inzerentovi a zpětného kontaktování mé osoby. Osobní údaje bude správce zpracovávat manuálně i automaticky přímo prostřednictvím svých zaměstnanců. Informace předané tímto formulářem budou uloženy v databázi správce maximálně po dobu 10 let. Odvolání souhlasu s uložením a zpracováním poskytnutých dat lze e-mailem na info@origo-reality.cz. V případě podezření na neoprávněné použití Vámi poskytnutých údajů máte právo předat podnět k šetření Úřadu pro ochranu osobních údajů. Více informací
Chystáte se prodat nemovitost?
Pomůžeme Vám!

Přihlášení k odběru

Nenechte si ujít nejnovější nabídky prodeje bytů 6+kk a větší.