Pronájem bytu 2+kk, Praha - Modřany, Mezi vodami, 71 m2

Mezi vodami, Praha 4 - Modřany

25 500 Kč
/za měsíc
+ 2.000 Kč garážové stání + zálohy za poplatky 2 osoby/ měsíc 3.650 Kč + elektřina cca 900 Kč + vratná kauce 1 nájem + provize RK 1 nájem
Získejte výhodnou HYPOTÉKU Chci hypotéku

Parametry bytu

AdresaMezi vodami, Praha 4 - Modřany
ID0140
StavbaCihlová
Stav objektuNovostavba
VybavenoNe
Lokalita objektuKlidná část obce
VlastnictvíOsobní
Užitná plocha71 m2
Třída energetické náročnostiB - Velmi úsporná

Origo partneři v Praze 4

Stěhovací služby

Výkup a prodej starého nábytku

Popis

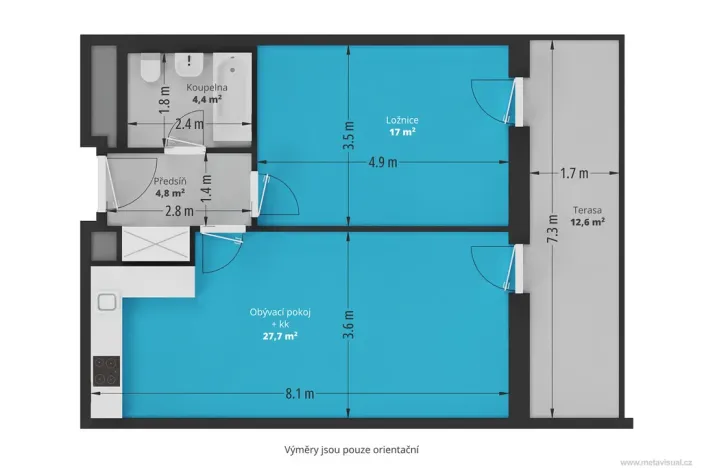
K dlouhodobému pronájmu nabízíme zcela nový, světlý byt o dispozici 2+kk v moderní rezidenci Zahálka v rychle se rozvíjející lokalitě Prahy 12 – Modřany. Byt je umístěn ve 14. NP. Celková podlahová plocha bytu činí 58 m². K bytu dále náleží terasa o velikosti 13 m², garážové stání v 1PP a sklep o výměře 5 m².

Rezidence je koncipována s důrazem na soukromí a příjemný sousedský život. Mezi jednotlivými budovami se nachází upravený park s relaxační zónou, kavárnou a dětským hřištěm. V areálu je k dispozici také Tesco Expres, bistro, restaurace a fitness centrum.

Byt je velmi vzdušný, prostorný a nabízí dostatek denního světla. Při vstupu se nachází předsíň s na míru vyrobenou šatní skříní. V celém bytě se aktuálně instalují stropní světla.
Hlavní obytný prostor s kuchyňským koutem o výměře 28 m² je propojen s velkoformátovými okny se vstupem na prostornou terasu.

Kuchyňská linka do tvaru L je vyrobena na míru truhlářem a je plně vybavena vestavěnými spotřebiči– lednicí s mrazákem, myčkou, indukční varnou deskou, digestoří, elektrickou troubou a mikrovlnnou troubou.

V bytě je dále prostorná ložnice o výměře 17 m², která má také přístup na terasu.

Koupelna je společná s toaletou a disponuje vanou, umyvadlem a galerkou se zrcadlem (právě se instaluje). Je zde dostatek místa pro pračku i sušičku.
Na podlahách je v předsíni a koupelně položena velkoformátová dlažba, v obytném prostoru kvalitní vinyl v dekoru dřeva.
V bytě nechybí rekuperace, protipožární systém, bezpečnostní dveře s videotelefonem. Vytápění a ohřev vody jsou řešeny dálkově a jsou zahrnuty v měsíční zálohách, které jsou zúčtovatelné.

Garážové stání je za příplatek 2.000 Kč/měsíc.
Měsíční poplatky činí 3.650 Kč/2 osoby, elektřina se převádí na nájemníka (cca 900 Kč měsíčně).
Vratná kauce je ve výši jednoho nájmu. Provize RK ve výši jednoho nájmu.

Minutu chůze od bytu je zastávka tramvaje Belárie. Do centra města na Palackého náměstí (metro linky B) dojedete za 15 minut. Pro jízdu autem je v blízkosti nájezd na Pražský obchvat a Jižní spojku.
Lokalita nabízí skvělé možnosti pro relax i aktivní život – Zahálka přímo sousedí s golfovým hřištěm, podél vede oblíbená cyklostezka z centra Prahy a pokračuje dál až na Zbraslav a do Vraného nad Vltavou. Dostatek zeleně v okolí bytu s biokoridorem Zátišského potoka jsou ideálním místem pro trávení volného času. V blízkosti jsou Žluté lázně a nespočet barů a restaurací.

Byt je volný ihned.

Makléř

Máte zájem o tento byt?

Tímto, v souladu s nařízením Evropského parlamentu a Rady (EU) 2016/679, v platném znění, prohlašuji, že mi je alespoň 16 let a uděluji tak svůj souhlas se zpracováním zadaných údajů (jméno, telefon, e-mail, ip adresa) společnosti B3 Technology, s.r.o., IČ: 07330600, se sídlem Novostavby 126/23, 435 11 Lom (správce dat), za účelem předání dotazu z tohoto formuláře Vámi vybranému inzerentovi a zpětného kontaktování mé osoby. Osobní údaje bude správce zpracovávat manuálně i automaticky přímo prostřednictvím svých zaměstnanců. Informace předané tímto formulářem budou uloženy v databázi správce maximálně po dobu 10 let. Odvolání souhlasu s uložením a zpracováním poskytnutých dat lze e-mailem na info@origo-reality.cz. V případě podezření na neoprávněné použití Vámi poskytnutých údajů máte právo předat podnět k šetření Úřadu pro ochranu osobních údajů. Více informací
Chystáte se prodat nemovitost?
Pomůžeme Vám!

Přihlášení k odběru

Nenechte si ujít nejnovější nabídky pronájmu bytů 2+kk v Praze 4.