Pronájem bytu 1+1, České Budějovice, Fráni Šrámka, 40 m2 (ID: 2010484)

Fráni Šrámka, České Budějovice 3

14 300 Kč
/za měsíc
Získejte výhodnou HYPOTÉKU Chci hypotéku

Parametry bytu

AdresaFráni Šrámka, České Budějovice 3
IDAD-2770-2026
StavbaCihlová
Stav objektuNovostavba
Patro2. z 4
VybavenoČástečně
Lokalita objektuCentrum obce
VlastnictvíOsobní
Užitná plocha40 m2
Podlahová plocha47 m2
Třída energetické náročnostiD - Méně úsporná
Elektřina230V
OdpadVeřejná kanalizace
KomunikaceDlážděná
TelekomunikaceInternet
DopravaVlak, Dálnice, Silnice, MHD, Autobus
VodaVodovod
Topné tělesoRadiátory
Zdroj topeníCentrální dálkové
Zdroj teplé vodyCentrální dálkový ohřev
Balkon
Sklep
Výtah

Origo partneři v Českých Budějovicích

Výkup a prodej starého nábytku

Popis

Ve výhradním zastoupení majitele / jako správce bytu nabízíme k pronájmu kompletně zrekonstruovaný zděný byt velikosti 1+1 o celkové výměře 47m2. Bytové jednotka je umístěná ve zděném a nově zrekonstruovaném bytovém domě v širším centru Českých Budějovic, Tento dům prošel celkovou a nadstandardní rekonstrukcí (dokončeno 2025). Objekt se nachází v těsné blízkosti IGY centra, hotelu Clarion, Polikliniky Pražská a obchodního domu Družba s veřejným parkovištěm. Bytová jednotka k pronájmu je k dispozici včetně základního vybavení.

Naším klientům tímto nabízíme:
► umístění objektu / bytu v těsné blízkosti obchodního centra IGY, hotelu Clarion
► příjemná docházková vzdálenost do historického centra (10 minut/650 m)
► v minimální vzdálenosti se nacházejí zastávky MHD a dalších linkových autobusových spojů
► nadstandartní kvalita provedení bytů i celého domu
► nabídka dlouhodobého stabilního nájmu
► možnost parkování v těsné blízkosti domu i v okolí
► možnost pronájmu sklepní kóje / sklepních kojí ve vnitrobloku
► byt s prostorným balkonem situovaným do vnitrobloku
► výtah
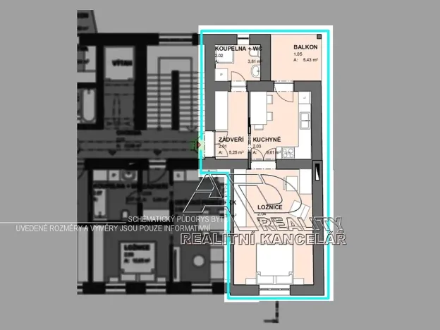
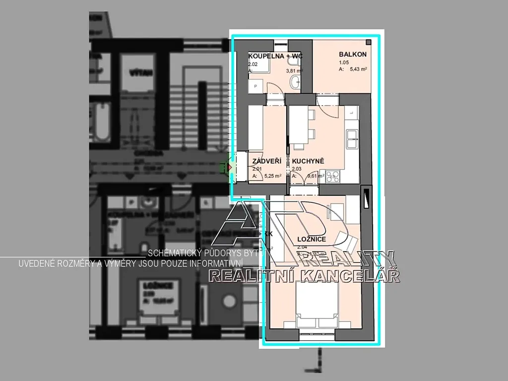
► [byt_04]►► zděný byt velikosti 1+1 s balkonem, celková plocha bytu [47m2], podlahová plocha [40m2] + balkon [5m2] + sklep [2m2].
Dispozice bytové jednotky: předsíň [5m2], kuchyně [9,5m2], balkon [5,0m2], koupelna [4,5m2], pokoj [20m2]. K dispozici je sklepní kóje ve vnitrobloku o výměře [2m2].
Orientace bytu na sever (francouzské okno z kuchyně na balkon) a na jih je orientováno okno obytné místnosti. Byt je umístěný ve 2.NP polyfunkčního bytového domu s výtahem.
Rekonstrukce celého domu a bytu byla dokončena v roce 2025, byt je pouze minimálně bydlenou novostavbou. Vše provedeno v nadstandartní kvalitě: V bytě je osazena kuchyňská linka včetně zabudovaných spotřebičů (elektrická varná deska, vestavěná horkovzdušná trouba), podlahy plovoucí laminátové / vinylové a keramická dlažba, v koupelně sprchový kout, závěsné WC. Přípojka pračky je připravená v koupelně. V domě je pro pohodlí nájemníků instalován osobní výtah. V bytě jsou osazena nová plastová okna s izolačními trojskly a žaluziemi, fasáda domu je kvalitně zateplená, veškeré rozvody všech sítí a dalších médií jsou v celém domě a bytě nově vybudovány (voda, kanalizace, elektrické rozvody slabo a silnoproudu, topení a jiné)
Topení ústřední (radiátory s termoventily / termostat a samostatným měřením spotřeby), samostatné měření spotřeby teplé a studené vody (vodoměry) a elektřiny (elektroměr) a podružné měření spotřeby topení (pro byt).
V bytě je možno připojit internet (Starnet). Energetická náročnost budovy [D].
Občanská vybavenost a Parkování: Veškerá občanská vybavenost včetně MHD je v těsné blízkosti. V IGY centru, které je vzdálené 50metrů najdete kompletní nabídku obchodů a služeb, včetně multikina. Naproti IGY centra se nachází lékařský dům a další obchodní dům Družba.
Parkovací místa jsou dostupná v rámci parkovací zóny v okolí domu.
Požadavky / preference majitele bytu: majitel nabízí dlouhodobý (stabilní) pronájem bytu do 2 osob, malý domácí mazlíček po dohodě, (preferován je nájemce bez zvířat). Byt není vhodný pro spolubydlení či sdílení. V celém objektu budou společné prostory provozovány jako prostory nekuřácké. Majitel bytu si vždy vyhrazuje právo výběru nájemce na základě jím zvolených kritérií, preferováni jsou nájemci bez domácích zvířat a nekuřáci!
Byt je k dispozici po dohodě (květen_2026) – byt je určen ke dlouhodobému pronájmu.
Nájemné: 14.300,-Kč/MĚS + ENergie a služby (záloha na byt včetně elektriky cca 3.000,-Kč/měs – podle počtu osob).
Bytová Jistina / Kauce: 29.000,-Kč (vratná při ukončení nájmu).
Provize RK: za zprostředkování pronájmu a sepsání nájemní smlouvy: 15.000,-Kč.
Pro bližší informace a termíny prohlídky volejte makléře | správce objektu | (Jindřich DVOŘÁK, Dipl.Tech).
Zakázka výhradně v nabídce realitní kanceláře AD-reality CB České Budějovice.

Makléř

Máte zájem o tento byt?

Tímto, v souladu s nařízením Evropského parlamentu a Rady (EU) 2016/679, v platném znění, prohlašuji, že mi je alespoň 16 let a uděluji tak svůj souhlas se zpracováním zadaných údajů (jméno, telefon, e-mail, ip adresa) společnosti B3 Technology, s.r.o., IČ: 07330600, se sídlem Novostavby 126/23, 435 11 Lom (správce dat), za účelem předání dotazu z tohoto formuláře Vámi vybranému inzerentovi a zpětného kontaktování mé osoby. Osobní údaje bude správce zpracovávat manuálně i automaticky přímo prostřednictvím svých zaměstnanců. Informace předané tímto formulářem budou uloženy v databázi správce maximálně po dobu 10 let. Odvolání souhlasu s uložením a zpracováním poskytnutých dat lze e-mailem na info@origo-reality.cz. V případě podezření na neoprávněné použití Vámi poskytnutých údajů máte právo předat podnět k šetření Úřadu pro ochranu osobních údajů. Více informací
Chystáte se prodat nemovitost?
Pomůžeme Vám!