Pronájem bytu 2+1, Ústí nad Labem, Klíšská, 59 m2

Klíšská, Ústí nad Labem, Klíše

11 500 Kč
/za měsíc
Zálohy na služby (vodné stočné, teplá voda, teplo, společná el., úklid apod.) 3 100 Kč/měs., elektřina se převádí na nájemce.
Získejte výhodnou HYPOTÉKU Chci hypotéku

Parametry bytu

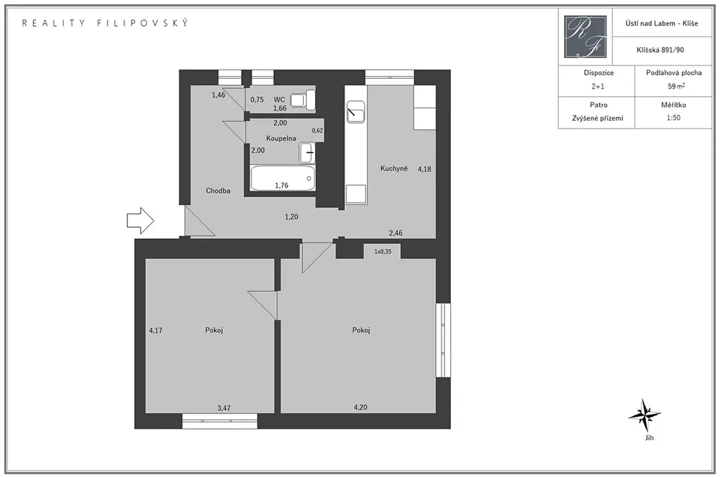
AdresaKlíšská, Ústí nad Labem, Klíše
ID647
StavbaCihlová
Stav objektuPo rekonstrukci
Patro1.
VlastnictvíOsobní
Užitná plocha59 m2
Třída energetické náročnostiC - Úsporná
Elektřina230V
OdpadVeřejná kanalizace
VodaVodovod
Zdroj topeníCentrální dálkové
Zdroj teplé vodyCentrální dálkový ohřev
Sklep

Origo partneři v Ústí nad Labem

Okna a dveře

Rekonstrukce

Popis

Dovoluji si Vám nabídnout pronájem velmi pěkného bytu, který se nachází ve zvýšeném přízemí zrekonstruovaného cihlového domu v nejvyhledávanější ústecké lokalitě Klíše.

Byt právě prošel rekonstrukcí a budete tak prvními nájemci od jejího dokončení. Byt je vybaven kuchyňskou linkou s vestavnými spotřebiči a přípravou pro umístění myčky nádobí. Dále je součástí vybavení lednice s mrazákem, spížní skříň a automatická pračka. Byt je velmi dobře dispozičně řešen a nabízí spoustu místa pro úložné prostory. Na podlahách jsou parkety a dlažba.

Nájemné činí 11 500 Kč/měs., zálohy na služby (vodné stočné, teplá voda, teplo, společná el., úklid apod.) 3 100 Kč/měs., elektřina se převádí na nájemce, kauce 20 000 Kč, provize RK 5 000 Kč.

Makléř

Máte zájem o tento byt?

Tímto, v souladu s nařízením Evropského parlamentu a Rady (EU) 2016/679, v platném znění, prohlašuji, že mi je alespoň 16 let a uděluji tak svůj souhlas se zpracováním zadaných údajů (jméno, telefon, e-mail, ip adresa) společnosti B3 Technology, s.r.o., IČ: 07330600, se sídlem Novostavby 126/23, 435 11 Lom (správce dat), za účelem předání dotazu z tohoto formuláře Vámi vybranému inzerentovi a zpětného kontaktování mé osoby. Osobní údaje bude správce zpracovávat manuálně i automaticky přímo prostřednictvím svých zaměstnanců. Informace předané tímto formulářem budou uloženy v databázi správce maximálně po dobu 10 let. Odvolání souhlasu s uložením a zpracováním poskytnutých dat lze e-mailem na info@origo-reality.cz. V případě podezření na neoprávněné použití Vámi poskytnutých údajů máte právo předat podnět k šetření Úřadu pro ochranu osobních údajů. Více informací
Chystáte se prodat nemovitost?
Pomůžeme Vám!