Pronájem rodinného domu, Sobotka, Za školou, 140 m2

Za Školou, Sobotka

34 990 Kč
/za měsíc
Cena bez energií (elektřina 3500,- Kč / měsíc, voda 1100,- Kč / měsíc). + vratná jistota ve výši 2 nájemných, provize ve výši 1 nájemného + DPH.
Získejte výhodnou HYPOTÉKU Chci hypotéku

Parametry domu

AdresaZa Školou, Sobotka
ID1150
StavbaCihlová
Stav objektuNovostavba
VybavenoČástečně
Druh objektuSamostatný
Lokalita objektuKlidná část obce
Užitná plocha140 m2
Zastavěná plocha102 m2
Podlahová plocha140 m2
Plocha pozemku1783 m2
Plocha zahrady1613 m2
Třída energetické náročnostiC - Úsporná
Elektřina230V, 400V
OdpadVeřejná kanalizace
KomunikaceAsfaltová, Zpevněná
TelekomunikaceInternet
DopravaVlak, Dálnice, Silnice, MHD, Autobus
VodaVodovod
Topné tělesoPodlahové vytápění
Zdroj topeníTepelné čerpadlo
Zdroj teplé vodyTepelné čerpadlo
Garáž
Parkování

Origo partneři v Sobotce

Popis

Dnes začneme rýmem - novostaveb k pronájmu v Sobotce jak šafránu. Hledáte rodinný dům s velkou zahradou, garáží, pergolou, tepelným čerpadlem, čtyřmi pokoji, dvěma koupelnami, dvěma šatnami a technickou místností, který si nemusíte sami postavit, ale můžete si ho v klidu pronajmout? Pak vás bude určitě zajímat tento dům 5+kk, se zastavěnou plochou 102 m² (+ garáž zast. plocha 30 m²) a zahradou o ploše 1613 m² na skvělém místě - okraji zástavby s výhledem do okolní krajiny, ale kousíček od centra Sobotky.

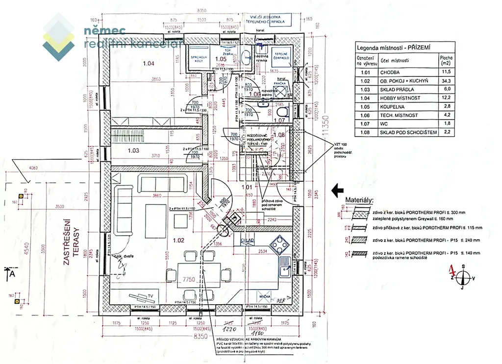
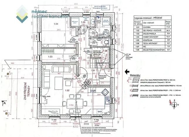
Dispozice domu - přízemí:
Ob. pokoj + kuch. kout - 34,3 m²
Pracovna - 12,2 m²
Koupelna - 2,8 m²
Šatna - 6 m²
Technická místnost - 4,2 m²
Sklad pod schodištěm - 2,2 m²
Chodba - 11,5 m²

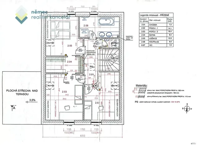
Dispozice domu - 1. patro:
Pokoj - 14,1 m²
Pokoj - 16,4 m²
Ložnice - 12,9 m²
Šatna přístupná ze dvou pokojů - 6,4 m²
Koupelna - 9 m²
Wc - 1,5 m²
Chodba - 7,2 m²

Nábytek vyobrazený na fotografiích není z velké části součástí pronájmu. Zůstává kuch. linka včetně spotřebičů, sedací souprava (s drobnými oděrkami, není podmínkou), dvojlůžko v horní ložnici, koupelnové vybavení, policové systémy v šatnách.

Dům bude připraven k nastěhování od 1. 6. 2026. Cena bez energií (elektřina 3500,- Kč / měsíc, voda 1100,- Kč / měsíc). + vratná jistota ve výši 2 nájemných, provize ve výši 1 nájemného + DPH.

Makléř

Máte zájem o tento dům?

Tímto, v souladu s nařízením Evropského parlamentu a Rady (EU) 2016/679, v platném znění, prohlašuji, že mi je alespoň 16 let a uděluji tak svůj souhlas se zpracováním zadaných údajů (jméno, telefon, e-mail, ip adresa) společnosti B3 Technology, s.r.o., IČ: 07330600, se sídlem Novostavby 126/23, 435 11 Lom (správce dat), za účelem předání dotazu z tohoto formuláře Vámi vybranému inzerentovi a zpětného kontaktování mé osoby. Osobní údaje bude správce zpracovávat manuálně i automaticky přímo prostřednictvím svých zaměstnanců. Informace předané tímto formulářem budou uloženy v databázi správce maximálně po dobu 10 let. Odvolání souhlasu s uložením a zpracováním poskytnutých dat lze e-mailem na info@origo-reality.cz. V případě podezření na neoprávněné použití Vámi poskytnutých údajů máte právo předat podnět k šetření Úřadu pro ochranu osobních údajů. Více informací
Chystáte se prodat nemovitost?
Pomůžeme Vám!

Přihlášení k odběru

Nenechte si ujít nejnovější nabídky pronájmu rodinných domů v Sobotce.