Pronájem bytu 1+kk, Praha - Michle, Magistrů, 22 m2

Magistrů, Praha 4

12 000 Kč
/za měsíc
Získejte výhodnou HYPOTÉKU Chci hypotéku

Parametry bytu

AdresaMagistrů, Praha 4
ID19358
StavbaSmíšená
Stav objektuVelmi dobrý
Patro2. z 6
VybavenoAno
Lokalita objektuCentrum obce
VlastnictvíOsobní
Užitná plocha22 m2
Podlahová plocha22 m2
Třída energetické náročnostiD - Méně úsporná
Elektřina120V
OdpadVeřejná kanalizace
KomunikaceAsfaltová
TelekomunikaceTelefon, Internet, Kabelové rozvody
DopravaMHD, Autobus

Origo partneři v Praze 4

Stěhovací služby

Výkup a prodej starého nábytku

Popis

Chcete si pronajmout byt o dispozici 1+kk na klidném místě s dobrou dopravní dostupností do centra Prahy? Jeden takový mám pro vás v Praze 4 Michli.

Popis bytu
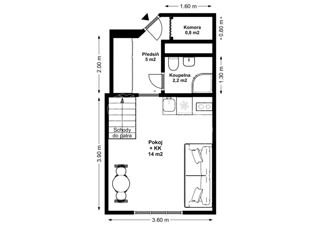
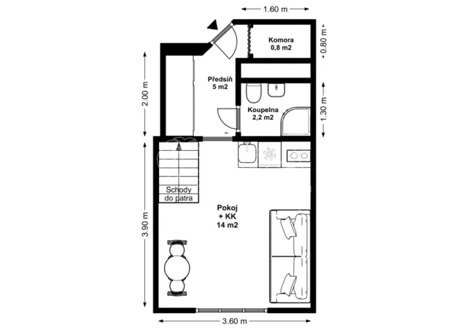
Bytový dům se nachází ve vedlejší méně frekventované ulici a je orientovaný na východ. Je v 1. patře a má 22 m2 + spací patro s úložným prostorem. Je rozdělený na obývací pokoj s kuchyňskou linkou (14 m2), koupelnu s toaletou (2,2 m2), předsíň (5 m2), komoru (0,8m2) a spací patro s úložným prostorem.

Vybavení bytu
V bytě je k dispozici kuchyňská linka s ledničkou, dvouplotýnkovým vařičem a digestoří, rozkládací pohovka a ve spacím patře jedna matrace (200 x 90 cm). Do spacího patra se vejde i větší matrace na rozměr 200 x 160 cm. Pračka je umístěna v suterénu domu, kde ji společně využívají obyvatelé menších bytů a náklad na vodu si rozpočítávají podle spotřeby.
V bytě je možnost připojení TV, Internet a telefon.

Náklady spojené s pronájmem bytu
Měsíční nájemné – 12 000 Kč
Měsíční zálohy na služby – 2 600 Kč
Měsíční záloha na elektřinu – 600 Kč
Kauce – 15 200 Kč
Provize RK – 14 520 Kč

Preferované podmínky pronájmu
V současné době je byt volný. Nájemní smlouva na 1 rok s možností prodloužení. Smlouvu na elektřinu majitel nepřevádí na nájemce.

Lokalita
Nejbližší zastávka tramvají a autobusů je Pod Jezerkou, odkud se dostanete do 15 min do centra Prahy nebo za 6 minut ke stanici metra C Pankrác.

Prohlídky
První kolo prohlídek proběhne 8. dubna v odpoledních a večerních hodinách. Konkrétní časy budeme domlouvat během 7. dubna.

Makléř

Máte zájem o tento byt?

Tímto, v souladu s nařízením Evropského parlamentu a Rady (EU) 2016/679, v platném znění, prohlašuji, že mi je alespoň 16 let a uděluji tak svůj souhlas se zpracováním zadaných údajů (jméno, telefon, e-mail, ip adresa) společnosti B3 Technology, s.r.o., IČ: 07330600, se sídlem Novostavby 126/23, 435 11 Lom (správce dat), za účelem předání dotazu z tohoto formuláře Vámi vybranému inzerentovi a zpětného kontaktování mé osoby. Osobní údaje bude správce zpracovávat manuálně i automaticky přímo prostřednictvím svých zaměstnanců. Informace předané tímto formulářem budou uloženy v databázi správce maximálně po dobu 10 let. Odvolání souhlasu s uložením a zpracováním poskytnutých dat lze e-mailem na info@origo-reality.cz. V případě podezření na neoprávněné použití Vámi poskytnutých údajů máte právo předat podnět k šetření Úřadu pro ochranu osobních údajů. Více informací
Chystáte se prodat nemovitost?
Pomůžeme Vám!

Přihlášení k odběru

Nenechte si ujít nejnovější nabídky pronájmu bytů 1+kk v Praze 4.