Prodej rodinného domu, Svratouch, 90 m2

Svratouch

1 990 000 Kč
/za nemovitost
Hypotéka od 8 894 Kč /měs. Chci hypotéku

Parametry domu

AdresaSvratouch
ID1218
StavbaCihlová
Stav objektuPřed rekonstrukcí
VybavenoNe
Druh objektuSamostatný
Lokalita objektuKlidná část obce
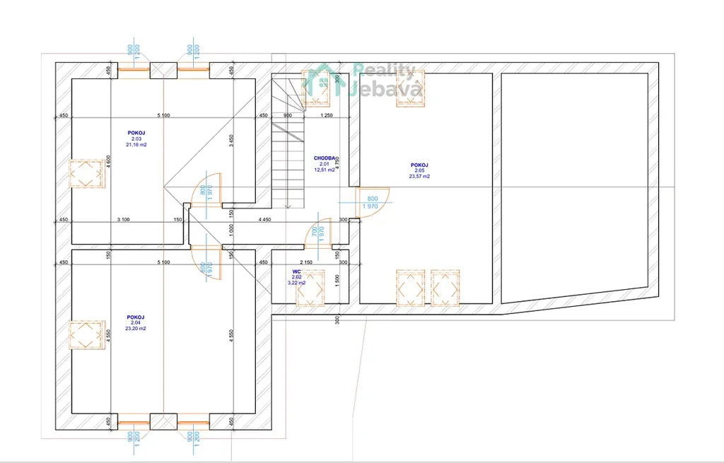
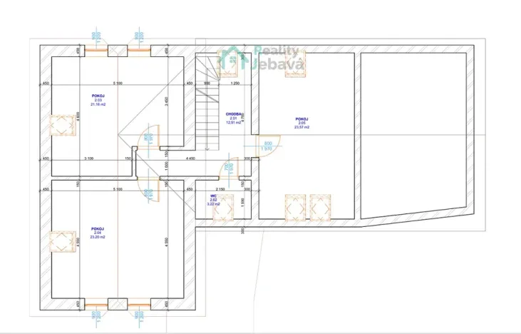
Užitná plocha90 m2
Zastavěná plocha160 m2
Podlahová plocha376 m2
Plocha pozemku376 m2
Třída energetické náročnostiG - Mimořádně nehospodárná
Elektřina230V, 400V
PlynPlynovod
KomunikaceAsfaltová
VodaVodovod

Origo partneři v Svratouchu

Pojištění a finance

Popis

Nabízíme k prodeji rodinný dům v části obce Svratouch, okres Chrudim, na rozhraní Vysočiny a Pardubického kraje. Tato převážně cihlová nemovitost, nacházející se na samostatném pozemku o rozloze 376 m², je určena k rekonstrukci a nabízí skvělou příležitost pro ty, kteří si chtějí vytvořit svůj vysněný domov.

Dům disponuje zastavěnou plochou 160 m². Započatá rekonstrukce dává novému majiteli možnost dotáhnout projekt do konce dle vlastních představ. Na pozemku se nachází menší zahrada, která nabízí příjemné místo pro relaxaci a zahradní práce. K dispozici je také stodola, která může sloužit jako garáž i dílna, čímž obohacuje možnosti využití tohoto prostoru.

V blízkosti se nachází dobrá občanská vybavenost, která zahrnuje základní i mateřskou školu, obchod, restauraci a další služby. Okolní příroda láká k výletům a sportovním aktivitám. V nedalekém okolí se nachází golfové hřiště, Lovecký zámeček Karlštejn, dětské hřiště, sportoviště, rybník i krásné lesy, které jsou ideální pro trávení volného času. Milovníci přírody ocení také malebné prostředí a možnosti rekreace. V okolí se nachází Peklo Čertovina, sjezdovka v Hlinsku, koupací biotop i skalní útvary Devět skal, Čtyři palice a další.

Nemovitost je připojena na veřejný vodovod, elektřinu a plyn. Kanalizace na hranici pozemku. Tím se významně ušetří čas a náklady na vybudování těchto základních inženýrských sítí.

Dům má velký potenciál a čeká na nové majitele, kteří ocení jeho možnosti a krásné prostředí. V případě zájmu o prohlídku nás neváhejte kontaktovat.

Makléř

Máte zájem o tento dům?

Tímto, v souladu s nařízením Evropského parlamentu a Rady (EU) 2016/679, v platném znění, prohlašuji, že mi je alespoň 16 let a uděluji tak svůj souhlas se zpracováním zadaných údajů (jméno, telefon, e-mail, ip adresa) společnosti B3 Technology, s.r.o., IČ: 07330600, se sídlem Novostavby 126/23, 435 11 Lom (správce dat), za účelem předání dotazu z tohoto formuláře Vámi vybranému inzerentovi a zpětného kontaktování mé osoby. Osobní údaje bude správce zpracovávat manuálně i automaticky přímo prostřednictvím svých zaměstnanců. Informace předané tímto formulářem budou uloženy v databázi správce maximálně po dobu 10 let. Odvolání souhlasu s uložením a zpracováním poskytnutých dat lze e-mailem na info@origo-reality.cz. V případě podezření na neoprávněné použití Vámi poskytnutých údajů máte právo předat podnět k šetření Úřadu pro ochranu osobních údajů. Více informací
Chystáte se prodat nemovitost?
Pomůžeme Vám!
Theleadway banner

Přihlášení k odběru

Nenechte si ujít nejnovější nabídky prodeje rodinných domů v Svratouchu.