Prodej rodinného domu, Hradešín, 207 m2

Hradešín

12 800 000 Kč
/za nemovitost
Hypotéka od 57 208 Kč /měs. Chci hypotéku

Parametry domu

AdresaHradešín
ID92026
StavbaCihlová
Stav objektuPo rekonstrukci
Druh objektuSamostatný
Lokalita objektuKlidná část obce
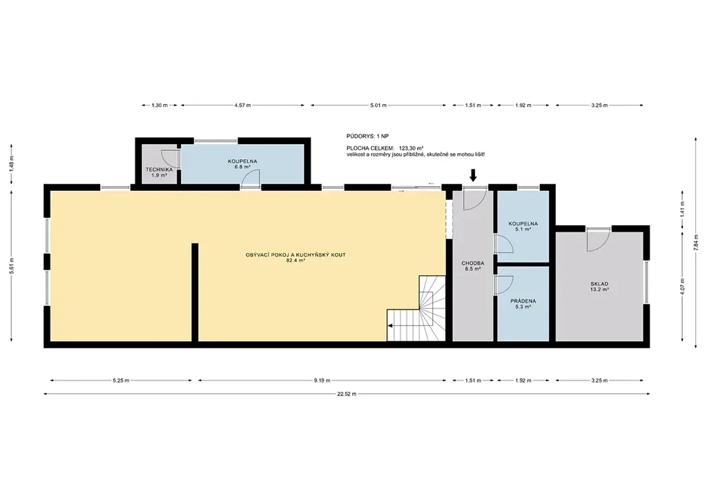
Užitná plocha207 m2
Zastavěná plocha271 m2
Podlahová plocha194 m2
Plocha pozemku355 m2
Plocha zahrady84 m2
Třída energetické náročnostiA - Mimořádně úsporná
Elektřina230V
OdpadVeřejná kanalizace
KomunikaceAsfaltová
TelekomunikaceInternet
DopravaSilnice, Autobus
VodaMístní zdroj vody
Topné tělesoPodlahové vytápění, Krbová kamna
Zdroj topeníElektrokotel
Zdroj teplé vodyElektrokotel
Parkování

Origo partneři v Hradešíně

Popis

Představujeme Vám výjimečnou příležitost získat prakticky nový rodinný dům o dispozici 3+kk s velkorysou užitnou plochou 207 m² v atraktivní obci Hradešín. Nemovitost kolaudovaná v roce 2026 nabízí ideální kombinaci moderního designu, vysokého standardu provedení a maximálního komfortu bez nutnosti dalších investic.
Dům prošel kompletní a precizní rekonstrukcí s důrazem na kvalitu materiálů i detail. Díky energetické třídě PENB A se jedná o mimořádně úsporné bydlení s minimálními provozními náklady. Betonové podlahy, nová střecha, kvalitní zateplení a okna s trojskly zajišťují dlouhodobou hodnotu a bezstarostné užívání. Podlahové vytápění napojené na elektrokotel přináší vysoký komfort do každé místnosti.
Dispozice domu je promyšlená a praktická. V přízemí se nachází světlý obývací pokoj propojený s kuchyňským koutem, který tvoří srdce domu. Kuchyňská linka je vyrobena na míru a vybavena vestavěnými spotřebiči. Dále zde najdete koupelnu, technickou místnost a spíž. V patře jsou umístěny klidové zóny – ložnice, dětský pokoj a druhá koupelna. Dům disponuje dvěma koupelnami s WC, což výrazně zvyšuje komfort každodenního života.
Nemovitost je napojena na městský vodovod a kanalizaci. Celková plocha pozemku činí 355 m².
Velkou přidanou hodnotou je lokalita – Hradešín nabízí klidné bydlení v zeleni s krásnými výhledy do krajiny a zároveň výbornou dostupnost do Prahy (cca 30 minut jízdy). Vyhledávaná obec s jedinečnou atmosférou je ideální pro ty, kteří hledají soukromí bez kompromisů v dostupnosti.
Tento dům je ideální volbou pro klienty, kteří hledají moderní, úsporné a kvalitní bydlení v atraktivní lokalitě nedaleko Prahy.

Makléř

Máte zájem o tento dům?

Tímto, v souladu s nařízením Evropského parlamentu a Rady (EU) 2016/679, v platném znění, prohlašuji, že mi je alespoň 16 let a uděluji tak svůj souhlas se zpracováním zadaných údajů (jméno, telefon, e-mail, ip adresa) společnosti B3 Technology, s.r.o., IČ: 07330600, se sídlem Novostavby 126/23, 435 11 Lom (správce dat), za účelem předání dotazu z tohoto formuláře Vámi vybranému inzerentovi a zpětného kontaktování mé osoby. Osobní údaje bude správce zpracovávat manuálně i automaticky přímo prostřednictvím svých zaměstnanců. Informace předané tímto formulářem budou uloženy v databázi správce maximálně po dobu 10 let. Odvolání souhlasu s uložením a zpracováním poskytnutých dat lze e-mailem na info@origo-reality.cz. V případě podezření na neoprávněné použití Vámi poskytnutých údajů máte právo předat podnět k šetření Úřadu pro ochranu osobních údajů. Více informací
Chystáte se prodat nemovitost?
Pomůžeme Vám!

Přihlášení k odběru

Nenechte si ujít nejnovější nabídky prodeje rodinných domů v Hradešíně.