Prodej rodinného domu, Libiš, Střední, 150 m2

Střední, Libiš

12 490 000 Kč
/za nemovitost
Hypotéka od 55 823 Kč /měs. Chci hypotéku

Parametry domu

AdresaStřední, Libiš
ID655798
StavbaCihlová
Stav objektuVelmi dobrý
Typ objektuPatrový
Druh objektuSamostatný
Užitná plocha150 m2
Zastavěná plocha399 m2
Podlahová plocha150 m2
Plocha pozemku879 m2
Třída energetické náročnostiG - Mimořádně nehospodárná
Balkon
Garáž
Sklep

Origo partneři v Libiši

Pojištění a finance

Popis

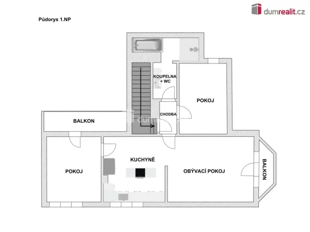
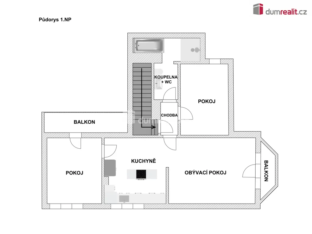
Předmětem nabídky je samostatně stojící, částečně podsklepený rodinný dům o dvou bytových jednotkách, 3+kk s koupelnou a samostatným WC v přízemí, a bytem 3+kk s koupelnou a balkonem ve II.nadzemním podlaží. Dům stojí na vlastním, oploceném pozemku o velikosti 879m², k příslušenství patří garáž, dílny a letní kuchyně v západní části zahrady, které tvoří hranici se sousedním pozemkem.
Dům byl postaven v roce 1939, v rámci přístavby v roce 1988 byly provedeny stavební úpravy a generální oprava původní části objektu. K posledním úpravám a modernizaci došlo v letech 2016-2018, kdy byl dům kompletně nákladně revitalizován. Dům je napojen na obecní vodovod, kanalizaci, plyn a elektriku, má vlastní studnu. Každá bytová jednotka má samostatné měřiče.
Nemovitostí se nachází v katastrálním území Libiš, v obci Libiš. Obec Libiš leží přibližně 12 km severně od hlavního města Prahy a necelých 7 km od města Mělník. Bezprostřední souvislost a provázanost má Libiš se svým sousedním městem Neratovice, jehož byla od r. 1950 až do r. 1990 administrativní součástí. Od 24. listopadu 1990 je Libiš opět samostatnou obcí. Obec se skládá ze dvou architektonických částí – Staré a Nové Libiše. Libiš má vlastní základní školu, malé zdravotní středisko, podací poštu i obchodní středisko ve stylu venkovského obchodního domu. Přibližně tři desítky podnikatelů přispívají k rozvoji služeb i celkové dynamice života obce. V obci je základní škola i školka, podací pošta, ordinace praktického lékaře, dětského lékaře i zubaře. V obci Libiš působí celá řada volno časových oddílů a sdružení, zejména TJ Sokol Libiš s oddíly fotbalu, tenisu, stolního tenisu, badmintonu, beach volejbalu, Sbor dobrovolných hasičů Libiš, který je jedním z největších na okrese Mělník, včelaři, zahrádkáři, myslivci, střelecký oddíl a další.
V souladu s platným zákonem je nemovitost dočasně, do předložení Průkazu energetické náročnosti, zařazena do energetické třídy G. Více informací požaduje v RK. Ev. číslo: 655184.

Makléř

Máte zájem o tento dům?

Tímto, v souladu s nařízením Evropského parlamentu a Rady (EU) 2016/679, v platném znění, prohlašuji, že mi je alespoň 16 let a uděluji tak svůj souhlas se zpracováním zadaných údajů (jméno, telefon, e-mail, ip adresa) společnosti B3 Technology, s.r.o., IČ: 07330600, se sídlem Novostavby 126/23, 435 11 Lom (správce dat), za účelem předání dotazu z tohoto formuláře Vámi vybranému inzerentovi a zpětného kontaktování mé osoby. Osobní údaje bude správce zpracovávat manuálně i automaticky přímo prostřednictvím svých zaměstnanců. Informace předané tímto formulářem budou uloženy v databázi správce maximálně po dobu 10 let. Odvolání souhlasu s uložením a zpracováním poskytnutých dat lze e-mailem na info@origo-reality.cz. V případě podezření na neoprávněné použití Vámi poskytnutých údajů máte právo předat podnět k šetření Úřadu pro ochranu osobních údajů. Více informací
Chystáte se prodat nemovitost?
Pomůžeme Vám!
Theleadway banner

Přihlášení k odběru

Nenechte si ujít nejnovější nabídky prodeje rodinných domů v Libiši.