Prodej rodinného domu, Liberec - Liberec XIV-Ruprechtice, Dračí, 153 m2 (ID: 2006929)

Dračí, Liberec XIV-Ruprechtice - Liberec (nečleněné město)

8 500 000 Kč
/za nemovitost
Hypotéka od 37 990 Kč /měs. Chci hypotéku

Parametry domu

AdresaDračí, Liberec XIV-Ruprechtice - Liberec (nečleněné město)
IDN2064
StavbaCihlová
Stav objektuPo rekonstrukci
Typ objektuPatrový
Druh objektuSamostatný
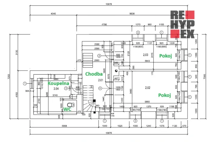
Užitná plocha153 m2
Zastavěná plocha82 m2
Podlahová plocha142 m2
Plocha pozemku1500 m2
Třída energetické náročnostiD - Méně úsporná
OdpadČOV pro celý objekt
TopeníLokální tuhá paliva, Ústřední elektrické
DopravaVlak, Dálnice, Silnice, MHD, Autobus
VodaMístní zdroj vody
Sklep
Parkování

Origo partneři v Liberci

Rekonstrukce

Úklidové služby

Popis

Hledáte hotové bydlení v přírodě pár minut od centra Liberce? Tento rodinný dům v Ruprechticích nabízí klid, soukromí a okamžité bydlení s možností doladit si detaily podle sebe.
Hlavní výhody:

1) klidné bydlení v přírodě, přitom jen 8 minut od centra Liberce a 10 minut od centra
Bedřichova v Jizerských horách
2) okamžitě k nastěhování, bez čekání na dokončení stavby

3) nízké provozní náklady (při využití dřeva na topení)

4) zásoba vlastního dřeva na několik let (30 – 50 m3)

5) možnost dokončení kuchyně a podkroví dle vlastního vkusu bez zbytečných předělávek

6) po kompletní rekonstrukci – nové rozvody, topení, izolace

7) parkování na pozemku, přístup po městské komunikaci

8) zajištěná návaznost řemeslníků pro rychlé dokončení úprav


Jedná se o nemovitost v údolí Černé Nisy, která prošla citlivou kompletní rekonstrukcí. V současné době je dokončován převod z čísla evidenčního na číslo popisné.
Dispozice domu je 4+kk. V přízemí se nachází komora (spíž), samostatné WC, prostorná kuchyně, předsíň a sklep s klenutým stropem z kamene. V prvním patře naleznete útulný obývací pokoj, pracovnu a prostornou koupelnu s luxusní rohovou vanou, bojlerem, závěsným WC Geberit a přípravou pro pračku a myčku. Třešničkou na dortu je rozsáhlý podkrovní prostor, který lze buď ponechat v současné podobě nebo s minimálním zásahem přepažit na několik menších pokojů dle přání majitele.
Dům prošel rekonstrukcí s důrazem na zachování původní podoby ve stylu venkovského stavení, ale při použití nejmodernějších postupů a materiálů. Střecha, pokrytá novou krytinou, získala novou izolaci, která v létě brání zahřívání interiéru a v zimě tepelně izoluje. Okenní výplně mají izolační trojskla s tepelným koeficientem 0,6m. Dům je zateplený, má novou fasádu, došlo i k výměně okapů, svodů a hromosvodu. Nově byly instalovány rozvody vody, elektřiny a topný systém včetně radiátorů a elektrokotle.
Topný systém je připraven na připojení kachlových kamen nebo kamen s tepelným výměníkem dle přání majitele. K dispozici jsou řemeslníci, připraveni pomoci s instalací – elektrikář, topenář, případně kamnář.
Na dům navazuje prostorná zahrada o velikosti 1500 m2 s prostorem pro letní posezení, pergolu nebo venkovní krb. Zahrada umožňuje přímý přístup do lesa. Přístup k nemovitosti je možný osobním autem, dodávkou nebo lehkým nákladním automobilem přes most z ulice Kateřinská, po komunikaci v majetku města. Parkovat lze ve spodní části pozemku u příjezdové komunikace nebo přímo u domu. Zastávka MHD se nachází 100 metrů od domu na nedaleké Kateřinské ulici, po které zároveň vede cyklistická stezka č. 3036 a křižuje ji modře značená turistická trasa. Veškerá občanská vybavení v místě.

Makléř

Máte zájem o tento dům?

Tímto, v souladu s nařízením Evropského parlamentu a Rady (EU) 2016/679, v platném znění, prohlašuji, že mi je alespoň 16 let a uděluji tak svůj souhlas se zpracováním zadaných údajů (jméno, telefon, e-mail, ip adresa) společnosti B3 Technology, s.r.o., IČ: 07330600, se sídlem Novostavby 126/23, 435 11 Lom (správce dat), za účelem předání dotazu z tohoto formuláře Vámi vybranému inzerentovi a zpětného kontaktování mé osoby. Osobní údaje bude správce zpracovávat manuálně i automaticky přímo prostřednictvím svých zaměstnanců. Informace předané tímto formulářem budou uloženy v databázi správce maximálně po dobu 10 let. Odvolání souhlasu s uložením a zpracováním poskytnutých dat lze e-mailem na info@origo-reality.cz. V případě podezření na neoprávněné použití Vámi poskytnutých údajů máte právo předat podnět k šetření Úřadu pro ochranu osobních údajů. Více informací
Chystáte se prodat nemovitost?
Pomůžeme Vám!