Prodej obchodního prostoru, Praha - Košíře, Naskové, 90 m2 (ID: 2006628)

Naskové, Praha, Košíře

6 690 000 Kč
/za nemovitost
Hypotéka od 29 900 Kč /měs. Chci hypotéku

Parametry nemovitosti

Náklady na bydlenícca 4.tis
AdresaNaskové, Praha, Košíře
StavbaSmíšená
Stav objektuNovostavba
Patro1. z 7
VybavenoČástečně
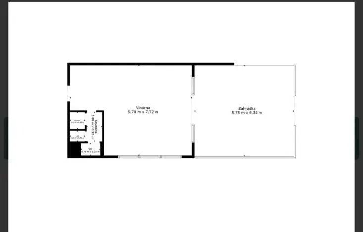
Užitná plocha90 m2
Podlahová plocha45 m2
Plocha zahrady45 m2
Třída energetické náročnostiB - Velmi úsporná
Topné tělesoRadiátory
Zdroj topeníCentrální dálkové
Zdroj teplé vodyCentrální dálkový ohřev
Parkování

Origo partneři v Praze 5

Stěhovací služby

Výkup a prodej starého nábytku

Popis

Představujeme Vám tento obchodní prostor k prodeji, který se nachází v dynamicky se rozvíjející části Prahy. Tento přízemní prostor s užitnou plochou 45m -obchodní prostor + 45m zahrádkaje ideálním místem pro různé typy podnikání, zvláště vhodný pro účely jako jsou kanceláře,showroom a jiné(nelze gastro) Díky své poloze v novostavbě zkolaudované v roce 2022 nabízí moderní zázemí a vysoký komfort pro klienty i zaměstnance.

Prostor je částečně vybaven, což Vám umožní přizpůsobit si interiér podle specifických potřeb Vašeho podnikání. Novostavba se nachází v zástavbě určené pro bydlení, což zajišťuje dobrou dostupnost potenciální klientely. K dispozici je jedno parkovací místo a sklepní koje což usnadňuje přístup pro zákazníky.

Energetická třída prostor je B, což znamená, že je velmi efektivní v otázce spotřeby energie. Provozní náklady Vám sdělí makléř, který je kontaktní osobou u tohoto inzerátu.

Prohlídky jsou možné po předchozí domluvě. Pro více informací o této nemovitosti nebo sjednání prohlídky nás prosím kontaktujte nebo vyplňte níže uvedený formulář, rádi Vám pomůžeme.

Makléř

Máte zájem o tuto nemovistost?

Tímto, v souladu s nařízením Evropského parlamentu a Rady (EU) 2016/679, v platném znění, prohlašuji, že mi je alespoň 16 let a uděluji tak svůj souhlas se zpracováním zadaných údajů (jméno, telefon, e-mail, ip adresa) společnosti B3 Technology, s.r.o., IČ: 07330600, se sídlem Novostavby 126/23, 435 11 Lom (správce dat), za účelem předání dotazu z tohoto formuláře Vámi vybranému inzerentovi a zpětného kontaktování mé osoby. Osobní údaje bude správce zpracovávat manuálně i automaticky přímo prostřednictvím svých zaměstnanců. Informace předané tímto formulářem budou uloženy v databázi správce maximálně po dobu 10 let. Odvolání souhlasu s uložením a zpracováním poskytnutých dat lze e-mailem na info@origo-reality.cz. V případě podezření na neoprávněné použití Vámi poskytnutých údajů máte právo předat podnět k šetření Úřadu pro ochranu osobních údajů. Více informací
Chystáte se prodat nemovitost?
Pomůžeme Vám!

Přihlášení k odběru

Nenechte si ujít nejnovější nabídky prodeje obchodních prostor v Praze 5.