Pronájem bytu 2+kk, Benešov, Suchánkova, 58 m2 (ID: 2006424)

Suchánkova, Benešov

20 000 Kč
/za měsíc
+ poplatky a odměna pro RK
Získejte výhodnou HYPOTÉKU Chci hypotéku

Parametry bytu

AdresaSuchánkova, Benešov
IDPAVE5936
StavbaSmíšená
Stav objektuNovostavba
Patro6. z 6
Lokalita objektuCentrum obce
VlastnictvíOsobní
Užitná plocha58 m2
Podlahová plocha58 m2
Třída energetické náročnostiB - Velmi úsporná
Garáž
Bezbarierový přístup
Převod do OV

Origo partneři v Benešově

Pojištění a finance

Popis

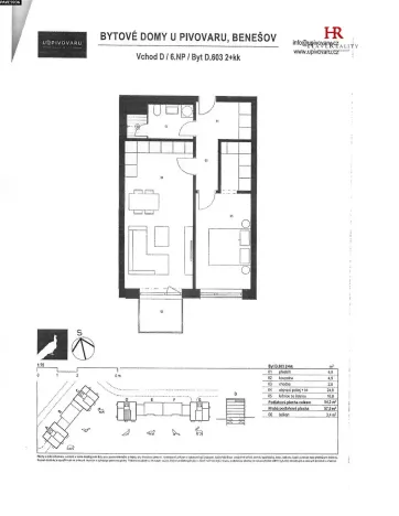
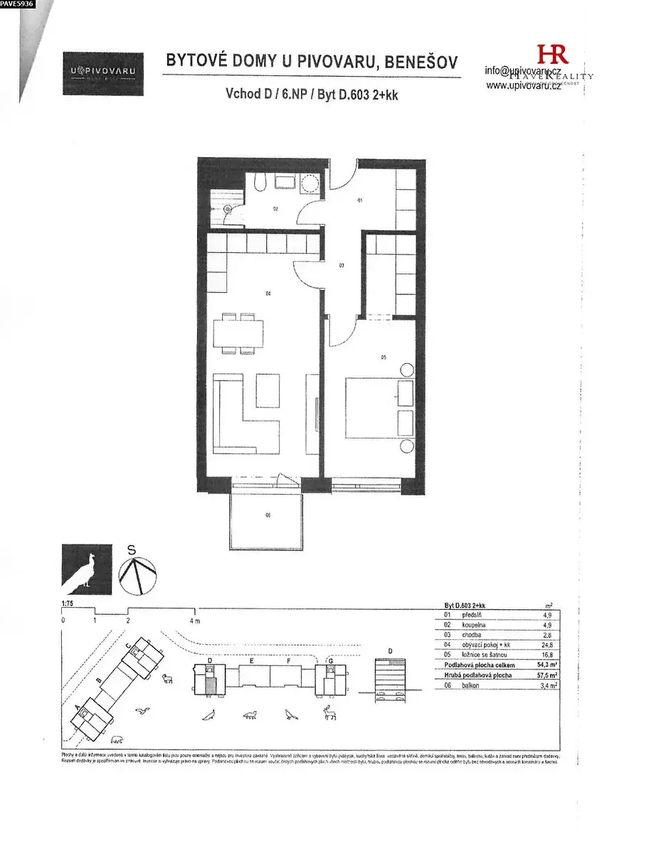
Dovolujeme si Vám nabídnout do pronájmu s platností od dubna 2026 krásný byt 2+kk v novostavbě, o velikosti 58,6 m2 s balkonem 3,4 m2 umístěný v 6. NP dokončeného bytového komplexu v Benešově. Výstavba bytového domu probíhala v letech 2025-2026 a splňuje nejvyšší nároky a standardy bydlení. Byt je dispozičně členěn na: vstupní předsíň 4,9 m2, koupelnu s WC 4,9 m2, obývací pokoj 24,8 m2 s novou kuchyňskou linkou a vstupem na balkon 3,4 m2 a ložnici se šatnou 16,8 m2. Dům je zateplený, nízkonákladový, splňuje PENB třídy „B“ a má výtah. V bytě se nachází moderní kuchyňská linka s vestavnými spotřebiči: (pečící trouba, myčka nádobí, indukční varná deska, mikrovlnná trouba, lednice s mrazákem a digestoř). Vytápění v domě a ohřev teplé vody zajistí centrální plynový kotel. V bytě jsou rozmístěny radiátory a v koupelně topný žebřík. Každá jednotka má svůj vlastní elektroměr, měřiče spotřeby studené i teplé vody a spotřeby tepla. Na podlaze je plovoucí podlaha v dezénu přírodního dřeva a v koupelně keramická dlažba a prostorný sprchový kout. Okna jsou plastová, zvenčí šedá, uvnitř bílá, s izolačními 3 skly. V oknech jsou instalovány žaluzie. Vstupní dveře do bytu jsou protipožární, k dispozici je domácí telefon. V suterénu domu se nachází parkovací stání pro vůz v garáži. Sklepní kóje patřící k bytu je umístěna ve 2.NP a má 2,3 m2. Požadované měsíční nájemné za byt včetně parkovacího stání v garáži a sklepa činí 20.000,- Kč + záloha na spotřebu médií cca 3.762,- Kč. Spotřebu el. energie v bytě si nájemce přihlásí na sebe u dodavatele. Jistota (dříve „kauce“) činí 45.000,- Kč a je vratná po řádném ukončení nájemního vztahu. Provize pro RK činí 1měsíční nájemné. Nabídka je určena pro nekuřáky bez domácích mazlíčků. Upřednostňujeme dlouhodobý pronájem. V Benešově je veškerá občanská vybavenost v místě a dobré dopravní spojení do Prahy a Českých Budějovic. Prohlídky objektu jsou možné kdykoli po dohodě. V případě Vašich dotazů nás neváhejte kontaktovat na uvedeném telefonním čísle.

Makléř

Máte zájem o tento byt?

Tímto, v souladu s nařízením Evropského parlamentu a Rady (EU) 2016/679, v platném znění, prohlašuji, že mi je alespoň 16 let a uděluji tak svůj souhlas se zpracováním zadaných údajů (jméno, telefon, e-mail, ip adresa) společnosti B3 Technology, s.r.o., IČ: 07330600, se sídlem Novostavby 126/23, 435 11 Lom (správce dat), za účelem předání dotazu z tohoto formuláře Vámi vybranému inzerentovi a zpětného kontaktování mé osoby. Osobní údaje bude správce zpracovávat manuálně i automaticky přímo prostřednictvím svých zaměstnanců. Informace předané tímto formulářem budou uloženy v databázi správce maximálně po dobu 10 let. Odvolání souhlasu s uložením a zpracováním poskytnutých dat lze e-mailem na info@origo-reality.cz. V případě podezření na neoprávněné použití Vámi poskytnutých údajů máte právo předat podnět k šetření Úřadu pro ochranu osobních údajů. Více informací
Chystáte se prodat nemovitost?
Pomůžeme Vám!
Theleadway banner

Přihlášení k odběru

Nenechte si ujít nejnovější nabídky pronájmu bytů 2+kk v Benešově.