Prodej rodinného domu, Bublava, 100 m2 (ID: 2006373)

Bublava, okres Sokolov

2 900 000 Kč

včetně provize RK
Hypotéka od 12 961 Kč /měs. Chci hypotéku

Parametry domu

AdresaBublava, okres Sokolov
ID260202
Stav objektuPřed rekonstrukcí
Druh objektuSamostatný
VlastnictvíOsobní
Užitná plocha100 m2
Zastavěná plocha410 m2
Třída energetické náročnostiG - Mimořádně nehospodárná

Origo partneři v Bublavě

Popis

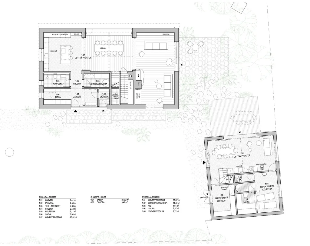
Nabízíme k prodeji stavební parcelu č. 64, jejíž součástí je stavba rodinného domu č. p. 206, zapsaná v katastru nemovitostí jako rodinný dům.
Nemovitost je vhodná k celkové rekonstrukci nebo demolici a nové výstavbě.
Majitel má k dispozici architektonickou studii na realizace domu a domu pro hosty - postavené na základech současného domu a stodoly. viz vizualizace, dále je prodlouženo stavební povolení platné do 12/2027, které počítá s rekonstrukcí domu.

Základní informace o pozemku:
Zastavěná plocha a nádvoří: 414 m² zahrnuje Rodinný dům plus Další stavba (stodola):

Trvalý travní porost: 540 m²

Pozemek tvoří ucelený celek, který nabízí dostatek prostoru jak pro nový rodinný dům, tak pro rekreační využití.

Dle územního plánu je výstavba regulována podmínkami prostorového uspořádání, které respektují venkovský charakter obce, výškovou hladinu okolní zástavby a požadavek na dostatečný podíl zeleně.

Přístupová cesta k nemovitosti přes obecní pozemek - ošetřeno věcným břemenem chůze ja jízdy,

Nové přípojky vody a kanalizace jsou přivedeny k okraji pozemku směrem k domu, jsou zaslepené - k dispozici projektová dokumentace. Dům aktuálně je napojený na elektřinu.
Součástí nabídky je možnost předání architektonické studie projekt. Kupující tak může navázat na již připravený záměr, nebo realizovat vlastní představu o využití pozemku.

Lokalita
Bublava se nachází v Krušných horách, přímo u hranice s Německem. Lokalita je ideální pro milovníky přírody, klidu a hor – s celoročním využitím (turistika, běžky, lyžování).
Kompletní občanská vybavenost (škola, lékař, obchody, služby) je dostupná v nedalekých Kraslicích.V oblasti Bublavy se nachází Ski Centrum Bublava Stříbrná, která patří mezi nejlépe vybavené lyžařské areály v ČR s úplným spektrem doprovodných služeb. Pro svou výhodnou polohu v samém středu nejzápadnějšího výběžku Krušných hor s dostatkem sněhu patří již od počátku minulého století mezi vyhledávaná celoroční turistická střediska.

Makléř

Máte zájem o tento dům?

Tímto, v souladu s nařízením Evropského parlamentu a Rady (EU) 2016/679, v platném znění, prohlašuji, že mi je alespoň 16 let a uděluji tak svůj souhlas se zpracováním zadaných údajů (jméno, telefon, e-mail, ip adresa) společnosti B3 Technology, s.r.o., IČ: 07330600, se sídlem Novostavby 126/23, 435 11 Lom (správce dat), za účelem předání dotazu z tohoto formuláře Vámi vybranému inzerentovi a zpětného kontaktování mé osoby. Osobní údaje bude správce zpracovávat manuálně i automaticky přímo prostřednictvím svých zaměstnanců. Informace předané tímto formulářem budou uloženy v databázi správce maximálně po dobu 10 let. Odvolání souhlasu s uložením a zpracováním poskytnutých dat lze e-mailem na info@origo-reality.cz. V případě podezření na neoprávněné použití Vámi poskytnutých údajů máte právo předat podnět k šetření Úřadu pro ochranu osobních údajů. Více informací
Chystáte se prodat nemovitost?
Pomůžeme Vám!

Přihlášení k odběru

Nenechte si ujít nejnovější nabídky prodeje rodinných domů v Bublavě.