Prodej bytu 4+kk, Primošten, Chorvatsko, 124 m2 (ID: 2005695)

Primošten

630 000 €
/za nemovitost

Parametry bytu

AdresaPrimošten
IDN7755
StavbaSmíšená
Stav objektuVe výstavbě
Patro3.
VybavenoČástečně
VlastnictvíOsobní
Užitná plocha124 m2
Třída energetické náročnostiG - Mimořádně nehospodárná
Garáž
Terasa

Origo partneři

Popis

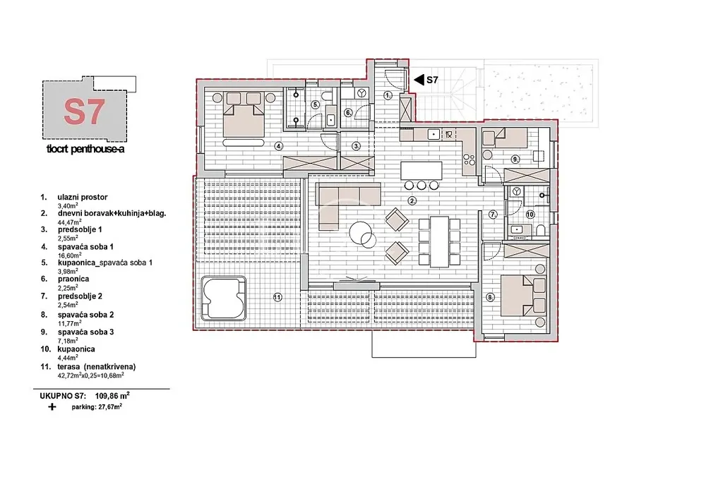
Nabízíme k prodeji luxusní penthouse v moderní rezidenční budově, s orientací na jih, se špičkovou architekturou a nádherným panoramatickým výhledem na moře. Prostorný interiér o velikosti 124 m2 doplňuje velkolepá terasa (43 m2) se soukromou vířivkou, která je ideálním místem pro odpočinek.

Byt se nachází ve 3. patře a je navržen s důrazem na komfort a praktičnost. Dispozice zahrnuje vstupní halu s prádelnou, vzdušný open-space obývací pokoj s kuchyní a jídelnou, dvě komfortním ložnice, moderní koupelnu a hlavní ložnicí s vlastní koupelnou a přímým vstupem na terasu.

Součástí je garážové stání s nabíjecí stanicí pro elektromobily. Penthouse je vybaven kvalitními materiály a moderními technologiemi: podlahovým vytápěním v obytných místnostech i koupelnách, elektrickými roletami, bezpečnostními dveřmi či walk-in sprchami.

Veškerá občanská vybavenost – obchody, restaurace i pláže se nachází v bezprostřední blízkosti, díky čemuž se jedná o mimořádnou příležitost k pořízení moderního bydlení u Jadranu. Dokončení výstavby je plánováno na 4Q 2026.

Makléř

Máte zájem o tento byt?

Tímto, v souladu s nařízením Evropského parlamentu a Rady (EU) 2016/679, v platném znění, prohlašuji, že mi je alespoň 16 let a uděluji tak svůj souhlas se zpracováním zadaných údajů (jméno, telefon, e-mail, ip adresa) společnosti B3 Technology, s.r.o., IČ: 07330600, se sídlem Novostavby 126/23, 435 11 Lom (správce dat), za účelem předání dotazu z tohoto formuláře Vámi vybranému inzerentovi a zpětného kontaktování mé osoby. Osobní údaje bude správce zpracovávat manuálně i automaticky přímo prostřednictvím svých zaměstnanců. Informace předané tímto formulářem budou uloženy v databázi správce maximálně po dobu 10 let. Odvolání souhlasu s uložením a zpracováním poskytnutých dat lze e-mailem na info@origo-reality.cz. V případě podezření na neoprávněné použití Vámi poskytnutých údajů máte právo předat podnět k šetření Úřadu pro ochranu osobních údajů. Více informací
Chystáte se prodat nemovitost?
Pomůžeme Vám!
Theleadway banner

Přihlášení k odběru

Nenechte si ujít nejnovější nabídky prodeje bytů 4+kk.