Prodej bytu 1+kk, Praha - Dejvice, Lindleyova, 34 m2 (ID: 2004707)

Lindleyova, Praha, Dejvice

7 170 000 Kč
/za nemovitost
Hypotéka od 32 046 Kč /měs. Chci hypotéku

Parametry bytu

AdresaLindleyova, Praha, Dejvice
StavbaCihlová
Stav objektuNovostavba
Patro5.
VybavenoČástečně
Lokalita objektuKlidná část obce
VlastnictvíOsobní
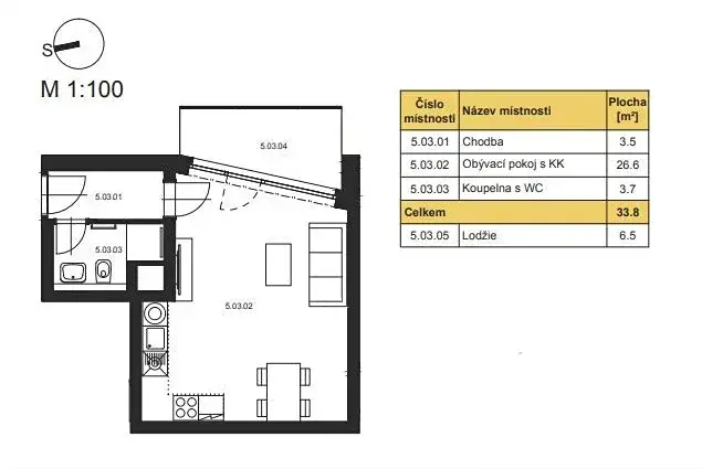
Užitná plocha34 m2
Třída energetické náročnostiB - Velmi úsporná
OdpadVeřejná kanalizace
DopravaMHD
VodaVodovod
Topné tělesoRadiátory
Zdroj topeníÚstřední dálkové, Centrální dálkové
Zdroj teplé vodyCentrální dálkový ohřev
Sklep
Lodžie
Výtah

Origo partneři v Praze 6

Stěhovací služby

Výkup a prodej starého nábytku

Popis

Hledáte bezpečný přístav pro své finance nebo stylové startovací bydlení v srdci Dejvic?
Nabízíme světlý, moderní byt 1+kk o rozloze 33 m² ve vyhledávaném projektu z roku 2018 v ul. Lindleyova. Byt je ideální volbou pro ty, kteří ocení kombinaci moderní architektury, nízkých provozních nákladů a prestižní adresy.
Hlavní benefity:
!!! Novostavba (2018): Moderní materiály, čisté společné prostory a bezproblémový provoz.
!!! Úspora energií (Třída B): Díky vysoké energetické náročnosti budovy jsou měsíční poplatky minimální – ideální pro investiční záměr.
!!! Chytrý prostor: Velkorysá plocha 33 m² umožňuje efektivní rozdělení na spací a obývací zónu. Velká okna zajišťují dostatek přirozeného světla po celý den.
!!! Prostorná lodžie (6,5 m²): Skutečný bonus u bytu 1+kk. Velkorysá plocha pro venkovní posezení, která pocitově zvětšuje obytný prostor a nabízí místo pro relaxaci.
!!! Exkluzivní zázemí pro rezidenty: V přízemí domu se nachází rozlehlý společný prostor s fitness trenažéry. Ideální místo pro cvičení nebo únik před letními horky v příjemném chládku moderní budovy. Tento benefit výrazně zvyšuje komfort bydlení i atraktivitu pro budoucí nájemníky.
!!! Sklep v ceně: K bytu náleží praktická zděná sklepní kóje o velikosti 2,5 m².
!!! Lokalita: Dejvice / Podbaba nabízí kompletní infrastrukturu (Kaufland přímo u domu, fitness, restaurace) a skvělou dostupnost do centra i na letiště (tram, vlak, bus).
Byt je ihned k dispozici a je vhodný jak k vlastnímu bydlení, tak k okamžitému pronájmu s vysokým výnosem.
Přijďte se podívat na prostor, který dává smysl.

Makléř

Máte zájem o tento byt?

Tímto, v souladu s nařízením Evropského parlamentu a Rady (EU) 2016/679, v platném znění, prohlašuji, že mi je alespoň 16 let a uděluji tak svůj souhlas se zpracováním zadaných údajů (jméno, telefon, e-mail, ip adresa) společnosti B3 Technology, s.r.o., IČ: 07330600, se sídlem Novostavby 126/23, 435 11 Lom (správce dat), za účelem předání dotazu z tohoto formuláře Vámi vybranému inzerentovi a zpětného kontaktování mé osoby. Osobní údaje bude správce zpracovávat manuálně i automaticky přímo prostřednictvím svých zaměstnanců. Informace předané tímto formulářem budou uloženy v databázi správce maximálně po dobu 10 let. Odvolání souhlasu s uložením a zpracováním poskytnutých dat lze e-mailem na info@origo-reality.cz. V případě podezření na neoprávněné použití Vámi poskytnutých údajů máte právo předat podnět k šetření Úřadu pro ochranu osobních údajů. Více informací
Chystáte se prodat nemovitost?
Pomůžeme Vám!

Přihlášení k odběru

Nenechte si ujít nejnovější nabídky prodeje bytů 1+kk v Praze 6.