Prodej zemědělského objektu, Nová Ves, 375 m2

Nová Ves u Albrechtic

24 990 000 Kč
/za nemovitost
Hypotéka od 111 690 Kč /měs. Chci hypotéku

Parametry nemovitosti

AdresaNová Ves u Albrechtic
ID305-NP00928
StavbaCihlová
Stav objektuProjekt
VybavenoNe
Typ objektuPatrový
Druh objektuSamostatný
Lokalita objektuSamota
Užitná plocha375 m2
Zastavěná plocha306 m2
Plocha pozemku73573 m2
Plocha zahrady73573 m2
Ukazatel energetické náročnosti53 kWh/m2 za rok
Elektřina230V, 400V
OdpadČOV pro celý objekt
VodaMístní zdroj vody, Studna
Převod do OV
Parkování

Origo partneři v Nové Vsi

Pojištění a finance

Popis

Prodej jedinečného ranče - farmy na pozemku 73 573 m² – ideální pro chov koní a ranč

Nová Ves – Žďárský rybník, u Týniště nad Orlicí

Výhradně nabízíme naprosto výjimečný pozemek o rozloze 73 573 m² (7,36 ha), který je ideální nejen pro výstavbu rodinného domu, ale především pro chov koní, vybudování ranče nebo vlastní farmy.

Pozemek se nachází na unikátním místě – ze tří stran obklopen lesem, s přímým výhledem na Žďárský rybník. Nabízí absolutní klid, soukromí a prostor, který je dnes na trhu prakticky nedostupný.

Součástí nabídky je platné stavební povolení na rodinný dům s hospodářským zázemím – můžete ihned stavět.

Klíčové benefity

73 573 m² souvislého pozemku – ideální pro pastviny a výběhy
Perfektní pro koně, ranč nebo farmu
Soukromí bez sousedů, klid u lesa a vody
Připraveno k výstavbě – stavební povolení + projekt v ceně
Studna, elektřina, ČOV již na pozemku
Výborná dostupnost – Týniště nad Orlicí 4 km, dálnice D11 cca 15 km
Ideální pro chov koní

Tento pozemek nabízí podmínky, které majitelé koní hledají:

Rozlehlé plochy pro pastvu a výběhy
Možnost vybudování stájí, přístřešků i jízdárny
Okolní krajina ideální pro vyjížďky v přírodě
Klidné prostředí bez rušivých vlivů
Kombinace lesa, vody a luk – přirozené a zdravé prostředí pro zvířata

Stavební část

Z celkové plochy je cca 3 500 m² určeno pro výstavbu
(územní plán – smíšené obytné venkovské)

Platné stavební povolení zahrnuje:

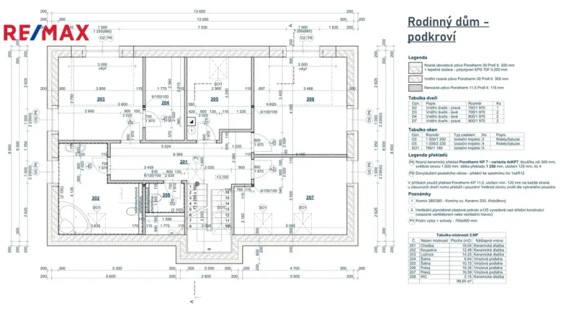
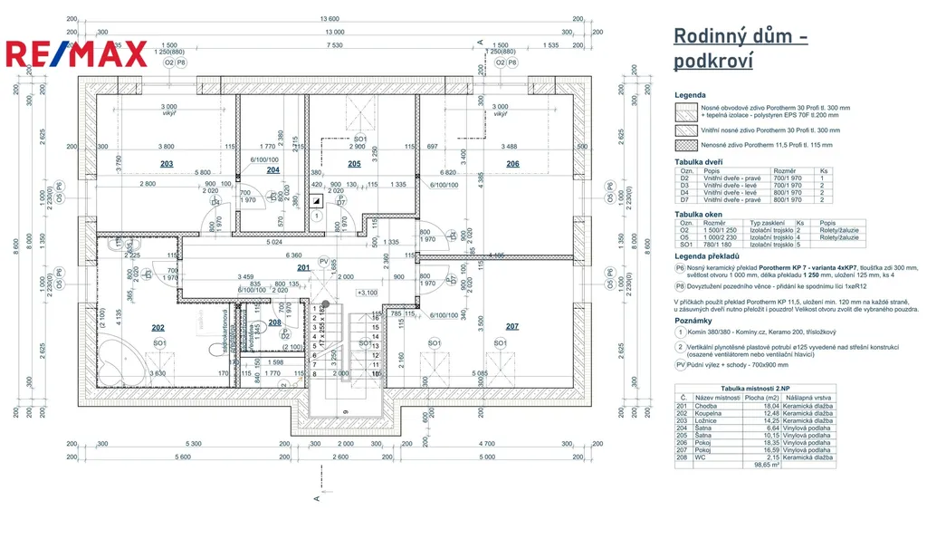
rodinný dům 5+KK (194,5 m²)
krytou terasu a stání
hospodářský objekt (180 m²)
kompletní infrastrukturu
Energetická náročnost: PENB A – mimořádně úsporné
Vytápění: tepelné čerpadlo vzduch–voda

Místo, které dává smysl

Pozemek je skrytý před okolním světem a nabízí kombinaci klidu, prostoru a přírody, kterou dnes najdete jen zřídka.

Ideální pro:

soukromý ranč
chov koní
menší farmu (např. ovce, hospodářství)
nebo jako dlouhodobou investici

Dle územního plánu jsou možné změny projektu, jeho rozšíření i zcela nový projekt podle Vašich představ
Závěrem, pokud hledáte místo, kde můžete žít, podnikat i mít zvířata v jednom, tohle je přesně ono.

Rád vás osobně provedu po pozemku v Nové Vsi.
Prodávající si vyhrazuje právo vybrat kupujícího na základě jím zvolených kritérií.

Makléř

Máte zájem o tuto nemovistost?

Tímto, v souladu s nařízením Evropského parlamentu a Rady (EU) 2016/679, v platném znění, prohlašuji, že mi je alespoň 16 let a uděluji tak svůj souhlas se zpracováním zadaných údajů (jméno, telefon, e-mail, ip adresa) společnosti B3 Technology, s.r.o., IČ: 07330600, se sídlem Novostavby 126/23, 435 11 Lom (správce dat), za účelem předání dotazu z tohoto formuláře Vámi vybranému inzerentovi a zpětného kontaktování mé osoby. Osobní údaje bude správce zpracovávat manuálně i automaticky přímo prostřednictvím svých zaměstnanců. Informace předané tímto formulářem budou uloženy v databázi správce maximálně po dobu 10 let. Odvolání souhlasu s uložením a zpracováním poskytnutých dat lze e-mailem na info@origo-reality.cz. V případě podezření na neoprávněné použití Vámi poskytnutých údajů máte právo předat podnět k šetření Úřadu pro ochranu osobních údajů. Více informací
Chystáte se prodat nemovitost?
Pomůžeme Vám!
Theleadway banner

Přihlášení k odběru

Nenechte si ujít nejnovější nabídky prodeje zemědělských objektů v Nové Vsi (okr. Rychnov nad Kněžnou).