Prodej rodinného domu, Valtice, 21. dubna, 111 m2

21. dubna, Valtice

7 200 000 Kč
/za nemovitost
Hypotéka od 32 180 Kč /měs. Chci hypotéku

Parametry domu

Adresa21. dubna, Valtice
ID184
StavbaCihlová
Stav objektuVelmi dobrý
VybavenoAno
Typ objektuPřízemní
Druh objektuŘadový
Užitná plocha111 m2
Plocha pozemku228 m2
OdpadVeřejná kanalizace
TopeníJiné
VodaVodovod
Topné tělesoKlimatizace
Zdroj teplé vodyBojler - elektro
Výtah
Parkování

Origo partneři v Valticích

Pojištění a finance

Popis

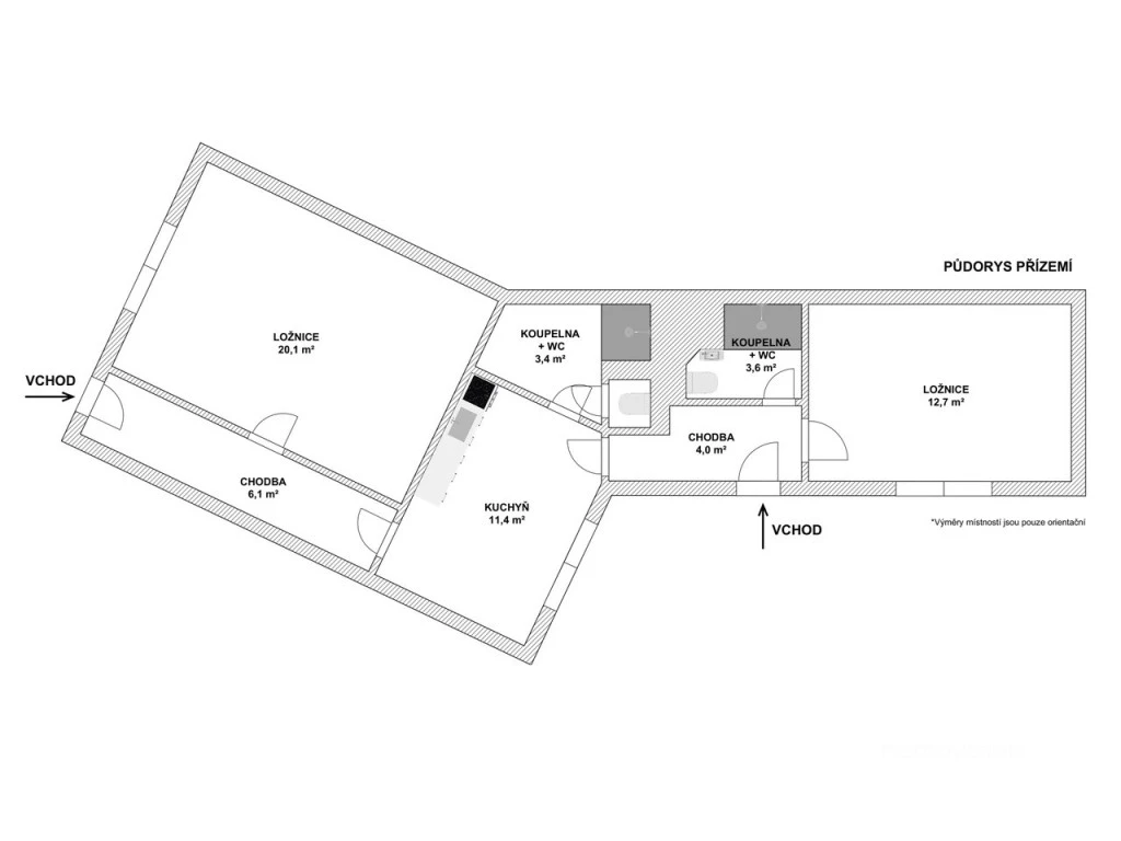
Valtice - jedna z nejžádanějších vinařských lokalit jižní Moravy. Právě zde nabízíme k prodeji rodinný dům, který díky svému dispozičnímu řešení nabízí široké možnosti využití – zejména pro vícegenerační bydlení, kombinaci bydlení a podnikání nebo částečný pronájem.

Dům je rozdělen na dvě samostatné jednotky (4 apartmány), které lze využívat odděleně i jako jeden celek.

Dispozice a uspořádání

Apartmány 1 a 2:

- vhodné jako hlavní obytná část domu
- sdílená plně vybavená kuchyň
- každý apartmán má vlastní koupelnu (sprchový kout, WC, umyvadlo)
- možnost oddělení uzamykatelnými dveřmi

Apartmány 3 a 4:

- samostatný vstup a chodba
- každý apartmán má vlastní kuchyňku a sociální zázemí
- vhodné pro další členy rodiny, hosty nebo podnikání

Nemovitost je v současnosti využívána ke krátkodobému pronájmu a je možné navázat na stávající provoz.

Lokalita

Valtice jsou součástí Lednicko-valtického areálu a patří mezi nejvyhledávanější lokality jižní Moravy. Nabízí kompletní občanskou vybavenost, výbornou dostupnost a široké možnosti volnočasových aktivit.

Ráda vás provedu touto krásnou nemovitostí. Pro více informací nebo sjednání prohlídky mě neváhejte kontaktovat.

Makléř

Máte zájem o tento dům?

Tímto, v souladu s nařízením Evropského parlamentu a Rady (EU) 2016/679, v platném znění, prohlašuji, že mi je alespoň 16 let a uděluji tak svůj souhlas se zpracováním zadaných údajů (jméno, telefon, e-mail, ip adresa) společnosti B3 Technology, s.r.o., IČ: 07330600, se sídlem Novostavby 126/23, 435 11 Lom (správce dat), za účelem předání dotazu z tohoto formuláře Vámi vybranému inzerentovi a zpětného kontaktování mé osoby. Osobní údaje bude správce zpracovávat manuálně i automaticky přímo prostřednictvím svých zaměstnanců. Informace předané tímto formulářem budou uloženy v databázi správce maximálně po dobu 10 let. Odvolání souhlasu s uložením a zpracováním poskytnutých dat lze e-mailem na info@origo-reality.cz. V případě podezření na neoprávněné použití Vámi poskytnutých údajů máte právo předat podnět k šetření Úřadu pro ochranu osobních údajů. Více informací
Chystáte se prodat nemovitost?
Pomůžeme Vám!
Theleadway banner

Přihlášení k odběru

Nenechte si ujít nejnovější nabídky prodeje rodinných domů v Valticích.