Pronájem kanceláře, Brno, Křenová, 54 m2

Křenová, Brno, Trnitá

Cena na vyžádání
/za měsíc
Získejte výhodnou HYPOTÉKU Chci hypotéku

Parametry nemovitosti

AdresaKřenová, Brno, Trnitá
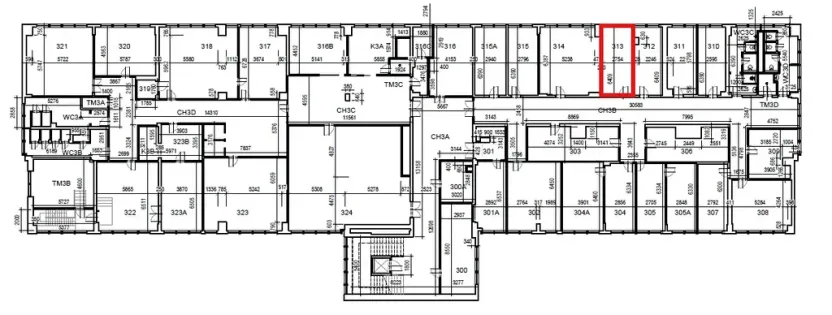
ID4101_2026_313, 314
StavbaCihlová
Stav objektuDobrý
Patro4. z 4
VybavenoNe
Užitná plocha54 m2
Třída energetické náročnostiB - Velmi úsporná
Výtah
Bezbarierový přístup

Origo partneři v Brně

Popis

Jako majitelé nabízíme k pronájmu tyto prostory v centru Brna:

Kanceláře č. 313 a 314 - 3. patro
• Výměra: 18 m2 a 36 m2
• K pronájmu od: 1.9.2026
• Popis prostor k pronájmu: Kanceláře jsou vzájemně propojeny dveřmi, jsou vybaveny kobercem a předokenními žaluziemi. Dispozice je ideální například pro menší tým 3-6 osob, přičemž větší kancelář může sloužit jako hlavní pracovní zázemí a menší místnost jako samostatná kancelář vedoucího či zasedací místnost na porady, schůzky s klienty či online meetingy.

Čtyřpodlažní administrativní budova Kroner s obchodním přízemím je jednou z dominant ulice Křenová a je součástí areálu NOSRETI. Nabízí více než 4500 m2 komerčních prostor k pronájmu. V přízemí budovy se nachází recepce a bankomat. Před budovou se nachází předzahrádka jejíž součástí je kavárna s posezením. Nájemcům je k dispozici neformální odpočinková místnost tzv. "Meeting Point", kuchyňky, sprchy a sociální zařízení. Za budovou se nachází uzavřené parkoviště pro 200 vozidel s automatickým parkovacím systémem, kolárna a odpočinková zóna s posezením a zelení. Budova je vybavena orientačním a kamerovým systémem ve společných prostorách, k dispozici je osobní i nákladní výtah.

Ve vedlejší budově Czechner jsou nájemcům k dispozici variabilní konferenční prostory se zázemím k pronájmu.

V blízkosti budovy se nachází zastávky MHD (Masná, Vlhká), v pěší vzdálenosti je hlavní vlakové a autobusové nádraží, OC Letmo, OC Vaňkovka a veškerá další občanská vybavenost.

Pro bližší informace či sjednání prohlídky nás neváhejte kontaktovat.

* Fotografie prostoru kanceláře je ilustrativní, i takto však vypadá jedna z našich kanceláří.

Makléř

Máte zájem o tuto nemovistost?

Tímto, v souladu s nařízením Evropského parlamentu a Rady (EU) 2016/679, v platném znění, prohlašuji, že mi je alespoň 16 let a uděluji tak svůj souhlas se zpracováním zadaných údajů (jméno, telefon, e-mail, ip adresa) společnosti B3 Technology, s.r.o., IČ: 07330600, se sídlem Novostavby 126/23, 435 11 Lom (správce dat), za účelem předání dotazu z tohoto formuláře Vámi vybranému inzerentovi a zpětného kontaktování mé osoby. Osobní údaje bude správce zpracovávat manuálně i automaticky přímo prostřednictvím svých zaměstnanců. Informace předané tímto formulářem budou uloženy v databázi správce maximálně po dobu 10 let. Odvolání souhlasu s uložením a zpracováním poskytnutých dat lze e-mailem na info@origo-reality.cz. V případě podezření na neoprávněné použití Vámi poskytnutých údajů máte právo předat podnět k šetření Úřadu pro ochranu osobních údajů. Více informací
Chystáte se prodat nemovitost?
Pomůžeme Vám!

Přihlášení k odběru

Nenechte si ujít nejnovější nabídky pronájmu kanceláří v Brně.