Prodej pozemku pro bydlení, Kyjov, 745 m2

Kyjov

Cena na vyžádání
/za nemovitost
Cena na vyžádání – majitel preferuje individuální jednání
Získejte výhodnou HYPOTÉKU Chci hypotéku

Parametry pozemku

AdresaKyjov
ID2026009PZ
Lokalita objektuOkraj obce
Plocha pozemku745 m2
ElektřinaBez přípojky
OdpadČOV pro celý objekt
KomunikaceAsfaltová, Zpevněná
TelekomunikaceInternet
DopravaVlak, Silnice, MHD, Autobus
VodaVodovod

Origo partneři v Kyjově

Pojištění a finance

Popis

Prodej pozemku 745 m² pro výstavbu rodinného domu, Kyjov (Kostelec) směr na obec Žádovice.

Nabízíme k prodeji pozemek o výměře 745 m² v okrajové části Kyjova – katastrální území obec Kostelec, s výbornou dostupností do centra města.

Pozemek má ideální proporce pro výstavbu rodinného domu – šířka cca 18,54 m a délka cca 43 m, což umožňuje komfortní umístění domu i dostatek prostoru pro zahradu a soukromí.
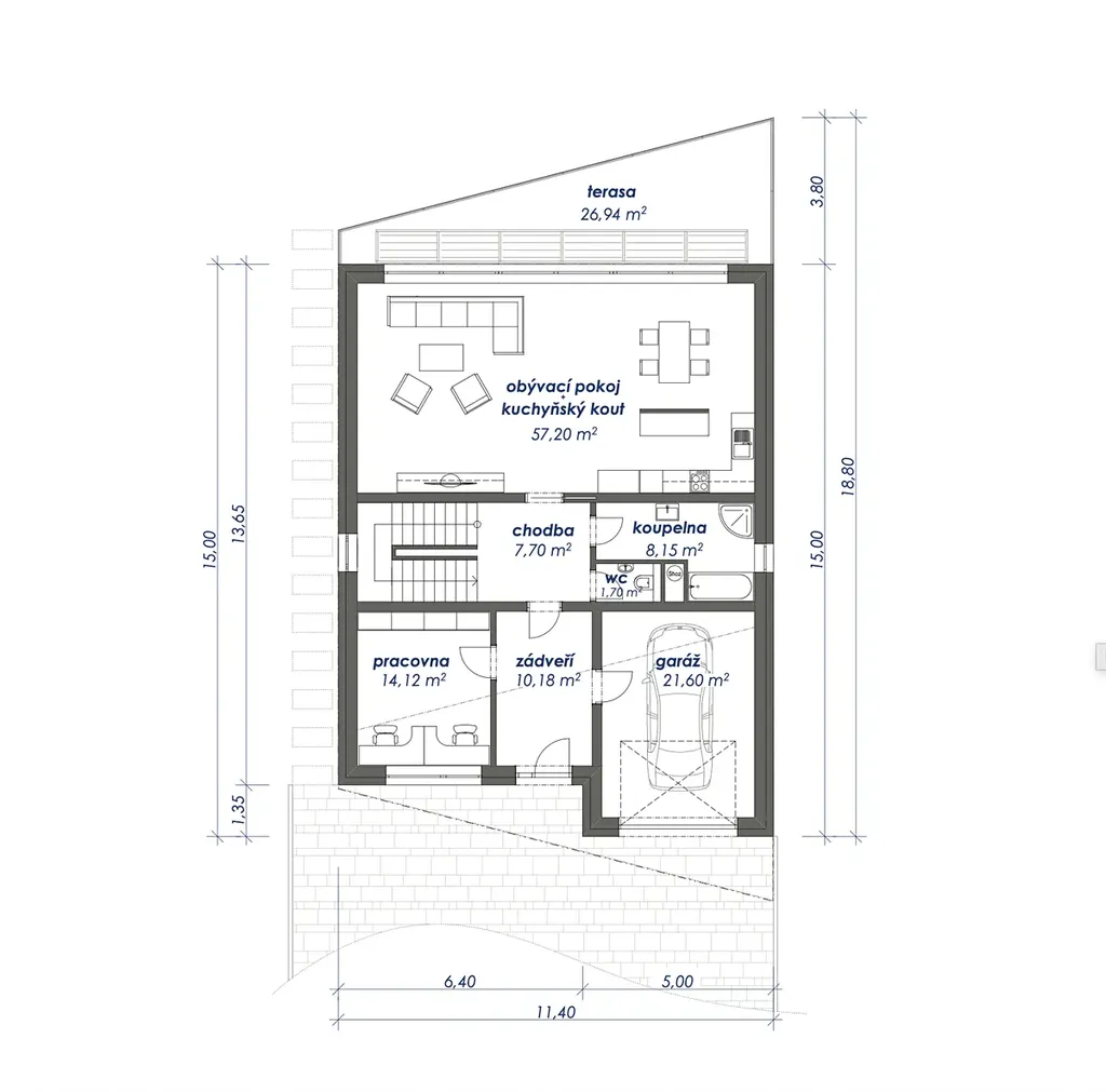
Součástí nabídky je také zpracovaná architektonická studie rodinného domu, která představuje možné řešení využití pozemku.

Hlavní výhody pozemku:
okrajová část Kyjova
pravidelný tvar vhodný pro výstavbu
dostupnost do centra
okolní zástavba rodinných domů
k dispozici studie rodinného domu
rozvojová lokalita s budoucím potenciálem.

Možnosti výstavby a územní informace
Dle územně plánovací informace je pozemek určen pro výstavbu rodinného domu.
Z podkladů pro konkrétní záměr vyplývají zejména tyto podmínky:
nutnost řešit 2. nadzemní podlaží jako obytné podkroví (nikoliv plnohodnotné patro)
maximální zastavěnost do 50 % plochy pozemku.

Zpracovaná studie tyto požadavky respektuje a je možné ji poměrně jednoduše upravit dle individuálních potřeb budoucího vlastníka.
Studie počítá například s domem:
částečně podsklepeným
se dvěma podlažími (2NP řešeno jako podkroví)
zastavěná plocha cca 160 m²
výška cca 6,3 m
půdorys cca 11,4 × 18,8 m.


Inženýrské sítě a technická infrastruktura:
vodovod vede při hranici pozemku podél komunikace (napojeny okolní domy)
přístup a opravy řešeny věcným břemenem
jedná se o podružné měření
kanalizace v lokalitě aktuálně není – nutno řešit vlastní ČOV
elektřina (NN) a CETIN v blízkosti pozemku s možností standardního napojení.


Veškeré sítě je nutné před realizací přesně vytyčit a napojení projednat se správci.

Rozvoj lokality:
Dle nového územního plánu města Kyjov je v okolí plánována další rozvojová zástavba (zejména zahrádkářská oblast), což do budoucna předpokládá doplnění technické infrastruktury.
Město zároveň připravuje projekt nového chodníku a propojení lokality s ulicí Brandlova, což dále zvýší komfort a dostupnost bydlení.

Důležité informace:
pozemek je v katastru nemovitostí veden jako orná půda
na pozemek není vydáno stavební povolení
dispozici je studie jako podklad pro budoucí výstavbu.


Doporučujeme zájemcům, aby si konkrétní možnosti výstavby a podmínky napojení na sítě ověřili na příslušných úřadech. Na vyžádání odešleme vyjádření stavebního úřadu a IS.

Shrnutí
Pozemek představuje zajímavou příležitost pro klienty, kteří chtějí bydlet v Kyjově, ale zároveň ocení okrajovou část Kyjova s potenciálem dalšího rozvoje a možností realizace domu dle vlastních představ.

V případě zájmu mne neváhejte kontaktovat.

Makléř

Máte zájem o tento pozemek?

Tímto, v souladu s nařízením Evropského parlamentu a Rady (EU) 2016/679, v platném znění, prohlašuji, že mi je alespoň 16 let a uděluji tak svůj souhlas se zpracováním zadaných údajů (jméno, telefon, e-mail, ip adresa) společnosti B3 Technology, s.r.o., IČ: 07330600, se sídlem Novostavby 126/23, 435 11 Lom (správce dat), za účelem předání dotazu z tohoto formuláře Vámi vybranému inzerentovi a zpětného kontaktování mé osoby. Osobní údaje bude správce zpracovávat manuálně i automaticky přímo prostřednictvím svých zaměstnanců. Informace předané tímto formulářem budou uloženy v databázi správce maximálně po dobu 10 let. Odvolání souhlasu s uložením a zpracováním poskytnutých dat lze e-mailem na info@origo-reality.cz. V případě podezření na neoprávněné použití Vámi poskytnutých údajů máte právo předat podnět k šetření Úřadu pro ochranu osobních údajů. Více informací
Chystáte se prodat nemovitost?
Pomůžeme Vám!
Theleadway banner

Přihlášení k odběru

Nenechte si ujít nejnovější nabídky prodeje pozemků pro bydlení v Kyjově (okr. Hodonín).