Prodej ordinace, Ostrava, U Staré elektrárny, 123 m2

U Staré elektrárny, Slezská Ostrava

6 765 000 Kč
/za nemovitost
Hypotéka od 30 235 Kč /měs. Chci hypotéku

Parametry nemovitosti

AdresaU Staré elektrárny, Slezská Ostrava
ID304
StavbaCihlová
Stav objektuVelmi dobrý
Užitná plocha123 m2
Třída energetické náročnostiB - Velmi úsporná
Elektřina230V
OdpadVeřejná kanalizace
TopeníLokální elektrické
TelekomunikaceInternet
DopravaSilnice, MHD, Autobus
VodaVodovod
Topné tělesoPřímotop
Zdroj topeníPřímotop
Výtah
Bezbarierový přístup
Parkování

Origo partneři v Ostravě

Popis

Exkluzivně Vám nabízíme ke koupi obchodní a administrativní prostory situované nedaleko centra Ostravy.

Koupě těchto prostor představuje výbornou investiční příležitost, jsou vhodné pro sídlo firmy, kanceláře, ordinace, showroom či obchodní provoz.

Parkování je zajištěno na vlastním pozemku přímo v areálu - k této jednotce jsou vyhrazená 2 parkovací stání + lze parkovat také přímo před jednotlivými obchodními jednotkami.

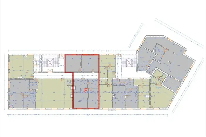
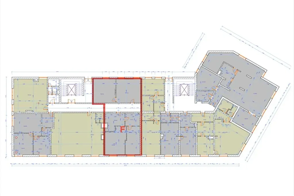
Zde se jedná o prostor pod písmenem F- 123 m2.

Dispozice a výměry jednotlivých jednotek, které je možno koupit:

1. nadzemní podlaží (1. NP):
- jednotka A 57 m2
- jednotka B 63 m2
- jednotka C 108 m2
- jednotka D 61 m2
- jednotka E 121 m2

2. nadzemní podlaží (2.NP)
- jednotka F 123 m2 (tuto nebytovou jednotku je možno změnit na bytovou jednotku)

Technický stav a vybavení:
- v celém objektu jsou hliníková okna a dveře
- podlahové krytiny (dlažba, PVC)
- objekt je udržovaný s možností okamžitého využití
- vytápění pomocí elektrických přímotopů

Další výhody:
- výborná dostupnost do centra Ostravy
- možnost rozdělení prostor pro více nájemců
- vhodné pro kombinaci podnikání a bydlení

Cena a prohlídky:
Pro více informací či sjednání osobní prohlídky kontaktujte naši realitní makléřku, která Vám ráda poskytne veškeré podrobnosti.

Rádi Vám pomůžeme také s financováním této nemovitosti zajistíme pro Vás výhodné hypoteční nebo úvěrové podmínky a kompletní servis.

Majitel si vyhrazuje právo vybrat kupujícího na základě jím zvolených kritérií. Veškeré zveřejněné údaje obsažené v tomto inzerátu mají pouze informativní charakter a nejsou nabídkou ve smyslu § 1731 nebo § 1732 občanského zákoníku, ani se nejedná o veřejný příslib dle § 1733 občanského zákoníku.

Makléř

Máte zájem o tuto nemovistost?

Tímto, v souladu s nařízením Evropského parlamentu a Rady (EU) 2016/679, v platném znění, prohlašuji, že mi je alespoň 16 let a uděluji tak svůj souhlas se zpracováním zadaných údajů (jméno, telefon, e-mail, ip adresa) společnosti B3 Technology, s.r.o., IČ: 07330600, se sídlem Novostavby 126/23, 435 11 Lom (správce dat), za účelem předání dotazu z tohoto formuláře Vámi vybranému inzerentovi a zpětného kontaktování mé osoby. Osobní údaje bude správce zpracovávat manuálně i automaticky přímo prostřednictvím svých zaměstnanců. Informace předané tímto formulářem budou uloženy v databázi správce maximálně po dobu 10 let. Odvolání souhlasu s uložením a zpracováním poskytnutých dat lze e-mailem na info@origo-reality.cz. V případě podezření na neoprávněné použití Vámi poskytnutých údajů máte právo předat podnět k šetření Úřadu pro ochranu osobních údajů. Více informací
Chystáte se prodat nemovitost?
Pomůžeme Vám!

Přihlášení k odběru

Nenechte si ujít nejnovější nabídky prodeje ordinací v Ostravě.