Prodej bytu 1+kk, Praha - Libeň, Nad Okrouhlíkem, 47 m2

Nad Okrouhlíkem, Praha, Libeň

7 990 000 Kč
/za nemovitost
Hypotéka od 35 710 Kč /měs. Chci hypotéku

Parametry bytu

AdresaNad Okrouhlíkem, Praha, Libeň
ID533441
StavbaCihlová
Stav objektuDobrý
Patro1. z 6
VybavenoČástečně
VlastnictvíOsobní
Užitná plocha47 m2
Třída energetické náročnostiD - Méně úsporná
Garáž
Výtah
Převod do OV
Parkování

Origo partneři v Praze 8

Stěhovací služby

Výkup a prodej starého nábytku

Pojištění a finance

Popis

Hledáte byt vhodný pro vlastní bydlení, nebo na investici?

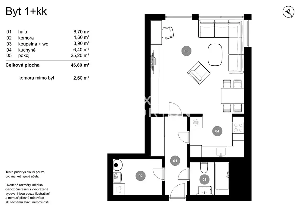
Nabízíme Vám prostorný byt s dispozicí 1+kk o výměře 46,80 m² umístěný v 1. nadzemním podlaží rezidenčního domu, v klidné části Prahy 8, v Libni.

Byt disponuje vstupní halou, obývacím pokojem s odděleným kuchyňským koutem, koupelnou a komorou a je orientovaný na JZ. Podlahy jsou laminátové, v hale a v kuchyňské části je dlažba. Okna jsou plastová s dvojskly.

Topení a ohřev vody je řešen plynovým kotlem, který je umístěn v komoře.

V domě je k dispozici výtah. K bytu náleží další komora o výměře 2,60 m2 v patře.

Parkovací stání ve 2.podzemním podlaží je možné dokoupit samostatně v ceně 890 000,- Kč.


V bytě je kuchyňská linka se spotřebiči Miele a pracovní deskou z umělého kamene Corian, jídelní stůl a židle, sedačka, konferenční stolek, komody a skříně v předsíni. V komoře je pračka a police. Dále je byt vybaven vchodovými bezpečnostními dveřmi, alarmem a venkovními okenními žaluziemi.


Nemovitost se nachází v projektu Obytný soubor Nad Mazankou, který je charakteristický jednotnou architekturou.

Libeň patří mezi vyhledávané lokality díky výborné občanské vybavenosti, dopravní dostupnosti a blízkosti přírody. V okolí se nachází například přírodní park Okrouhlík nebo Čimický háj, ideální pro procházky, sport i rodinné aktivity.

Stanice metra C Ládví je vzdálena pouhých 7 minut chůze. V docházkové vzdálenosti je také obchodní dům Ládví a další služby. Lokalita nabízí rychlé napojení na hlavní dopravní tahy i do centra města.

Makléř

Máte zájem o tento byt?

Tímto, v souladu s nařízením Evropského parlamentu a Rady (EU) 2016/679, v platném znění, prohlašuji, že mi je alespoň 16 let a uděluji tak svůj souhlas se zpracováním zadaných údajů (jméno, telefon, e-mail, ip adresa) společnosti B3 Technology, s.r.o., IČ: 07330600, se sídlem Novostavby 126/23, 435 11 Lom (správce dat), za účelem předání dotazu z tohoto formuláře Vámi vybranému inzerentovi a zpětného kontaktování mé osoby. Osobní údaje bude správce zpracovávat manuálně i automaticky přímo prostřednictvím svých zaměstnanců. Informace předané tímto formulářem budou uloženy v databázi správce maximálně po dobu 10 let. Odvolání souhlasu s uložením a zpracováním poskytnutých dat lze e-mailem na info@origo-reality.cz. V případě podezření na neoprávněné použití Vámi poskytnutých údajů máte právo předat podnět k šetření Úřadu pro ochranu osobních údajů. Více informací
Chystáte se prodat nemovitost?
Pomůžeme Vám!
Theleadway banner

Přihlášení k odběru

Nenechte si ujít nejnovější nabídky prodeje bytů 1+kk v Praze 8.