Prodej rodinného domu, Žacléř, Betlém II, 192 m2

Betlém II, Žacléř

Rezervováno
6 900 000 Kč
/za nemovitost
Kupní cena vč. provize RK a právního servisu
Hypotéka od 30 839 Kč /měs. Chci hypotéku

Parametry domu

StavRezervováno
AdresaBetlém II, Žacléř
IDCZK26168
StavbaCihlová
Stav objektuVelmi dobrý
Typ objektuPatrový
Druh objektuSamostatný
Užitná plocha192 m2
Zastavěná plocha113 m2
Podlahová plocha192 m2
Plocha pozemku992 m2
Plocha zahrady879 m2
Elektřina230V, 400V
PlynPlynovod
OdpadVeřejná kanalizace
TopeníÚstřední plynové
KomunikaceAsfaltová
DopravaVlak, Autobus
VodaVodovod
Topné tělesoRadiátory
Zdroj topeníPlynový kotel, Krbová kamna
Sklep
Terasa
Bezbarierový přístup
Parkování

Origo partneři v Žacléři

Pojištění a finance

Popis

K prodeji nabízíme velký rodinný dům se zahradou, vystavěný v ulici Betlém II v Žacléři, v klidné a ničím nerušené lokalitě.

Rodinný dům je zděná stavba se dvěma nadzemními podlažími a podsklepením, s celkovou výměrou užitné plochy cca 192 m2. Dům je aktuálně dispozice 6+1, lze ho užívat pro bydlení jedné rodiny, avšak je možné užití vícegenerační.

Přízemí: zádveří, velký obývací pokoj se vstupem na terasu, kuchyně, jídelna, koupelna s WC, dílna dříve užívaná jako garáž.

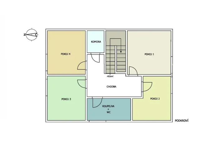
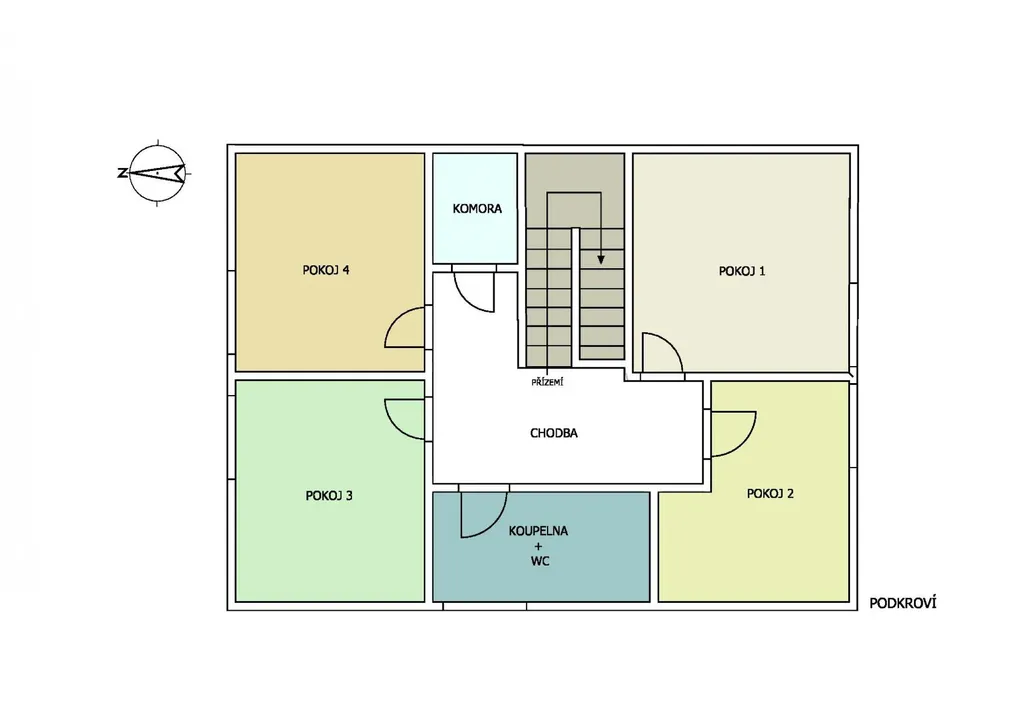
Podkroví: Celkem 4 samostatné neprůchozí pokoje, koupelna s wc, komora.

Suterén: sklepní prostory jsou prostorné, umístěné pod celým půdorysem domu a zahrnují velkou dílnu, 2 sklepy, kotelnu a prádelnu.

Dům je ve velmi dobrém stavebně technickém stavu. Vytápění domu je zajišťováno plynovým kotlem s rozvodem do radiátorů, záložním zdrojem jsou krbová kamna na dřevo umístěná v jídelně v přízemí domu. Dům je napojen na elektrickou energii, obecní vodovod, zemní plyn a kanalizaci. PENB nepředložen, proto uvádíme třídu G.

Za domem se nachází udržovaná zahrada s výměrou 879 m2, s vysázenými okrasnými a ovocnými stromy a květenou. Celý pozemek je oplocen, v přední části se vstupní brankou a vjezdovou bránou.

Dům je multifunkční prostornou stavbou a vyhovuje nárokům na moderní, a přitom klidné bydlení. Je ideální volbou pro rodiny, které hledají velký dům s dostatkem místností, který se nachází v klidné lokalitě.

Žacléř je malebné město ležící na úpatí východní části Krkonoš, jen pár minut od hranic s Polskem blízkost budované dálnice D11 výrazně usnadní dojezd z Hradce Králové či Prahy. Jde o obec s plnou občanskou vybaveností a díky své poloze je ideálním místem jak pro trvalé bydlení, tak i pro rekreaci či investici do nemovitosti v atraktivní horské oblasti. V přímé blízkosti Žacléře se nacházejí známá krkonošská střediska (Prkenný Důl, Janské Lázně, Pec p. Sněžkou, Mladé Buky, Černý Důl ad.)

Právní servis, advokátní úschova kupní ceny a další rozsáhlé služby RK EVOLUCE jsou pro kupující zdarma. Rádi se s vámi potkáme při prohlídce této krásné nemovitosti.

Makléř

Máte zájem o tento dům?

Tímto, v souladu s nařízením Evropského parlamentu a Rady (EU) 2016/679, v platném znění, prohlašuji, že mi je alespoň 16 let a uděluji tak svůj souhlas se zpracováním zadaných údajů (jméno, telefon, e-mail, ip adresa) společnosti B3 Technology, s.r.o., IČ: 07330600, se sídlem Novostavby 126/23, 435 11 Lom (správce dat), za účelem předání dotazu z tohoto formuláře Vámi vybranému inzerentovi a zpětného kontaktování mé osoby. Osobní údaje bude správce zpracovávat manuálně i automaticky přímo prostřednictvím svých zaměstnanců. Informace předané tímto formulářem budou uloženy v databázi správce maximálně po dobu 10 let. Odvolání souhlasu s uložením a zpracováním poskytnutých dat lze e-mailem na info@origo-reality.cz. V případě podezření na neoprávněné použití Vámi poskytnutých údajů máte právo předat podnět k šetření Úřadu pro ochranu osobních údajů. Více informací
Chystáte se prodat nemovitost?
Pomůžeme Vám!
Theleadway banner

Přihlášení k odběru

Nenechte si ujít nejnovější nabídky prodeje rodinných domů v Žacléři.