Pronájem bytu 2+kk, Znojmo, Jarošova, 45 m2

Jarošova, Znojmo

13 000 Kč
/za měsíc
bez poplatků, + provize RK
Získejte výhodnou HYPOTÉKU Chci hypotéku

Parametry bytu

AdresaJarošova, Znojmo
ID3791
StavbaCihlová
Stav objektuNovostavba
Patro1.
Lokalita objektuCentrum obce
VlastnictvíOsobní
Užitná plocha45 m2
Třída energetické náročnostiG - Mimořádně nehospodárná
Elektřina230V
OdpadVeřejná kanalizace
KomunikaceBetonová, Dlážděná, Asfaltová
DopravaVlak, Silnice, MHD, Autobus
VodaVodovod
Topné tělesoPodlahové vytápění
Zdroj teplé vodyElektrokotel
Sklep
Terasa
Parkování

Origo partneři v Znojmu

Popis

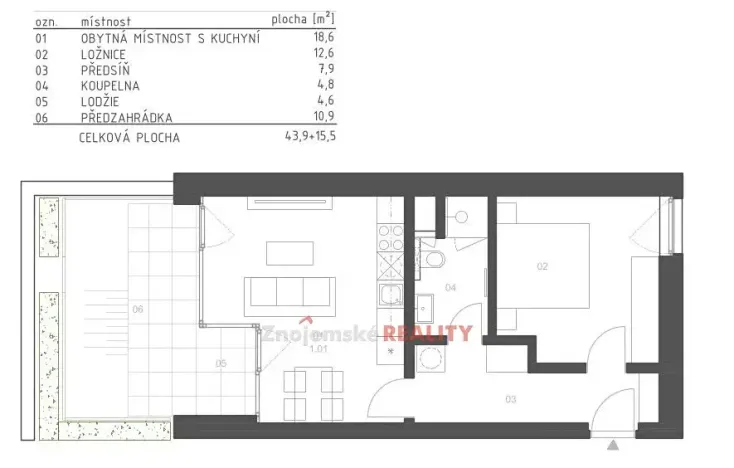
Pronájem moderního bytu 2+kk v Rezidenci Jarošova ve Znojmě nabízí skvělý domov pro pohodlný život. Byt se nachází v 1. NP a disponuje užitnou plochou 45 m². Skládá se ze vstupní chodby, obývacího pokoje s kuchyňským koutem, pokoje a koupelny s WC. Z obývacího pokoje je přímý vstup na terasu na kterou navazuje malá zahrádka. K dispozici je parkovací místo v garáži a sklepní kóje. V bytě naleznete novou kuchyňskou linku, vestavěné skříně a moderní koupelnu se sprchovým koutem. Díky své strategické poloze blízko veškeré občanské vybavenosti je tato nemovitost ideální pro zájemce, kteří hledají komfortní bydlení v klidné části města. Nezmeškejte tuto skvělou příležitost! Měsíční nájemné 13.000,-Kč + energie + kauce + RK. Více informací v RK.

Makléř

Máte zájem o tento byt?

Tímto, v souladu s nařízením Evropského parlamentu a Rady (EU) 2016/679, v platném znění, prohlašuji, že mi je alespoň 16 let a uděluji tak svůj souhlas se zpracováním zadaných údajů (jméno, telefon, e-mail, ip adresa) společnosti B3 Technology, s.r.o., IČ: 07330600, se sídlem Novostavby 126/23, 435 11 Lom (správce dat), za účelem předání dotazu z tohoto formuláře Vámi vybranému inzerentovi a zpětného kontaktování mé osoby. Osobní údaje bude správce zpracovávat manuálně i automaticky přímo prostřednictvím svých zaměstnanců. Informace předané tímto formulářem budou uloženy v databázi správce maximálně po dobu 10 let. Odvolání souhlasu s uložením a zpracováním poskytnutých dat lze e-mailem na info@origo-reality.cz. V případě podezření na neoprávněné použití Vámi poskytnutých údajů máte právo předat podnět k šetření Úřadu pro ochranu osobních údajů. Více informací
Chystáte se prodat nemovitost?
Pomůžeme Vám!

Přihlášení k odběru

Nenechte si ujít nejnovější nabídky pronájmu bytů 2+kk v Znojmu.