Pronájem kanceláře, Česká Lípa, Děčínská

Děčínská, Česká Lípa

Cena na vyžádání
Získejte výhodnou HYPOTÉKU Chci hypotéku

Parametry nemovitosti

AdresaDěčínská, Česká Lípa
ID001
StavbaSmíšená
Lokalita objektuCentrum obce
VlastnictvíOsobní
Třída energetické náročnostiC - Úsporná

Origo partneři v České Lípě

Rekonstrukce

Úklidové služby

Popis

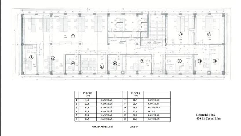
K pronájmu nabízíme celé rekonstruované první nadzemní podlaží v administrativní budově areálu Česká Lípa, Děčínská 1762. Jedná se o čtyřpodlažní budovu s plochou střechou, která prošla rekonstrukcí se zateplením v roce 2017. Nabízené podlaží bylo celkově zrekonstruováno v roce 2020. Prostory jsou vhodné jako kancelářské či pro lehkou výrobní činnost. Objekt je vybaven výtahem, centrální vrátnicí, v budově je k dispozici kapacitní internet. Vytápění je dálkové. Před administrativní budovou se nachází zastávka MHD. V blízkosti je nákupní centrum a pekárna. K dispozici jsou k pronájmu parkovací místa pro osobní vozy a také pro nákladní vozidla (kamiony). V areálu se nachází pneuservis, mycí linka a čerpací stanice. Ve dvoře je LIDL. Dostupné od 1.7.2026

Makléř

Máte zájem o tuto nemovistost?

Tímto, v souladu s nařízením Evropského parlamentu a Rady (EU) 2016/679, v platném znění, prohlašuji, že mi je alespoň 16 let a uděluji tak svůj souhlas se zpracováním zadaných údajů (jméno, telefon, e-mail, ip adresa) společnosti B3 Technology, s.r.o., IČ: 07330600, se sídlem Novostavby 126/23, 435 11 Lom (správce dat), za účelem předání dotazu z tohoto formuláře Vámi vybranému inzerentovi a zpětného kontaktování mé osoby. Osobní údaje bude správce zpracovávat manuálně i automaticky přímo prostřednictvím svých zaměstnanců. Informace předané tímto formulářem budou uloženy v databázi správce maximálně po dobu 10 let. Odvolání souhlasu s uložením a zpracováním poskytnutých dat lze e-mailem na info@origo-reality.cz. V případě podezření na neoprávněné použití Vámi poskytnutých údajů máte právo předat podnět k šetření Úřadu pro ochranu osobních údajů. Více informací
Chystáte se prodat nemovitost?
Pomůžeme Vám!

Přihlášení k odběru

Nenechte si ujít nejnovější nabídky pronájmu kanceláří v České Lípě.