Prodej bytu 2+kk, Praha, Rychtáře Petříka, 42 m2

Rychtáře Petříka, Praha 10

7 890 000 Kč
/za nemovitost
včetně provize RK
Hypotéka od 35 264 Kč /měs. Chci hypotéku

Parametry bytu

Náklady na bydlení3 500
AdresaRychtáře Petříka, Praha 10
ID12172
StavbaCihlová
Stav objektuNovostavba
Patro2. z 7
VybavenoČástečně
Lokalita objektuSídliště
VlastnictvíOsobní
Užitná plocha42 m2
Zastavěná plocha43 m2
Podlahová plocha48 m2
Třída energetické náročnostiB - Velmi úsporná
Elektřina230V
PlynPlynovod
OdpadVeřejná kanalizace
KomunikaceAsfaltová
TelekomunikaceTelefon, Internet, Satelit, Kabelová televize, Kabelové rozvody, Ostatní
DopravaVlak, Dálnice, Silnice, MHD, Autobus
VodaMístní zdroj vody, Vodovod
Balkon
Garáž
Výtah
Bezbarierový přístup

Origo partneři v Praze 10

Stěhovací služby

Výkup a prodej starého nábytku

Popis

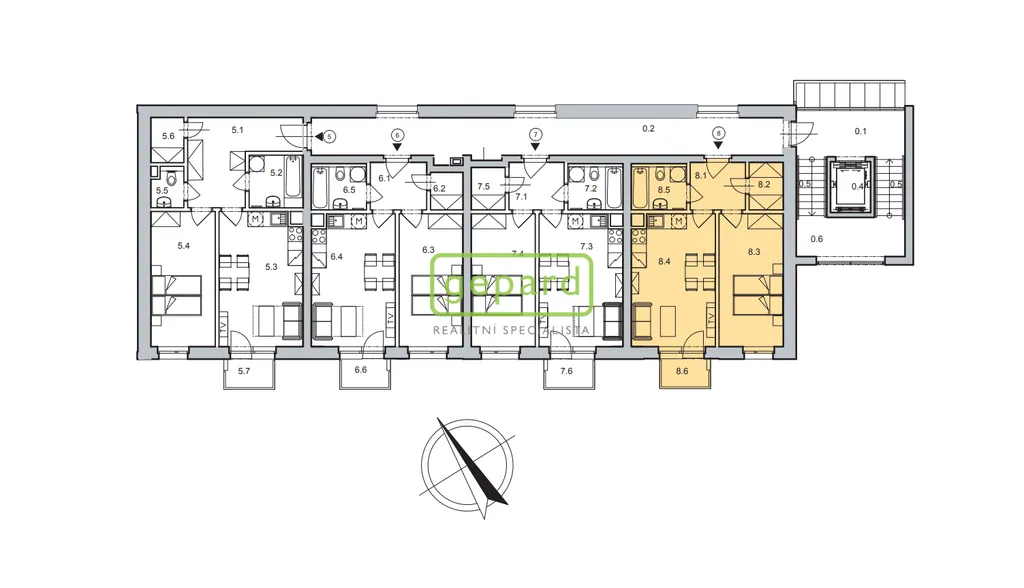
Dovolujeme si Vám exkluzivně nabídnout prodej novostavby, cihlového bytu 2+kk s balkonem a garážovým stáním, s výhledem na Hostivařský lesopark, v developerském projektu Bydlení v Hostivaři – plocha bytu 43m2 + balkon 3m2, ul. Rychtáře Petříka, v Praze 10 - Hostivaři.
Jedná se o novostavbu z roku 2016. Byt se nachází v 2.NP s výtahem. Je orientovaný na jižní stranu s otevřeným výhledem. Výhodou jsou předokenní, hliníkové žaluzie v ložnici. Z předsíně jsou samostatné vstupy do obývacího pokoje s kuchyňským koutem, ložnice, koupelny společné s WC. Kuchyňská linka je vybavena sporákem a troubou. Vstup na balkon je z obývacího pokoje.
Koupelna je s vanou, WC je závěsné, je zde i přípojka na pračku a sušičku.
Byt má zděné příčky, plovoucí podlahy - dekor dub, plastová okna s trojskly opatřená předokenními žaluziemi s mechanickým ovládáním. Dveře a zárubně dveří s dřevěným dekorem ladícím k podlaze a vstupní protipožární dveře s ocelovou zárubní.
V bytě je zavedená optická síť do ložnice i obývacího pokoje pro internet, telefon a kabelovou televizi.
V případě zájmu je možno odkoupit také zařízení bytu, které není součástí kupní ceny (sedačka, jídelní stůl se židlemi, šatní skříň v předsíni a v ložnici, manželská postel atd.).
Dům je cihlový s 6-ti nadzemními podlažími, ve kterých jsou situovány byty a jedním podzemním podlažím, kde se nachází garážové stání.
V místě je veškerá občanská vybavenost. Např: V přímé blízkosti prodejna LIDL, a dále Nákupní centrum Hostivař (Vivo!), multikino, tenisové kurty, Lesopark s Hostivařskou přehradou, squash, plavecký bazén, fotbalové hřiště, golf Hostivař, fitness, bowling a další.
Dopravní dostupnost MHD tramvaj 22, 26 a BUS 154, 175, 181, 182, ze zastávky Na Groši, která je ve vzdálenosti 5 min. chůze od domu.
Byt je možné koupit na hypotéku, kterou vám pomůžeme zajistit. Pro bližší informace kontaktujte makléře.
Energetická třída B. K nastěhování ihned.

Makléř

Máte zájem o tento byt?

Tímto, v souladu s nařízením Evropského parlamentu a Rady (EU) 2016/679, v platném znění, prohlašuji, že mi je alespoň 16 let a uděluji tak svůj souhlas se zpracováním zadaných údajů (jméno, telefon, e-mail, ip adresa) společnosti B3 Technology, s.r.o., IČ: 07330600, se sídlem Novostavby 126/23, 435 11 Lom (správce dat), za účelem předání dotazu z tohoto formuláře Vámi vybranému inzerentovi a zpětného kontaktování mé osoby. Osobní údaje bude správce zpracovávat manuálně i automaticky přímo prostřednictvím svých zaměstnanců. Informace předané tímto formulářem budou uloženy v databázi správce maximálně po dobu 10 let. Odvolání souhlasu s uložením a zpracováním poskytnutých dat lze e-mailem na info@origo-reality.cz. V případě podezření na neoprávněné použití Vámi poskytnutých údajů máte právo předat podnět k šetření Úřadu pro ochranu osobních údajů. Více informací
Chystáte se prodat nemovitost?
Pomůžeme Vám!

Přihlášení k odběru

Nenechte si ujít nejnovější nabídky prodeje bytů 2+kk v Praze 10.