Soccer reality

Prodej rodinného domu, Sibřina, Ke Hřišti, 220 m2

Ke Hřišti, Sibřina

15 580 000 Kč
/za nemovitost
včetně provize RK
Hypotéka od 69 633 Kč /měs. Chci hypotéku

Parametry domu

AdresaKe Hřišti, Sibřina
StavbaCihlová
Stav objektuVelmi dobrý
VybavenoAno
Druh objektuSamostatný
Lokalita objektuKlidná část obce
Užitná plocha220 m2
Zastavěná plocha145 m2
Podlahová plocha270 m2
Plocha pozemku509 m2
Plocha zahrady173 m2
Ukazatel energetické náročnosti8500 kWh/m2 za rok
PlynPlynovod
OdpadVeřejná kanalizace
KomunikaceAsfaltová
DopravaSilnice, MHD, Autobus
VodaVodovod, Studna
Topné tělesoPodlahové vytápění
Zdroj topeníTepelné čerpadlo, Krb
Zdroj teplé vodyBojler - elektro
Garáž
Sklep
Výtah
Bezbarierový přístup
Parkování

Origo partneři v Sibřině

Popis

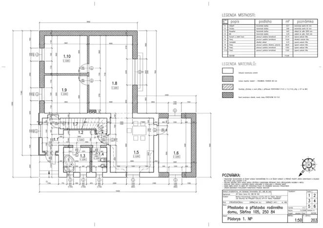
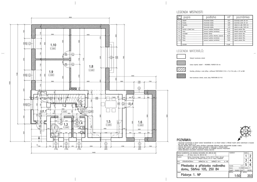
Prodej rodinného domu se třemi byty.
Ve výhradním zastoupení nabízíme rodinný dům z roku 2014 o celkové podlahové ploše cca 270 m² na rohovém pozemku v obci Sibřina nedaleko od Prahy. Nemovitost je vhodná jak pro vícegenerační bydlení nebo jako investice s možností pronájmu až tří bytových jednotek.
V přízemí se nachází dokončený byt 4+1 o velikosti cca 100 m² s velkým obývacím pokojem, kuchyní na míru se spotřebiči a vstupem na jižně orientovanou terasu (20 m²) s výhledem do zahrad a dostatkem soukromí.
V patře jsou připraveny dva byty 2+1 (každý cca 54 m²) před dokončením. Byty mají hotové rozvody elektřiny, vody, podlahového vytápění, omítky i podlahy připravené na finální krytinu. Jeden byt má lodžii, druhý je připraven pro terasu.
Každý byt má samostatný vchod
Dům je celý podsklepený (cca 60 m²) s možností využití jako dílna, sklad, posilovna nebo společenský prostor.
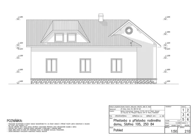
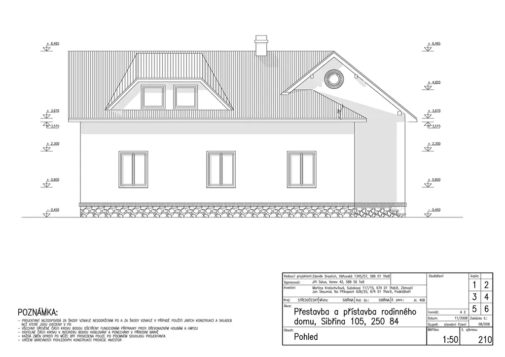
Stavba je provedena z kvalitních materiálů – zdivo Porotherm 44 cm, lité stropy, plastová okna, elektroinstalace v mědi, zateplení minerální vatou Knauf.
Vytápění zajišťuje tepelné čerpadlo s akumulační nádrží a podlahovým vytápěním, doplněné výkonnou krbovou vložkou s rozvodem do radiátorů.
Velkou výhodou je klidná lokalita s dobrou dostupností do Prahy a možnost dokončení horních bytů dle představ nového majitele.
K domu je vypracováno Prohlášení vlastníka budovy.
________________________________________

Makléř

Máte zájem o tento dům?

Tímto, v souladu s nařízením Evropského parlamentu a Rady (EU) 2016/679, v platném znění, prohlašuji, že mi je alespoň 16 let a uděluji tak svůj souhlas se zpracováním zadaných údajů (jméno, telefon, e-mail, ip adresa) společnosti B3 Technology, s.r.o., IČ: 07330600, se sídlem Novostavby 126/23, 435 11 Lom (správce dat), za účelem předání dotazu z tohoto formuláře Vámi vybranému inzerentovi a zpětného kontaktování mé osoby. Osobní údaje bude správce zpracovávat manuálně i automaticky přímo prostřednictvím svých zaměstnanců. Informace předané tímto formulářem budou uloženy v databázi správce maximálně po dobu 10 let. Odvolání souhlasu s uložením a zpracováním poskytnutých dat lze e-mailem na info@origo-reality.cz. V případě podezření na neoprávněné použití Vámi poskytnutých údajů máte právo předat podnět k šetření Úřadu pro ochranu osobních údajů. Více informací
Chystáte se prodat nemovitost?
Pomůžeme Vám!

Přihlášení k odběru

Nenechte si ujít nejnovější nabídky prodeje rodinných domů v Sibřině.