Pronájem skladu, Plzeň - Východní Předměstí, Jateční, 4870 m2 (ID: 1997596)

Jateční, Plzeň, Východní Předměstí

Cena na vyžádání
/za metr čtvereční / měsíc
Získejte výhodnou HYPOTÉKU Chci hypotéku

Parametry nemovitosti

AdresaJateční, Plzeň, Východní Předměstí
IDN7125
StavbaSkeletová
Stav objektuNovostavba
Typ objektuPřízemní
Lokalita objektuRušná část obce
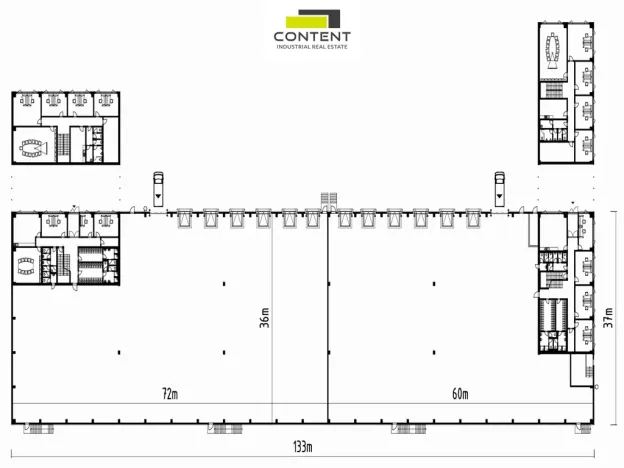
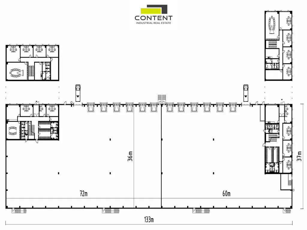
Užitná plocha4870 m2
Třída energetické náročnostiB - Velmi úsporná
Parkování

Origo partneři v Plzni

Stěhovací služby

Pojištění a finance

Popis

Pronájem skladu, výrobních prostor 4870 m² Plzeň 4- Jateční ulice.

V zastoupení majitele a bez provize nabízíme samostatnou jednotku o výměře 4870 m² v nově vznikajícím areálu Nová Jateční vedle plně obsazeného retail parku Intercora. Areál se nachází vedle frekventované ulice Jateční a zároveň na budoucím východním obchvatu Plzně, což zajišťuje vynikající dopravní dostupnost i obchodní exponovanost.

- 4870 m² dostupných (k dispozici 2Q/2027 – hala B), stavební povolení vydáno
- výška prostoru 10 m
- kanceláře a sociální zázemí dle požadavků nájemce
- parkovací místa přímo před jednotkou
- bezprašné podlahy s minimální nosností 5 t/m²
- přímý vjezd z úrovně terénu
- hydraulické rampy
- možnost dispozičních úprav podle potřeb klienta
- lze dělit od cca 1100 m²
- MHD v docházkové vzdálenosti, v areálu plánované nabíjecí stanice
- příjezd a parkování TIR bezproblémové, manipulační a parkovací plochy
- BREAM Excellent
- možnost instalace FVE
- v areálu jsou k dispozici další skladové a obchodní jednotky o velikosti od 570 m² až po 4870 m²

Cena za pronájem na dotaz.
V případě zájmu nás kontaktujte, rádi zodpovíme Vaše dotazy.

Makléř

Máte zájem o tuto nemovistost?

Tímto, v souladu s nařízením Evropského parlamentu a Rady (EU) 2016/679, v platném znění, prohlašuji, že mi je alespoň 16 let a uděluji tak svůj souhlas se zpracováním zadaných údajů (jméno, telefon, e-mail, ip adresa) společnosti B3 Technology, s.r.o., IČ: 07330600, se sídlem Novostavby 126/23, 435 11 Lom (správce dat), za účelem předání dotazu z tohoto formuláře Vámi vybranému inzerentovi a zpětného kontaktování mé osoby. Osobní údaje bude správce zpracovávat manuálně i automaticky přímo prostřednictvím svých zaměstnanců. Informace předané tímto formulářem budou uloženy v databázi správce maximálně po dobu 10 let. Odvolání souhlasu s uložením a zpracováním poskytnutých dat lze e-mailem na info@origo-reality.cz. V případě podezření na neoprávněné použití Vámi poskytnutých údajů máte právo předat podnět k šetření Úřadu pro ochranu osobních údajů. Více informací
Chystáte se prodat nemovitost?
Pomůžeme Vám!
Theleadway banner

Přihlášení k odběru

Nenechte si ujít nejnovější nabídky pronájmu skladů v Plzni.