Prodej obchodního prostoru, Křemže, Náměstí, 124 m2

Náměstí, Křemže

1 750 000 Kč
/za nemovitost
Cena zahrnuje veškerý právní servis, poplatek za návrh na vklad na KN a provizi RK.
Hypotéka od 7 821 Kč /měs. Chci hypotéku

Parametry nemovitosti

AdresaNáměstí, Křemže
ID19138
StavbaSmíšená
Stav objektuDobrý
VybavenoNe
Typ objektuPatrový
Lokalita objektuCentrum obce
Užitná plocha124 m2
Zastavěná plocha781 m2
Podlahová plocha124 m2
Třída energetické náročnostiG - Mimořádně nehospodárná
Elektřina230V
PlynPlynovod
OdpadVeřejná kanalizace
KomunikaceAsfaltová
TelekomunikaceTelefon, Internet
DopravaVlak, Silnice, MHD, Autobus
VodaMístní zdroj vody, Vodovod
Převod do OV

Origo partneři v Křemži

Výkup a prodej starého nábytku

Popis

Dobrý den,
společně s majitelem nabízíme k prodeji spoluvlastnický podíl 1/2 na nebytové jednotce č. 14/1 o celkové podlahové ploše 123,7 m², která se nachází v přízemí domu č.p. 14 přímo na náměstí městyse Křemže v okrese Český Krumlov.

Křemže je stabilní jihočeský městys s přibližně třemi tisíci obyvateli a plnou základní občanskou vybaveností. Díky své poloze mezi Českým Krumlovem a Českými Budějovicemi funguje jako přirozené lokální centrum pro okolní obce. Náměstí, kde se nabízená jednotka nachází, je místem každodenního pohybu místních obyvatel – nachází se zde služby, obchody i veřejné instituce. Právě tato poloha zajišťuje dlouhodobou stabilitu služeb a podnikání v dané lokalitě.

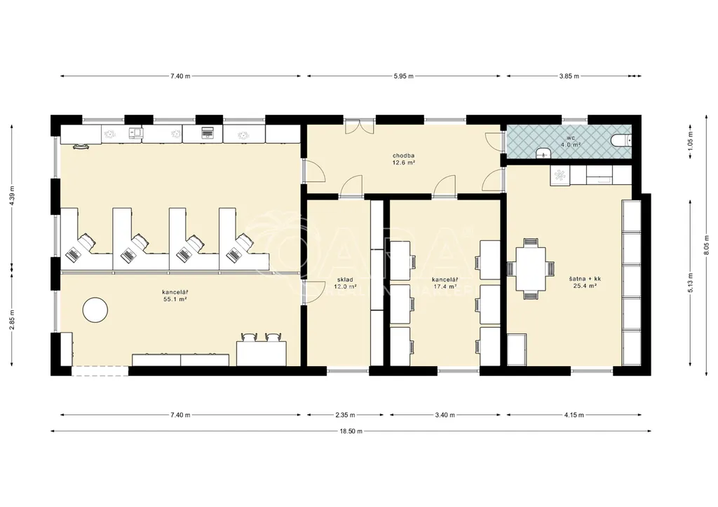
Nebytová jednotka je dlouhodobě využívána Českou poštou, která zde provozuje svou pobočku. Pro investora to znamená stabilního a prověřeného nájemce s pravidelným provozem služeb pro místní obyvatele. Prostory o celkové ploše 123,7 m² slouží jako kancelářské a provozní zázemí pobočky a zahrnují hlavní kancelář pro obsluhu klientů, další kancelářské prostory, skladovací místnosti, chodbu, sociální zařízení a zázemí pro zaměstnance včetně menší kuchyňky.

Nájemní smlouva je uzavřena na dobu neurčitou a obsahuje možnost každoroční valorizace nájemného o inflaci. Energie má nájemce sjednány přímo na sebe, takže vlastník nenese provozní náklady spojené s elektřinou či plynem.

Aktuální čistý měsíční příjem připadající na prodávaný podíl činí 5.780 Kč, tedy 69.360 Kč ročně. Kupní cena podílu je 1.750.000 Kč, což při současném nájmu představuje hrubý roční výnos z nájmu 3,96 %. A to bez započtení budoucí valorizace nájemného a bez zohlednění případného růstu hodnoty samotné nemovitosti.

Investice tak nabízí kombinaci pravidelného příjmu, stabilního nájemce a reálného majetku v centru obce. V porovnání s běžnými bankovními produkty jde o investici krytou nemovitostí a dlouhodobým nájemním vztahem.

Nebytová jednotka se nachází v přízemí zděného domu č.p. 14 na pozemku parc. č. 75/1 o výměře 823 m². Dům je napojen na veřejný vodovod, kanalizaci, elektřinu i plyn a vytápění je řešeno plynovým kotlem. Střecha domu s taškovou krytinou prošla v nedávné době renovací, takže tato větší investice je již vyřešena. Společné prostory domu jsou jinak v původním, ale udržovaném stavu a zahrnují konstrukce domu, střechu, rozvody, schodiště, chodby a další technické prvky. O úklid i údržbu společných prostor a pozemku se stará přímo společenství spoluvlastníků.

Tato nabídka je vhodná pro investora, který hledá konzervativní uložení prostředků s pravidelným výnosem a minimální správní náročností. Nejde o spekulativní projekt, ale o fungující komerční prostor s kontinuálním cashflow.

V případě zájmu o více informací nás neváhejte kontaktovat.
Těšíme se na slyšenou a na viděnou, BartlGroup.

Makléř

Máte zájem o tuto nemovistost?

Tímto, v souladu s nařízením Evropského parlamentu a Rady (EU) 2016/679, v platném znění, prohlašuji, že mi je alespoň 16 let a uděluji tak svůj souhlas se zpracováním zadaných údajů (jméno, telefon, e-mail, ip adresa) společnosti B3 Technology, s.r.o., IČ: 07330600, se sídlem Novostavby 126/23, 435 11 Lom (správce dat), za účelem předání dotazu z tohoto formuláře Vámi vybranému inzerentovi a zpětného kontaktování mé osoby. Osobní údaje bude správce zpracovávat manuálně i automaticky přímo prostřednictvím svých zaměstnanců. Informace předané tímto formulářem budou uloženy v databázi správce maximálně po dobu 10 let. Odvolání souhlasu s uložením a zpracováním poskytnutých dat lze e-mailem na info@origo-reality.cz. V případě podezření na neoprávněné použití Vámi poskytnutých údajů máte právo předat podnět k šetření Úřadu pro ochranu osobních údajů. Více informací
Chystáte se prodat nemovitost?
Pomůžeme Vám!

Přihlášení k odběru

Nenechte si ujít nejnovější nabídky prodeje obchodních prostor v Křemži.