Prodej rodinného domu, Praha - Hodkovičky, Polední, 200 m2

Polední, Praha, Hodkovičky

28 231 500 Kč
/za nemovitost
Hypotéka od 126 178 Kč /měs. Chci hypotéku

Parametry domu

AdresaPolední, Praha, Hodkovičky
StavbaCihlová
Stav objektuK demolici
Užitná plocha200 m2
Plocha pozemku957 m2
Třída energetické náročnostiG - Mimořádně nehospodárná
Elektřina230V, 400V
PlynPlynovod
OdpadVeřejná kanalizace
VodaVodovod, Studna
Garáž
Sklep

Origo partneři v Praze 4

Stěhovací služby

Výkup a prodej starého nábytku

Pojištění a finance

Popis

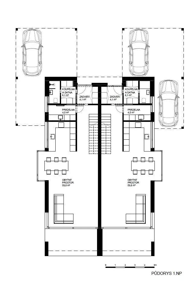
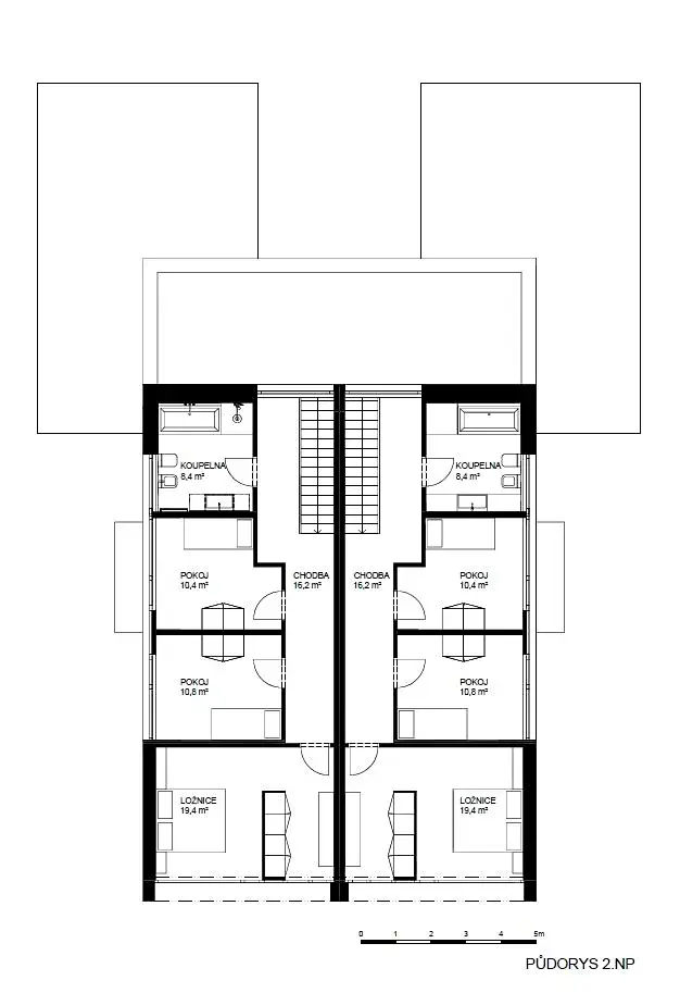
Unikátní příležitost na výstavbu moderního dvojdomu v prestižní části Prahy 4 – Hodkovičkách, ulice Polední. Každý dům o dispozici 4+kk disponuje užitnou plochou 140 m2, terasou a až třemi parkovacími stání. Moderní pojetí zajišťuje obytný prostor s prosklenými stěnami , které zajišťují maximální propojení s venkovní pobytovou zahradou a západně orientovanou částečně krytou terasou.

1.NP – prostorný obytný prostor s kuchyňským koutem, zádveří, šatna, koupelna, technická místnost
2.NP – komfortní ložnice s šatnou, koupelna, 2x dětský pokoj

Plocha zeleně, včetně pobytové terasy a zpevněných ploch je u severní části dvojdomu 398 m2, u jižní pak 351 m2.

Současný stavební pozemek disponuje výměrou 957 m2 (29.500,- Kč/m2). Pozemek je rovinatý, na hranici zelené zalesněné části. Vlastní přípojka elektřiny, plynu, kanalizace a vodovodu. Na současný rodinný dům, který je na pozemku vystaven, je již vydán demoliční výměr (souhlas s odstraněním stavby). Pozemek je slunný, umístěný v klidné části obce , okolí tvoří zástavba rodinných domů. Situováno v nefrekventované ulici sloužící pro příjezd rezidentů.

Hodkovičky jsou v rámci Prahy velmi zajímá a žádaná lokalita s kompletní občanskou vybaveností a perfektní dopravní dostupností. Je zde mnoho míst, kde se dají provozovat volnočasové a sportovní aktivity. V těsné blízkosti se nachází lesopark Hodkovičky, který lze využít k procházkám i cyklistickým výletům.

Nemovitost je ideální pro ty, kteří chtějí mít centrum Prahy na dosah, disponovat prestižní adresou a zároveň být v blízkosti zeleně. Zastávka autobusu MHD 50 metrů od pozemku.

Energetická třída G inzerovaného objektu je uvedena dočasně. Po dodání energetického štítku bude uvedena skutečná energetická třída této nemovitosti.

Makléř

Máte zájem o tento dům?

Tímto, v souladu s nařízením Evropského parlamentu a Rady (EU) 2016/679, v platném znění, prohlašuji, že mi je alespoň 16 let a uděluji tak svůj souhlas se zpracováním zadaných údajů (jméno, telefon, e-mail, ip adresa) společnosti B3 Technology, s.r.o., IČ: 07330600, se sídlem Novostavby 126/23, 435 11 Lom (správce dat), za účelem předání dotazu z tohoto formuláře Vámi vybranému inzerentovi a zpětného kontaktování mé osoby. Osobní údaje bude správce zpracovávat manuálně i automaticky přímo prostřednictvím svých zaměstnanců. Informace předané tímto formulářem budou uloženy v databázi správce maximálně po dobu 10 let. Odvolání souhlasu s uložením a zpracováním poskytnutých dat lze e-mailem na info@origo-reality.cz. V případě podezření na neoprávněné použití Vámi poskytnutých údajů máte právo předat podnět k šetření Úřadu pro ochranu osobních údajů. Více informací
Chystáte se prodat nemovitost?
Pomůžeme Vám!
Theleadway banner

Přihlášení k odběru

Nenechte si ujít nejnovější nabídky prodeje rodinných domů v Praze 4.