Pronájem bytu 2+kk, Opava - Město, Dolní náměstí, 94 m2 (ID: 1997302)

Dolní náměstí, Opava, Město

10 000 Kč
/za měsíc
+ provize RK 10000,-
Získejte výhodnou HYPOTÉKU Chci hypotéku

Parametry bytu

AdresaDolní náměstí, Opava, Město
ID928697
StavbaCihlová
Stav objektuVelmi dobrý
VybavenoNe
Lokalita objektuCentrum obce
VlastnictvíOsobní
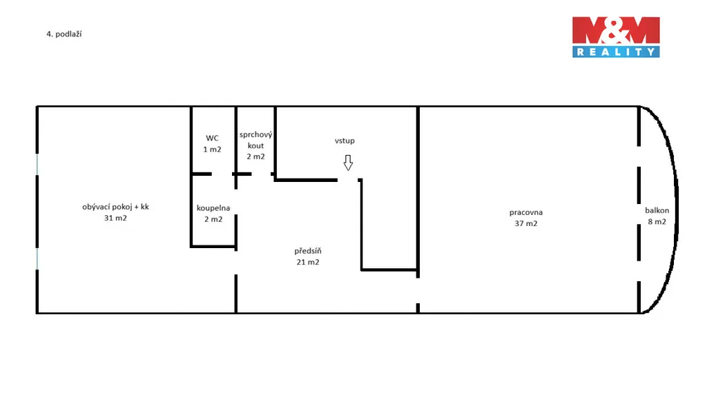
Užitná plocha94 m2
Balkon

Origo partneři v Opavě

Popis

Nabízíme k pronájmu prostorný byt o velikosti 94 m² v historickém centru Opavy, přímo na Dolním náměstí. Byt se nachází ve 4. NP udržované kulturní památky a je vhodný zejména jako firemní bydlení, zázemí pro zahraniční zaměstnance či management.

Dvě velké místnosti poskytují dostatek prostoru i pro více osob. V domě převažují kanceláře, proto je vyžadován klidný režim – ideální prostředí pro pracovníky hledající tiché bydlení v centru města. Veškerá občanská vybavenost je v pěší dostupnosti.

Nájemné: 10.000 Kč / měsíc
Zálohy na služby a energie: 7.000 Kč / měsíc
(voda, elektřina, plyn – topení, ohřev TUV, společné prostory)
Celkem: 17.000 Kč / měsíc
Kauce: 34.000 Kč
Odměna RK: 10000 Kč

Byt je ve velmi dobrém stavu a k dispozici ihned.
V případě zájmu nás kontaktujte pro více informací nebo prohlídku.

Makléř

Máte zájem o tento byt?

Tímto, v souladu s nařízením Evropského parlamentu a Rady (EU) 2016/679, v platném znění, prohlašuji, že mi je alespoň 16 let a uděluji tak svůj souhlas se zpracováním zadaných údajů (jméno, telefon, e-mail, ip adresa) společnosti B3 Technology, s.r.o., IČ: 07330600, se sídlem Novostavby 126/23, 435 11 Lom (správce dat), za účelem předání dotazu z tohoto formuláře Vámi vybranému inzerentovi a zpětného kontaktování mé osoby. Osobní údaje bude správce zpracovávat manuálně i automaticky přímo prostřednictvím svých zaměstnanců. Informace předané tímto formulářem budou uloženy v databázi správce maximálně po dobu 10 let. Odvolání souhlasu s uložením a zpracováním poskytnutých dat lze e-mailem na info@origo-reality.cz. V případě podezření na neoprávněné použití Vámi poskytnutých údajů máte právo předat podnět k šetření Úřadu pro ochranu osobních údajů. Více informací
Chystáte se prodat nemovitost?
Pomůžeme Vám!

Přihlášení k odběru

Nenechte si ujít nejnovější nabídky pronájmu bytů 2+kk v Opavě.