Prodej obchodního prostoru, Lanškroun - Žichlínské Předměstí, Dobrovského, 47 m2

Dobrovského, Lanškroun, Žichlínské Předměstí

2 500 000 Kč

včetně provize RK
Hypotéka od 11 173 Kč /měs. Chci hypotéku

Parametry nemovitosti

AdresaDobrovského, Lanškroun, Žichlínské Předměstí
ID11088
StavbaCihlová
Stav objektuDobrý
Lokalita objektuOkraj obce
VlastnictvíOsobní
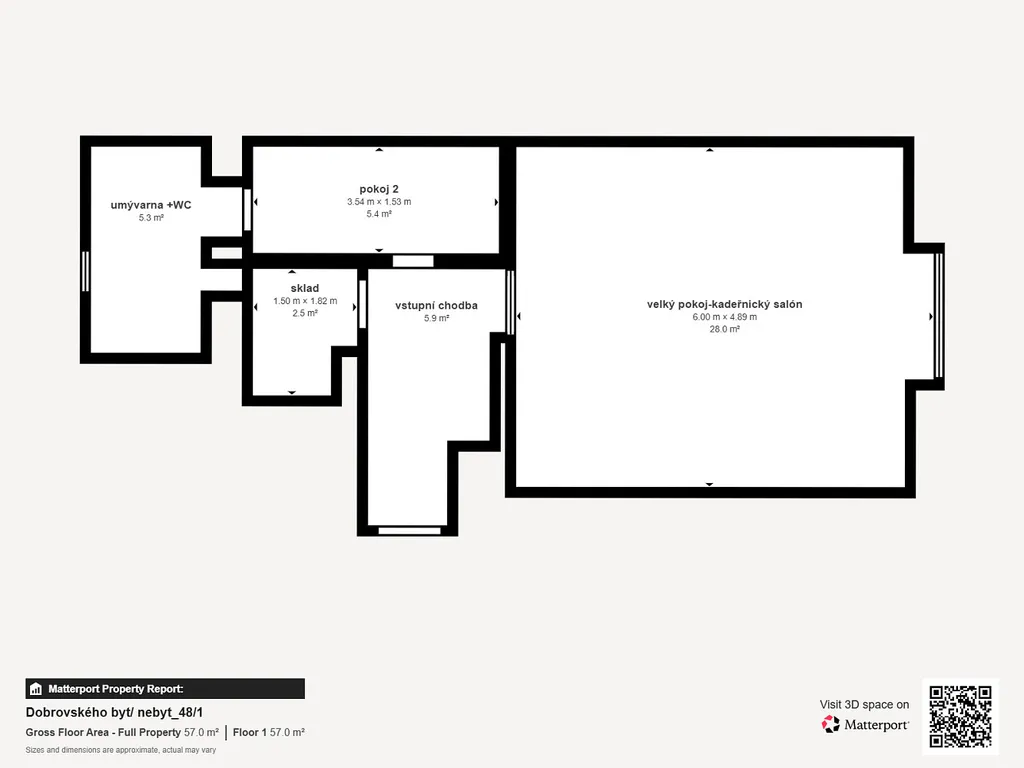
Užitná plocha47 m2
Třída energetické náročnostiG - Mimořádně nehospodárná

Origo partneři v Lanškrouně

Popis

Zavedená provozovna kadeřnictví s okny do hlavní ulice nebo byt v přízemí, k tomu možnost bydlet nad provozovnou – Lanškroun
Nabízíme k prodeji bytovou jednotku 1+kk o celkové výměře 47 m², se změnou užívaní schválenou v r. 2013, v současnosti je prostor využívaný jako kadeřnictví pro dvě pracovní místa. Provozovna disponuje okny přímo do hlavní ulice, což zajistí skvělou viditelnost vašeho podnikání.
Provozní část (28 m²), kadeřnictví vybavené a připravené k provozu. Ideální pro živnosti peče o tělo (kadeřnictví, holičství, kosmetika, pedikúra, manikúra, masáže) nebo kancelářské práce + zázemí (sociální zařízení, úklidová místnost, chodby)
Vytápění je řešeno vlastním plynovým kotlem. Parkování pro klienty je dostupné v blízkém okolí provozovny.
Strategická výhoda: V tomtéž domě nabízíme k prodeji rovněž byt, který prošel rekonstrukcí v r. 2019, dispozice 2+kk (63 m²). Koupě obou celků najednou představuje unikátní možnost vlastnit bydlení i firmu bez nákladů na dojíždění a s vlastním parkováním na dvoře.
Podmínky prodeje:
• Preferujeme prodej obou jednotek (byt nabídka č. 11088 a byt nabídka č. 11087) jako celku za zvýhodněnou cenu 5 900 000 Kč.
• V případě koupě samotného bytu 1+kk, provozovny kadeřnictví, si prodávající vyhrazuje právo určit konečná pravidla prodeje a vybrat zájemce, jehož podnikatelský záměr bude v souladu s klidným chodem bytového domu.
• Cena za prostory využívané jako zavedené kadeřnictví (včetně částečného vybavení): 2 500 000 Kč.
Bytový dům se nachází v širším centru Lanškrouna s výbornou dostupností všeho potřebného. Objekt je napojen na obecní vodovod i kanalizaci. Společenství vlastníků funguje na bázi sousedské dohody, což znamená velmi nízké fixní náklady (neplatíte do fondu oprav žádné vysoké paušály).
S financováním kupní ceny Vám případně poradíme i pomůžeme
Těším se na prohlídky se všemi zájemci!

Makléř

Máte zájem o tuto nemovistost?

Tímto, v souladu s nařízením Evropského parlamentu a Rady (EU) 2016/679, v platném znění, prohlašuji, že mi je alespoň 16 let a uděluji tak svůj souhlas se zpracováním zadaných údajů (jméno, telefon, e-mail, ip adresa) společnosti B3 Technology, s.r.o., IČ: 07330600, se sídlem Novostavby 126/23, 435 11 Lom (správce dat), za účelem předání dotazu z tohoto formuláře Vámi vybranému inzerentovi a zpětného kontaktování mé osoby. Osobní údaje bude správce zpracovávat manuálně i automaticky přímo prostřednictvím svých zaměstnanců. Informace předané tímto formulářem budou uloženy v databázi správce maximálně po dobu 10 let. Odvolání souhlasu s uložením a zpracováním poskytnutých dat lze e-mailem na info@origo-reality.cz. V případě podezření na neoprávněné použití Vámi poskytnutých údajů máte právo předat podnět k šetření Úřadu pro ochranu osobních údajů. Více informací
Chystáte se prodat nemovitost?
Pomůžeme Vám!

Přihlášení k odběru

Nenechte si ujít nejnovější nabídky prodeje obchodních prostor v Lanškrouně.