Prodej rodinného domu, Samopše, 166 m2

Samopše

Cena na vyžádání
/za nemovitost
Získejte výhodnou HYPOTÉKU Chci hypotéku

Parametry domu

AdresaSamopše
IDN116858
StavbaCihlová
Stav objektuVelmi dobrý
VybavenoAno
Druh objektuRohový
Lokalita objektuKlidná část obce
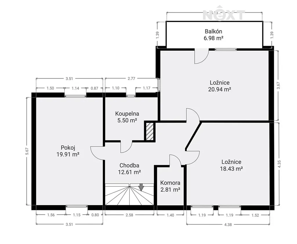
Užitná plocha166 m2
Zastavěná plocha104 m2
Podlahová plocha173 m2
Plocha pozemku567 m2
Třída energetické náročnostiG - Mimořádně nehospodárná
Elektřina230V, 400V
OdpadJímka
TopeníLokální elektrické, Ústřední tuhá paliva
KomunikaceZpevněná
DopravaVlak, Silnice, Autobus
VodaStudna
Topné tělesoRadiátory, Přímotop, Krbová kamna
Zdroj topeníPřímotop, Krbová kamna, Ústřední dálkové
Zdroj teplé vodyBojler - elektro
Bezbarierový přístup
Parkování

Origo partneři v Samopších

Pojištění a finance

Popis

Nabízíme k prodeji rodinný dům o dispozici 5+kk v obci Samopše přímo u řeky Sázavy, který kombinuje klid venkova s dostupností města.
Dům byl kolaudován v roce 2007, je zděné konstrukce a v roce 2015 prošel kompletním dokončením. Má dvě nadzemní podlaží a celkovou užitnou plochu 166 m². Nabízí více než dost prostoru i pro větší rodinu, případně pro všechny vaše plány, které zatím čekají na „jednou“.
Technikálie: zdivo Porotherm, dřevěná euro okna, omítka zateplená, krytina je taška pálená, kvalitní keramické dlažby a obklady, dveře z masivu, Wi‑Fi Vlašimnet, vytápění krbem a výměníkem a pro zmrzliny jsou v každém pokoji záložní elektrické přímotopy, odpad je sveden do jímky, voda je čerpána z vlastního 23 m vrtu.
Dominantou domu je světlý obývací pokoj propojený s kuchyní, která je vybavena moderními spotřebiči a nabízí dostatek úložného prostoru.
Dispozice 5+kk doplňují dvě koupelny a prakticky řešené úložné prostory, takže každá věc má své místo – a pokud ne, pořád je kam ji dát.
Dům stojí na obdélníkovém, ze tří stran oploceném pozemku o celkové výměře 567 m², z čehož pečlivě udržovaná okrasná zahrada tvoří 463 m². Ta nabízí dostatek prostoru pro relaxaci, dětské hry, zahradničení nebo jen pro nicnedělání, které je zde překvapivě návykové. Využít k tomu můžete rozlehlou terasu s výhledem na řeku. A pokud bude hlad, tak lze i něco ugrilovat v kamenném grilu.
Parkování je zajištěno pro dvě auta přímo na pozemku a dostanete se sem po zpevněné cestě.
Velkou předností je také samotná lokalita. Dům se nachází v klidné části obce v blízkosti řeky Sázavy, která nabízí široké možnosti pro volnočasové aktivity – od procházek přes cyklovýlety až po vodácké zážitky. V docházkové vzdálenosti (do cca 1,5 km) najdete bistro U Libora a vodácký kemp U Schiflera, případně si zajedete 10 min. vlakem do města Sázava, takže vaření může být klidně jen vaše hobby, ne povinnost.
Veškerou širší občanskou vybavenost pak nabízí nedaleká města Sázava a Uhlířské Janovice. Dopravní dostupnost je velmi dobrá, a to jak autem, tak vlakem či autobusem, s rozumným dojezdem do Prahy.
Tato nemovitost představuje ideální kombinaci prostoru, klidu a dostupnosti – ať už hledáte plnohodnotné rodinné bydlení, nebo místo, kam budete rádi utíkat z města.
Tak zavolejte a domluvíme prohlídku.
Pouze u nás vám zajistíme moderní financování až na 30 let, bez ohledu na věk a prokazování příjmů, či nutnosti předkládat daňové přiznání (u podnikatelů). Zeptejte se nás a bydlete chytře!
PENB zatím není k dispozici, proto uvádíme "G". Pro komunikaci uvádějte evidenční číslo zakázky N116858.

Makléř

Máte zájem o tento dům?

Tímto, v souladu s nařízením Evropského parlamentu a Rady (EU) 2016/679, v platném znění, prohlašuji, že mi je alespoň 16 let a uděluji tak svůj souhlas se zpracováním zadaných údajů (jméno, telefon, e-mail, ip adresa) společnosti B3 Technology, s.r.o., IČ: 07330600, se sídlem Novostavby 126/23, 435 11 Lom (správce dat), za účelem předání dotazu z tohoto formuláře Vámi vybranému inzerentovi a zpětného kontaktování mé osoby. Osobní údaje bude správce zpracovávat manuálně i automaticky přímo prostřednictvím svých zaměstnanců. Informace předané tímto formulářem budou uloženy v databázi správce maximálně po dobu 10 let. Odvolání souhlasu s uložením a zpracováním poskytnutých dat lze e-mailem na info@origo-reality.cz. V případě podezření na neoprávněné použití Vámi poskytnutých údajů máte právo předat podnět k šetření Úřadu pro ochranu osobních údajů. Více informací
Chystáte se prodat nemovitost?
Pomůžeme Vám!
Theleadway banner

Přihlášení k odběru

Nenechte si ujít nejnovější nabídky prodeje rodinných domů v Samopších.