Prodej rodinného domu, Petřvald, 130 m2

Petřvald

Cena na vyžádání
/za nemovitost
cena u makléře
Získejte výhodnou HYPOTÉKU Chci hypotéku

Parametry domu

AdresaPetřvald
ID0174
StavbaDřevěná
Stav objektuNovostavba
VybavenoČástečně
Typ objektuPatrový
Druh objektuSamostatný
Lokalita objektuKlidná část obce
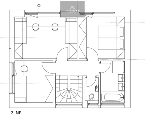
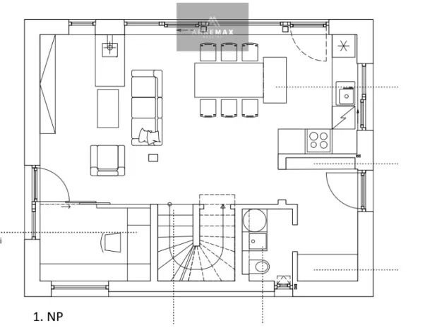
Užitná plocha130 m2
Zastavěná plocha100 m2
Plocha pozemku1084 m2
Plocha zahrady984 m2
Třída energetické náročnostiB - Velmi úsporná
Ukazatel energetické náročnosti79 kWh/m2 za rok
Elektřina230V, 400V
OdpadVeřejná kanalizace
KomunikaceZpevněná, Štěrková
TelekomunikaceInternet
DopravaDálnice, Silnice, MHD, Autobus
VodaVodovod, Retenční nádrž na dešt’ovou vodu
Bezbarierový přístup
Převod do OV
Parkování
Nízkoenergetický

Origo partneři v Petřvaldě

Pojištění a finance

Popis

Nabízíme k prodeji soubor dvou energeticky velmi úsporných patrových dřevostaveb v Petřvaldu u Nového Jičína, v dojezdové vzdálenosti od centra Ostravy cca 20 min. Jedna ve tvaru obdélníku s pultovou střechou, kde přednostem určitě patří logické vnitřní uspořádání a dostatek úložných prostor vše na necelých 100 m² užitné plochy, tak aby byl zachován prostor pro venkovní využití zahrady. Druhý menší objekt o půdorysu cca 30 m2 může tvoří samostatný oddělený prostor s variabilitou využití a uspořádání, nicméně v obdobném vysokém standardu vyhotovení.

Nízkoenergetickému a úspornému provozu je uzpůsobený celý projekt domu od základní koncepce po skladbu obvodových stěn.

Koupelna
navržena s důrazem na kvalitu a eleganci. Velkoformátové značkové obklady a dlažby dodávají prostorám moderní vzhled – na podlaze ve formátu 60 x 60 cm, na stěnách 120 x 60 cm. Sanitární keramika od firmy Sapho zaručuje prvotřídní komfort, zatímco baterie Grohe přinášejí spolehlivost a precizní design. Každý detail je pečlivě vybrán tak, aby koupelna splňovala nejvyšší standardy kvality a pohodlí.

Fasáda
Provětrávaná fasáda ze severského modřínu zajišťuje, že nedochází k problémům s vlhkostí a přispívá k dlouhodobé životnosti stavby. Toto perfektně zapadá do rázu okolí. Části fasády doplňuje také fasádní omítka, která dotváří moderní vzhled domu. Kombinace těchto materiálů zajišťuje nejen atraktivní design, ale i funkčnost.

Okna
Velkoformátová dřevo/hliník okna s trojitým zasklením

Tepelné čerpadlo, rekuperace, klimatizace
Dům je vybaven tepelným čerpadlem vzduch/voda od firmy LG, které zajistí nízkoenergetickou náročnost provozu. Díky tomuto modernímu systému získáte ekologický a úsporný způsob vytápění celého domu. Komfort podlahového vytápění, které je rozvedeno v celém domě, poskytuje rovnoměrné a příjemné teplo. V koupelně je navíc umístěn topný žebřík s s elektrickou topnou vložku, což umožňuje kombinované vytápění. Tím je zajištěn maximální komfort a příjemná teplota i v chladnějších měsících, aniž by bylo nutné dělat kompromisy.

Terasy
Navržené terasy jsou velkorysým prodloužením obytného prostoru směrem do zahrady.


Oba objekty jsou napojeny na veřejnou splaškovou a dešťovou kanalizaci, síť elektro, optický internet.

Makléř

Máte zájem o tento dům?

Tímto, v souladu s nařízením Evropského parlamentu a Rady (EU) 2016/679, v platném znění, prohlašuji, že mi je alespoň 16 let a uděluji tak svůj souhlas se zpracováním zadaných údajů (jméno, telefon, e-mail, ip adresa) společnosti B3 Technology, s.r.o., IČ: 07330600, se sídlem Novostavby 126/23, 435 11 Lom (správce dat), za účelem předání dotazu z tohoto formuláře Vámi vybranému inzerentovi a zpětného kontaktování mé osoby. Osobní údaje bude správce zpracovávat manuálně i automaticky přímo prostřednictvím svých zaměstnanců. Informace předané tímto formulářem budou uloženy v databázi správce maximálně po dobu 10 let. Odvolání souhlasu s uložením a zpracováním poskytnutých dat lze e-mailem na info@origo-reality.cz. V případě podezření na neoprávněné použití Vámi poskytnutých údajů máte právo předat podnět k šetření Úřadu pro ochranu osobních údajů. Více informací
Chystáte se prodat nemovitost?
Pomůžeme Vám!
Theleadway banner

Přihlášení k odběru

Nenechte si ujít nejnovější nabídky prodeje rodinných domů v Petřvaldě (okr. Nový Jičín).