Pronájem bytu 5+kk, Praha - Vinohrady, Mánesova, 120 m2 (ID: 1995388)

Mánesova, Praha 2

35 000 Kč
/za měsíc
+ poplatky 850,Kč/os. + elektřina, plyn.
Získejte výhodnou HYPOTÉKU Chci hypotéku

Parametry bytu

AdresaMánesova, Praha 2
ID976641
StavbaCihlová
Stav objektuPo rekonstrukci
Patro3. z 5
VybavenoNe
VlastnictvíOsobní
Užitná plocha120 m2
Podlahová plocha120 m2
Třída energetické náročnostiG - Mimořádně nehospodárná
Elektřina230V
PlynPlynovod
OdpadVeřejná kanalizace
TopeníÚstřední plynové
DopravaMHD
VodaVodovod
Výtah

Origo partneři v Praze 2

Stěhovací služby

Výkup a prodej starého nábytku

Popis

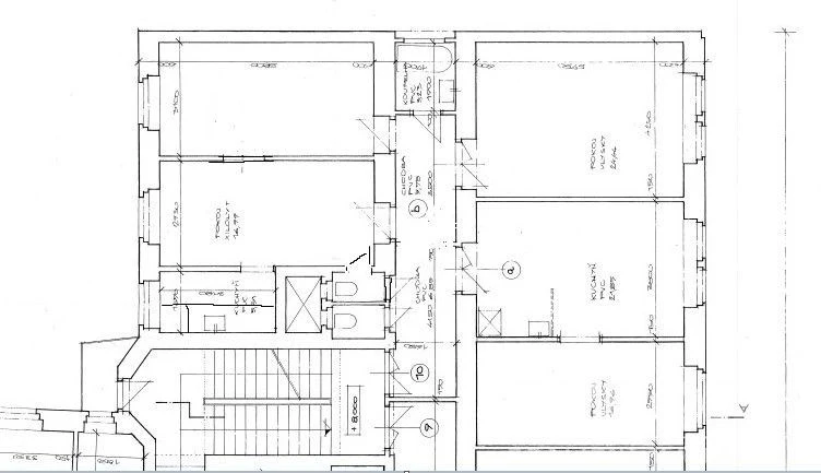
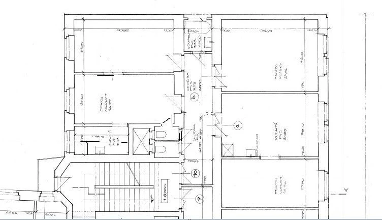
Nabízíme k pronájmu prostorný a světlý byt 5+kk, o celkové podlahové ploše 120m2, který prošel před pár lety rekonstrukcí. Byt se nachází ve 3 NP, s výtahem do mezipatra domu. Skládá se z velké vstupní předsíně (chodby), která je středem bytu, a z které se viz. přiložený půdorys vstupuje do obytných místností. Dispozice celkem pěti prostorných pokojů, z toho tři jsou samostatné a neprůchozí a dva jsou průchozí (obývací pokoj) a pokoj užívaný historicky jako velká jídelna, který je navázaný a přímo průchozí do menšího prostoru kuchyně. Kuchyň je vybavená menší kuchyňskou linkou (kombinovaný sporák, plynová varná deska, místo pro případnou myčku nádobí. Koupelna s vanou, místem pro pračku a vlastním plynovým etážovým kotlem, dále samostatné WC a komora. Podlahy jsou parkety, dřevo a pvc. Lokalita pražských Vinohrad nabízí perfektní bydlení s s kompletní občanskou vybaveností ( v blízkosti tramvajová zastávka a pěší chůzí dostupné metro Náměstí míru), nedaleko vstupu do Riegrových sadů. Prohlídky možné po domluvě s makléřem. Byt je volný k nastěhování ihned. Z důvodu absence PENB uvádíme energetickou třídu G, údaj není relevantní.

Makléř

Máte zájem o tento byt?

Tímto, v souladu s nařízením Evropského parlamentu a Rady (EU) 2016/679, v platném znění, prohlašuji, že mi je alespoň 16 let a uděluji tak svůj souhlas se zpracováním zadaných údajů (jméno, telefon, e-mail, ip adresa) společnosti B3 Technology, s.r.o., IČ: 07330600, se sídlem Novostavby 126/23, 435 11 Lom (správce dat), za účelem předání dotazu z tohoto formuláře Vámi vybranému inzerentovi a zpětného kontaktování mé osoby. Osobní údaje bude správce zpracovávat manuálně i automaticky přímo prostřednictvím svých zaměstnanců. Informace předané tímto formulářem budou uloženy v databázi správce maximálně po dobu 10 let. Odvolání souhlasu s uložením a zpracováním poskytnutých dat lze e-mailem na info@origo-reality.cz. V případě podezření na neoprávněné použití Vámi poskytnutých údajů máte právo předat podnět k šetření Úřadu pro ochranu osobních údajů. Více informací
Chystáte se prodat nemovitost?
Pomůžeme Vám!