Pronájem bytu 2+kk, Praha - Pitkovice, Žampiónová, 59 m2

Žampiónová, Praha 10 - Pitkovice

25 000 Kč
/za měsíc
+ zálohy na služby 6.270 Kč (vč. vytápění a teplé vody) + přehlášení el. energie na nájemce 1.000
Získejte výhodnou HYPOTÉKU Chci hypotéku

Parametry bytu

AdresaŽampiónová, Praha 10 - Pitkovice
ID46
StavbaCihlová
Stav objektuNovostavba
VybavenoNe
VlastnictvíOsobní
Užitná plocha59 m2
Třída energetické náročnostiD - Méně úsporná
Ukazatel energetické náročnosti117 kWh/m2 za rok

Origo partneři v Praze 10

Stěhovací služby

Výkup a prodej starého nábytku

Popis

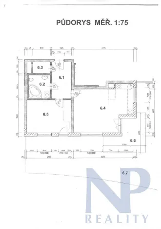
Nabízíme Vám k pronájmu pěkný byt 2+kk 59 m² s jihozápadní terasou a předzahrádkou o výměře 95 m². Byt se nachází v udržované novostavbě na kraji Pitkovického parku v uzavřeném oploceném areálu několika samostatných residencí s vlastním dětským hřištěm . Terasa s předzahrádkou ve tvaru L obepíná byt a je oplocena a porostlá listnatým živým plotem. Předzahrádka poskytuje bytu nadstandartní uživatelské možnosti a využití volného času. Na terase je nainstalovaná pergola a pod ní je stůl s židlemi. Byt je tvořen předsíní 7,9 m², obývacím pokojem s kuchyňským koutem 27 m², ložnicí 16,3 m², koupelnou s vanou a wc 5,4 m² a komorou 2,2 m². Byt je vybavený kuchyňskou linkou s horkovzdušnou troubou a varnou deskou, myčkou, digestoří a ledničkou s mrazákem, dále dvěma šatními skříněmi na míru v ložnici a předsíni. Na podlahách je položená plovoucí podlaha a dlažba. K bytu náleží garáž umístěná v suterénu domu. Před domem je možné parkování bez problému. Vytápění a ohřev vody je ústřední dálkové. Byt je k nastěhování ihned. Nájemné 25.000 Kč + záloha služby (vytápění, teplá a studená voda, odvoz odpadů) 6.270 Kč + převod odběru el. energie 1.000 Kč, kauce 25.000 Kč, provize 25.000 Kč + DPH. MHD 50 m od domu.

Makléř

Máte zájem o tento byt?

Tímto, v souladu s nařízením Evropského parlamentu a Rady (EU) 2016/679, v platném znění, prohlašuji, že mi je alespoň 16 let a uděluji tak svůj souhlas se zpracováním zadaných údajů (jméno, telefon, e-mail, ip adresa) společnosti B3 Technology, s.r.o., IČ: 07330600, se sídlem Novostavby 126/23, 435 11 Lom (správce dat), za účelem předání dotazu z tohoto formuláře Vámi vybranému inzerentovi a zpětného kontaktování mé osoby. Osobní údaje bude správce zpracovávat manuálně i automaticky přímo prostřednictvím svých zaměstnanců. Informace předané tímto formulářem budou uloženy v databázi správce maximálně po dobu 10 let. Odvolání souhlasu s uložením a zpracováním poskytnutých dat lze e-mailem na info@origo-reality.cz. V případě podezření na neoprávněné použití Vámi poskytnutých údajů máte právo předat podnět k šetření Úřadu pro ochranu osobních údajů. Více informací
Chystáte se prodat nemovitost?
Pomůžeme Vám!