Pronájem bytu 3+kk, Praha - Košíře, Pod školou, 89 m2

Pod Školou, Praha, Košíře

33 900 Kč
/za měsíc
Získejte výhodnou HYPOTÉKU Chci hypotéku

Parametry bytu

Náklady na bydlení+ zálohy na služby dle počtu osob
AdresaPod Školou, Praha, Košíře
StavbaSkeletová
Stav objektuVelmi dobrý
Patro2. z 4
Lokalita objektuRušná část obce
VlastnictvíOsobní
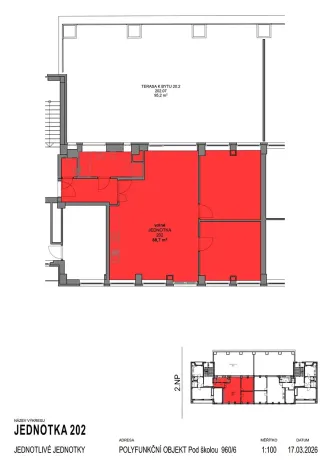
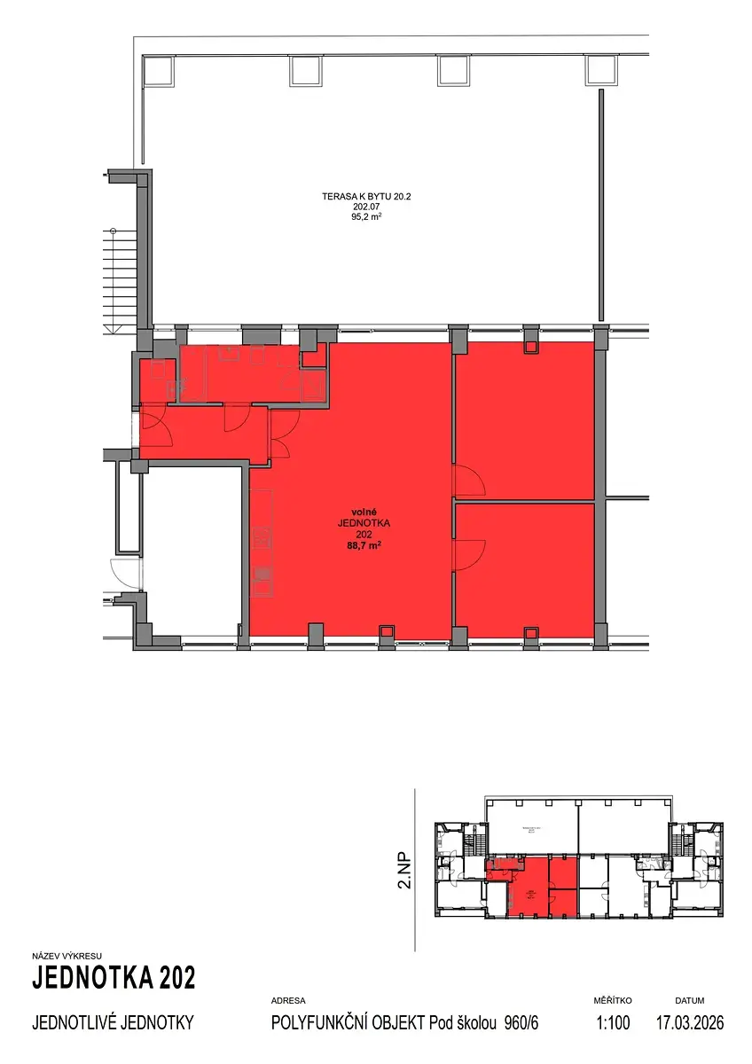
Užitná plocha89 m2
Podlahová plocha184 m2
Elektřina230V
OdpadVeřejná kanalizace
KomunikaceDlážděná
TelekomunikaceTelefon, Internet, Kabelové rozvody
DopravaSilnice, MHD
VodaVodovod
Zdroj topeníÚstřední dálkové
Zdroj teplé vodyCentrální dálkový ohřev
Sklep
Terasa
Výtah
Bezbarierový přístup

Origo partneři v Praze 5

Stěhovací služby

Výkup a prodej starého nábytku

Pojištění a finance

Popis

Společnost Mikrotechna s.r.o. nabízí k pronájmu byt o velikosti 88,7 m2 s terasou (95,2 m2) v 2. NP objektu skeletového bytového domu s komerčními prostory, která je po rekonstrukci ve velmi dobrém technickém stavu. K bytu náleží sklep o velkosti 11,85 m2. Dům se nachází v Praze 5 - Košířích, kde se prolíná bytová zástavba s komerčními prostory. Lokalita nabízí výbornou dopravní obslužnost – jak pro osobní dopravu, tak i MHD s přímým spojením na metro Anděl. K nastěhování od 1.7.2026, případně po domluvě se stávajícím nájemcem ihned.

Makléř

Máte zájem o tento byt?

Tímto, v souladu s nařízením Evropského parlamentu a Rady (EU) 2016/679, v platném znění, prohlašuji, že mi je alespoň 16 let a uděluji tak svůj souhlas se zpracováním zadaných údajů (jméno, telefon, e-mail, ip adresa) společnosti B3 Technology, s.r.o., IČ: 07330600, se sídlem Novostavby 126/23, 435 11 Lom (správce dat), za účelem předání dotazu z tohoto formuláře Vámi vybranému inzerentovi a zpětného kontaktování mé osoby. Osobní údaje bude správce zpracovávat manuálně i automaticky přímo prostřednictvím svých zaměstnanců. Informace předané tímto formulářem budou uloženy v databázi správce maximálně po dobu 10 let. Odvolání souhlasu s uložením a zpracováním poskytnutých dat lze e-mailem na info@origo-reality.cz. V případě podezření na neoprávněné použití Vámi poskytnutých údajů máte právo předat podnět k šetření Úřadu pro ochranu osobních údajů. Více informací
Chystáte se prodat nemovitost?
Pomůžeme Vám!
Theleadway banner