Pronájem kanceláře, Pardubice, Chrudimská, 149 m2

Chrudimská, Pardubice, Zelené Předměstí

41 000 Kč
/za měsíc
+ DPH, bez DPH, bez poplatků, + provize RK, včetně právního servisu
Získejte výhodnou HYPOTÉKU Chci hypotéku

Parametry nemovitosti

AdresaChrudimská, Pardubice, Zelené Předměstí
ID00259
StavbaCihlová
Stav objektuVelmi dobrý
VybavenoNe
Lokalita objektuKlidná část obce
Užitná plocha149 m2
Třída energetické náročnostiG - Mimořádně nehospodárná
Elektřina230V
OdpadVeřejná kanalizace
KomunikaceAsfaltová
DopravaSilnice, MHD, Autobus
VodaVodovod
Topné tělesoPodlahové vytápění
Zdroj topeníElektrokotel
Zdroj teplé vodyBojler - elektro
Výtah
Parkování

Origo partneři v Pardubicích

Pojištění a finance

Popis

Hledáte prostor pro podnikání na dobře viditelném místě s výbornou dostupností, vlastním zázemím a možností parkování? Nabízím k pronájmu komerční prostor na frekventované ulici Chrudimská v Pardubicích, který je vhodný jako sídlo firmy. Nemovitost nabízí kombinaci obchodních prostor se vstupem z ulice, kancelářského zázemí, vedlejších budov a uzavřeného dvora se zahrádkou, což vytváří variabilní celek pro různé typy podnikání.

Ulice Chrudimská patří mezi hlavní dopravní tahy v Pardubicích a zajišťuje velmi dobrou viditelnost i dostupnost z centra města i z okolních částí. Přímo před domem se nachází autobusová zastávka, takže objekt je dobře dostupný nejen autem, ale i městskou hromadnou dopravou. Díky přímému vjezdu z ulice na pozemek a možnosti parkování ve dvoře je zajištěn komfort jak pro zaměstnance, tak pro zákazníky či dodavatele.

V přední části pozemku stojí hlavní dvoupodlažní budova přístupná z ulice. Za ní se nachází vydlážděný dvůr s vjezdovou branou a dále dvě samostatné jednopodlažní stavby. Úplně v zadní části pozemku je pak menší zahrada se vzrostlou zelení, která může sloužit jako odpočinková zóna pro zaměstnance i klienty. Celý areál je uzavřený a působí kompaktně, což umožňuje bezpečné a přehledné využívání všech prostor.

Hlavní budova orientovaná do ulice je koncipována jako obchodní či prezentační prostor s administrativním zázemím. V přízemí se nachází prodejna či showroom přístupný přímo z chodníku, s výlohou směrem do ulice, která zajišťuje dobrou viditelnost pro kolemjdoucí i projíždějící auta. Za prodejní částí je situováno zázemí tvořené kuchyňkou s pracovní linkou, varnou deskou, troubou, myčkou a dostatkem úložných skříněk, které mohou sloužit jako zázemí pro personál. Na tuto část navazuje koupelna se sprchovým koutem, umyvadlem a toaletou, využitelná jak pro zaměstnance, tak pro klienty.

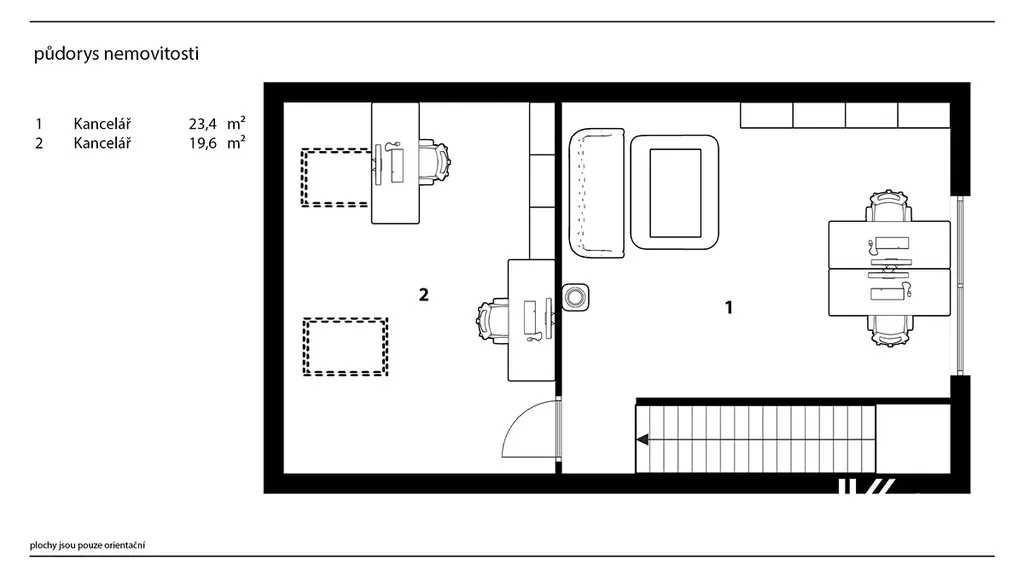
Hlavní budova má také druhý, zadní vstup ze dvora, vhodný zejména pro zaměstnance pro vstup rovnou do zázemí či horního patra. Po schodišti se dostanete do druhého podlaží, kde se nacházejí dvě samostatné místnosti vhodné jako kanceláře, jednací místnosti nebo další obchodní prostory. Dispozice patra umožňuje oddělené fungování jednotlivých částí firmy, případně kombinaci administrativy a obchodního provozu. Díky umístění nad prodejnou působí patro klidněji a je vhodné pro práci, která vyžaduje soustředění.


Za hlavní budovou se nachází vydlážděný dvůr, který umožňuje pohodlný příjezd autem až do areálu a parkování několika vozidel. Dvůr zároveň propojuje další dvě stavby umístěné v zadní části pozemku, které rozšiřují možnosti využití celého objektu.

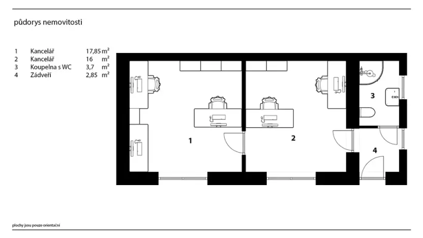
První z těchto staveb je jednopodlažní budova rozdělená na dvě průchozí místnosti a koupelnu se sprchou, umyvadlem a toaletou. Prostory mohou sloužit jako další kanceláře, sklad, dílna, servisní zázemí nebo menší provozovna. Díky oddělení od hlavní budovy je možné tuto část využívat samostatně, například pro jiný provoz nebo oddělené pracoviště.

Druhou stavbu ve dvoře tvoří samostatná vydlážděná místnost, vhodná jako dílna, sklad, montážní místnost nebo jednoduchá výroba, případně jako technické zázemí firmy. Výhodou je samostatné umístění ve dvoře, které umožňuje provoz bez rušení hlavní části objektu.

Úplně v zadní části pozemku se nachází menší zahrada se vzrostlými stromy a zpevněnou plochou vhodnou pro posezení. Tento prostor může sloužit jako klidová zóna pro zaměstnance, místo pro krátký odpočinek během pracovního dne nebo jako doplňkové zázemí firmy. Přítomnost zeleně dodává celému areálu příjemnější atmosféru, což není u komerčních objektů samozřejmostí.

Objekt je zateplený, má plastová okna a je napojený na veřejný vodovod i kanalizaci, vytápění zajišťuje elektrokotel. Topení je rozvedeno podlahově a ovládáno termostaty v jednotlivých místnostech. Stav nemovitosti umožňuje okamžité užívání, zároveň ale nabízí prostor pro úpravy podle konkrétních potřeb nájemce. Díky kombinaci obchodního prostoru do ulice, kanceláří, vedlejších budov a uzavřeného dvora je objekt vhodný pro široké spektrum využití – od showroomu a prodejny přes sídlo firmy až po servis, sklad nebo jednoduchou výrobu.

Samozřejmostí je možnost umístit do nemovitosti sídlo společnosti a využít fasádu domu či vjezdovou bránu k venkovnímu označení firmy, které je díky poloze na frekventované ulici velmi dobře viditelné a může sloužit i jako přirozená reklama.

Tato nemovitost je ideální pro firmu, která hledá viditelné místo na hlavním tahu, potřebuje vlastní zázemí a ocení možnost mít obchod, kanceláře i provoz na jednom pozemku. Pokud hledáte prostor, který se dokáže přizpůsobit vašemu podnikání a zároveň nabídne dobrou dostupnost i reprezentativní umístění, ozvěte se a domluvte si prohlídku.

Makléř

Máte zájem o tuto nemovistost?

Tímto, v souladu s nařízením Evropského parlamentu a Rady (EU) 2016/679, v platném znění, prohlašuji, že mi je alespoň 16 let a uděluji tak svůj souhlas se zpracováním zadaných údajů (jméno, telefon, e-mail, ip adresa) společnosti B3 Technology, s.r.o., IČ: 07330600, se sídlem Novostavby 126/23, 435 11 Lom (správce dat), za účelem předání dotazu z tohoto formuláře Vámi vybranému inzerentovi a zpětného kontaktování mé osoby. Osobní údaje bude správce zpracovávat manuálně i automaticky přímo prostřednictvím svých zaměstnanců. Informace předané tímto formulářem budou uloženy v databázi správce maximálně po dobu 10 let. Odvolání souhlasu s uložením a zpracováním poskytnutých dat lze e-mailem na info@origo-reality.cz. V případě podezření na neoprávněné použití Vámi poskytnutých údajů máte právo předat podnět k šetření Úřadu pro ochranu osobních údajů. Více informací
Chystáte se prodat nemovitost?
Pomůžeme Vám!
Theleadway banner

Přihlášení k odběru

Nenechte si ujít nejnovější nabídky pronájmu kanceláří v Pardubicích.