Prodej pozemku pro bydlení, Praha, Jeřická, 2200 m2

Jeřická, Praha 20

19 800 000 Kč
/za nemovitost
Cena je konečná bez dalších poplatků.
Hypotéka od 88 494 Kč /měs. Chci hypotéku

Parametry pozemku

AdresaJeřická, Praha 20
ID976413
VlastnictvíOsobní
Plocha pozemku2200 m2
PlynPlynovod
OdpadVeřejná kanalizace
DopravaSilnice, MHD, Autobus
Bazén

Origo partneři v Praze

Stěhovací služby

Výkup a prodej starého nábytku

Pojištění a finance

Popis

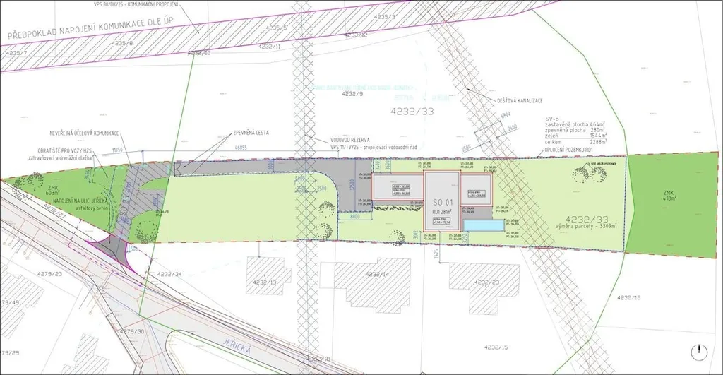
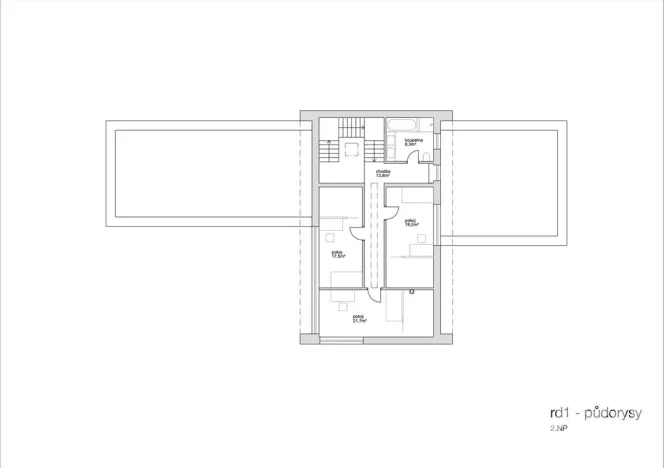
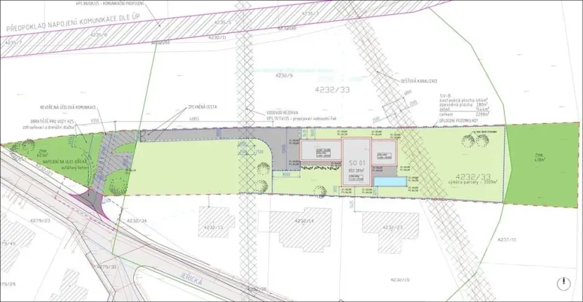
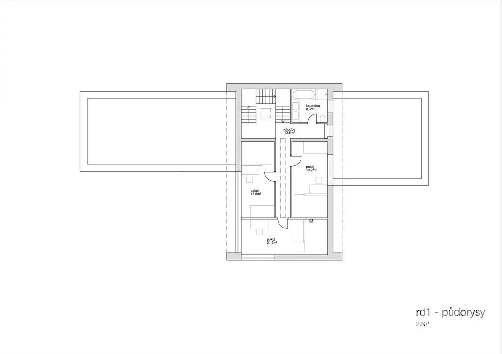
Exkluzivně nabízíme stavební pozemek o výměře 2200 m² s platným stavebním povolením na moderní vilu o užitné ploše 377 m², situovaný v klidné a příjemné části Horních Počernic.

Hlavní výhodou této nabídky je možnost okamžité realizace výstavby bez nutnosti zdlouhavého povolovacího procesu. Projekt vily počítá s vysokým standardem bydlení, včetně terasy s bazénem, rozlehlé zahrady, dvou garážových stání a venkovního parkování. Dispoziční řešení je orientační a lze jej upravit dle individuálních požadavků budoucího majitele.

Součástí prodeje je také spoluvlastnický podíl na pozemku po kterém bude zajištěna příjezdová cesta (328 m²), který je již zahrnut v celkové ceně.

Další přidanou hodnotou je možnost rozšíření o sousední pozemek o výměře 780 m², na který je rovněž vydáno stavební povolení na vilu. V případě koupě obou pozemků a souvisejícího podílu vznikne ucelený komplex (znázorněno na posledním obrázku) o celkové ploše 3 309 m², vhodný například pro multigenerační bydlení nebo kombinaci vlastního bydlení a investice více informací žádejte u makléře.

Horní Počernice patří mezi vyhledávané lokality díky výborné dostupnosti do centra Prahy a zároveň blízkosti přírody. V místě je kompletní občanská vybavenost včetně škol a školek, v krátké dojezdové vzdálenosti se nachází nákupní centra na Černém Mostě. Okolí nabízí také široké možnosti sportovního a volnočasového využití.

Pro více informací nebo domluvení prohlídky kontaktujte makléře.

Makléř

Máte zájem o tento pozemek?

Tímto, v souladu s nařízením Evropského parlamentu a Rady (EU) 2016/679, v platném znění, prohlašuji, že mi je alespoň 16 let a uděluji tak svůj souhlas se zpracováním zadaných údajů (jméno, telefon, e-mail, ip adresa) společnosti B3 Technology, s.r.o., IČ: 07330600, se sídlem Novostavby 126/23, 435 11 Lom (správce dat), za účelem předání dotazu z tohoto formuláře Vámi vybranému inzerentovi a zpětného kontaktování mé osoby. Osobní údaje bude správce zpracovávat manuálně i automaticky přímo prostřednictvím svých zaměstnanců. Informace předané tímto formulářem budou uloženy v databázi správce maximálně po dobu 10 let. Odvolání souhlasu s uložením a zpracováním poskytnutých dat lze e-mailem na info@origo-reality.cz. V případě podezření na neoprávněné použití Vámi poskytnutých údajů máte právo předat podnět k šetření Úřadu pro ochranu osobních údajů. Více informací
Chystáte se prodat nemovitost?
Pomůžeme Vám!
Theleadway banner

Přihlášení k odběru

Nenechte si ujít nejnovější nabídky prodeje pozemků pro bydlení v Praze.