Prodej pozemku pro bydlení, Střelice, 904 m2 (ID: 1992466)

Střelice

2 481 570 Kč
/za nemovitost
V případě více zájemců rozhoduje nejvyšší nabídka., včetně provize, včetně právního servisu
Hypotéka od 11 091 Kč /měs. Chci hypotéku

Parametry pozemku

AdresaStřelice
ID03873
Plocha pozemku904 m2
KomunikaceAsfaltová
DopravaVlak, Silnice, Autobus

Origo partneři v Střelicích

Popis

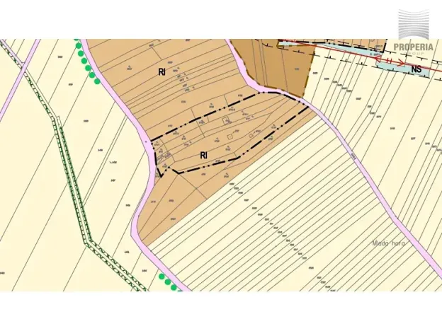
Hledáte ideální místo pro svůj nový projekt? Tento stavební pozemek, obdélníkového tvaru, o nadstadartní výměře 904 m2 se nachází na okraji obce Střelice u Brna.

Toto místo se pyšní jedinečným, téměř 360 stupňů širokým výhledem přes zalesněnou Bobravskou vrchovinu na jedné straně, a na druhé straně se vám pak otevře panorama západního okraje Brna se siluetou Hádů a okrajem Drahanské vrchoviny na obzoru.

Oceníte zde blízkost centra obce, kde najdete veškerou občanskou vybavenost (MŠ, ZŠ, ZUŠ, zdravotní středisko, lékárna, obchody, restaurace, koupaliště, dobré vlakové i autobusové spojení do Brna). Lokalita je klidným a oblíbeným místem pro rodinné vycházky, sportovce i pejskaře.

Pozemek je určen pro stavbu rekreačního objektu. Skvělá příležitost pro ty, kteří hledají únik od ruchu velkoměsta, ale přitom je Brno opravdu na dosah.

Stavební místo je třeba napojit na elektřinu (cca vzdálenou 180 metrů), vybudovat vrt a odpady formou septiku či ČOV. To vám však umožňuje naplánovat všechny detaily vašeho nového domova podle vašich představ.

Výhodou je také téměř rovinatý terén, který zjednodušuje plánování i realizaci stavby. K pozemku vede asfaltová silnice, a až poslední metry ujedete po udržované zpevněné cestě, což zajišťuje snadný přístup.

* V současné době majitelé přes pozemek přijíždějí ke své nemovitosti, po prodeji však budou využívat jinou příjezdovou cestu.

Jedná se o parcelu č. 6667/1.

Nezmeškejte tuto jedinečnou příležitost a vytvořte si svůj vlastní ráj v srdci přírody, kde budete moci relaxovat a užívat si krásy okolní krajiny.

Makléř

Máte zájem o tento pozemek?

Tímto, v souladu s nařízením Evropského parlamentu a Rady (EU) 2016/679, v platném znění, prohlašuji, že mi je alespoň 16 let a uděluji tak svůj souhlas se zpracováním zadaných údajů (jméno, telefon, e-mail, ip adresa) společnosti B3 Technology, s.r.o., IČ: 07330600, se sídlem Novostavby 126/23, 435 11 Lom (správce dat), za účelem předání dotazu z tohoto formuláře Vámi vybranému inzerentovi a zpětného kontaktování mé osoby. Osobní údaje bude správce zpracovávat manuálně i automaticky přímo prostřednictvím svých zaměstnanců. Informace předané tímto formulářem budou uloženy v databázi správce maximálně po dobu 10 let. Odvolání souhlasu s uložením a zpracováním poskytnutých dat lze e-mailem na info@origo-reality.cz. V případě podezření na neoprávněné použití Vámi poskytnutých údajů máte právo předat podnět k šetření Úřadu pro ochranu osobních údajů. Více informací
Chystáte se prodat nemovitost?
Pomůžeme Vám!

Přihlášení k odběru

Nenechte si ujít nejnovější nabídky prodeje pozemků pro bydlení v Střelicích (okr. Brno-venkov).