Prodej bytu 1+kk, Město Albrechtice - Hynčice, 22 m2 (ID: 1992213)

Město Albrechtice, Hynčice

1 390 000 Kč
/za nemovitost
včetně provize, včetně právního servisu
Hypotéka od 6 212 Kč /měs. Chci hypotéku

Parametry bytu

AdresaMěsto Albrechtice, Hynčice
ID19162
StavbaCihlová
Stav objektuVelmi dobrý
Patro2. z 3
VybavenoČástečně
Lokalita objektuKlidná část obce
VlastnictvíOsobní
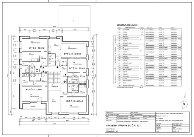
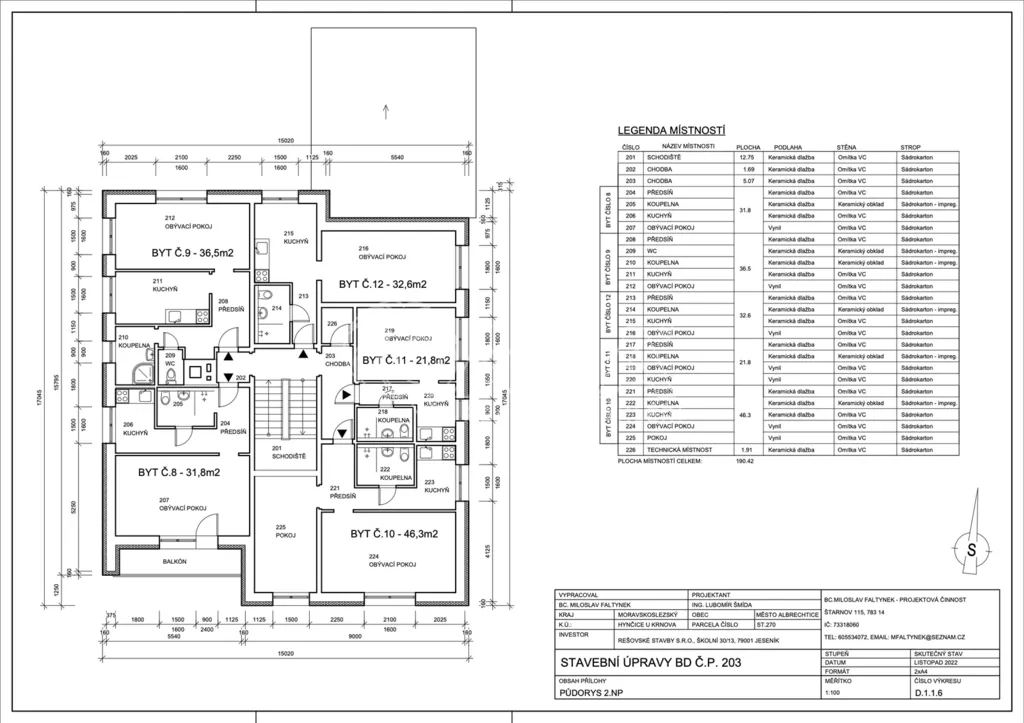
Užitná plocha22 m2
Podlahová plocha22 m2
Třída energetické náročnostiD - Méně úsporná
Ukazatel energetické náročnosti143 kWh/m2 za rok
Elektřina230V
OdpadČOV pro celý objekt
KomunikaceAsfaltová
TelekomunikaceTelefon, Internet, Kabelová televize
DopravaSilnice, Autobus
VodaVodovod

Origo partneři v Městu Albrechticích

Popis

Nabízíme k prodeji útulný a prakticky řešený byt 1+kk o výměře 22 m², který je součástí projektu investičních apartmánů v obci Hynčice u Města Albrechtic. Díky své velikosti představuje ideální startovací investici s nízkými vstupními i provozními náklady, případně skvělé zázemí pro rekreaci v horách.

V projektu je aktuálně k dispozici již jen 6 jednotek ve vysokém standardu.

Dům prošel kompletní rekonstrukcí – zateplení, nová fasáda, plastová okna i rozvody. Energetická náročnost budovy je ve třídě D. O úsporný provoz se stará tepelné čerpadlo a solární panely, což výrazně snižuje měsíční náklady – velká výhoda právě u menších investičních bytů.

Byt je řešen maximálně účelně, aby každý metr měl své využití. Součástí je nová kuchyňská linka v bílé barvě s chromovými úchyty, granitovým dřezem a černou baterií značky Cooke & Lewis. Vybavení doplňuje dvouplotýnková sklokeramická deska Amica.
Koupelna nabízí moderní sprchový kout, závěsné WC Geberit a umyvadlo se skříňkou. Design je laděn do současných trendů – antracitové obklady a dlažba v kombinaci se šedou laminátovou podlahou v obytné části.

Velkým benefitem projektu je wellness zóna přímo v domě, kterou mohou majitelé využívat – ideální pro krátkodobé pronájmy i vlastní relax.
K dispozici jsou také společné prostory: prádelna, kolárna/lyžárna a venkovní zastřešená terasa.

Možnost dokoupení parkovacího stání u domu za 80 000 Kč.

Lokalita Hynčice u Města Albrechtic nabízí klidné prostředí v srdci Jeseníků s dobrou dostupností do města i do vyhledávaných rekreačních oblastí. Díky kombinaci nízkých nákladů, atraktivní lokality a wellness zázemí je byt ideální jak pro vlastní využití, tak jako investice se zajímavým výnosem z pronájmu.

V případě zájmu o více informací nebo prohlídku mě neváhejte kontaktovat.

Makléř

Máte zájem o tento byt?

Tímto, v souladu s nařízením Evropského parlamentu a Rady (EU) 2016/679, v platném znění, prohlašuji, že mi je alespoň 16 let a uděluji tak svůj souhlas se zpracováním zadaných údajů (jméno, telefon, e-mail, ip adresa) společnosti B3 Technology, s.r.o., IČ: 07330600, se sídlem Novostavby 126/23, 435 11 Lom (správce dat), za účelem předání dotazu z tohoto formuláře Vámi vybranému inzerentovi a zpětného kontaktování mé osoby. Osobní údaje bude správce zpracovávat manuálně i automaticky přímo prostřednictvím svých zaměstnanců. Informace předané tímto formulářem budou uloženy v databázi správce maximálně po dobu 10 let. Odvolání souhlasu s uložením a zpracováním poskytnutých dat lze e-mailem na info@origo-reality.cz. V případě podezření na neoprávněné použití Vámi poskytnutých údajů máte právo předat podnět k šetření Úřadu pro ochranu osobních údajů. Více informací
Chystáte se prodat nemovitost?
Pomůžeme Vám!

Přihlášení k odběru

Nenechte si ujít nejnovější nabídky prodeje bytů 1+kk v Městu Albrechticích.