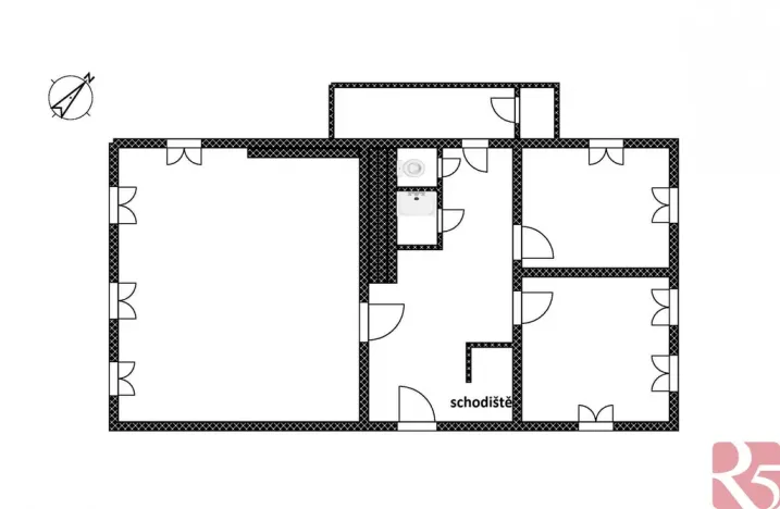
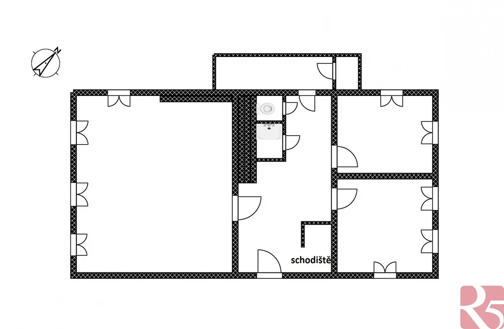
Prodej rodinného domu, Rokytnice nad Jizerou - Dolní Rokytnice, 155 m2 (ID: 1992166)

Dolní Rokytnice

6 290 000 Kč
/za nemovitost
Hypotéka od 28 112 Kč /měs. Chci hypotéku

Parametry domu

AdresaDolní Rokytnice
IDR519560
StavbaDřevěná
Stav objektuDobrý
Typ objektuPatrový
Druh objektuSamostatný
Užitná plocha155 m2
Zastavěná plocha136 m2
Podlahová plocha155 m2
Plocha pozemku867 m2
Plocha zahrady731 m2
Třída energetické náročnostiG - Mimořádně nehospodárná
Elektřina230V, 400V
OdpadVeřejná kanalizace
TopeníÚstřední plynové
KomunikaceAsfaltová
TelekomunikaceInternet
DopravaSilnice
VodaVodovod
Topné tělesoKrbová kamna
Zdroj topeníPlynový kotel, Krbová kamna
Zdroj teplé vodyPlynový kotel
Sklep
Bezbarierový přístup
Parkování

Origo partneři v Rokytnici nad Jizerou

Rekonstrukce

Úklidové služby

Popis

Jedinečná roubenka v srdci Krkonoš. Historický roubený dům z 19. století s pozemkem a parkovištěm, využitelný jako chata, chalupa či rodinný dům. Užitná plocha 155 m2 (6+kk).

Krásné místo s panoramatickou vyhlídkou na klidném místě, ale přesto 10 minut pěšky do centra (autobus, obchody, restaurace).
Široké horské louky a hluboký les hned u objektu, stejně jako několik turistických tras, které vás rychle dovedou jak na hřebeny Krkonoš, tak k peřejím řeky Jizery anebo do bučin Jizerských hor.

V zimě je už pouhým pohledem z okna na výběr několik špičkových ski areálů. V bezprostředním okolí se nachází jak horský areál Horní Domky Lysá hora, tak rodinný Studenov, na dosah jsou pak sjezdovky v Harrachově, na Pasekách, či v Jablonci nad Jizerou. V areálu na Lysé hoře se také nachází 2 540 metrů dlouhá červená sjezdovka, která si získala klasifikaci FIS.

Jde o historický dům bez dramatických zásahů do původní roubené konstrukce.

V přízemí velká společenská místnost 33m2 a dva pokoje, 11 a 13m2. V patře jsou pak tři obytné velké místnosti s dřevěnými stěnami. Dům je okamžitě obyvatelný. Napojený je na místní kanalizaci, vodovod a elektřinu. Vytápění moderním plynovým kondenzačním kotlem s dálkovým ovládáním.

Objekt je podsklepený, jeden sklep je přístupný ze zahrady, druhý z předsíně.

Velká slunná zahrada 730 m2 nabízí romantické posezení, protéká jí také malý potůček. Nabízí se dostavět venkovní posezení nebo otevřenou verandu.
U chaty jsou dvě místa na parkování.

Koupě této nemovitosti je skvělá investice, vzhledem ke strategickému umístění kousek od turistického centra a zároveň v oáze klidu.

Pro více informací a domluvení prohlídky kontaktujte makléře.

Makléř

Máte zájem o tento dům?

Tímto, v souladu s nařízením Evropského parlamentu a Rady (EU) 2016/679, v platném znění, prohlašuji, že mi je alespoň 16 let a uděluji tak svůj souhlas se zpracováním zadaných údajů (jméno, telefon, e-mail, ip adresa) společnosti B3 Technology, s.r.o., IČ: 07330600, se sídlem Novostavby 126/23, 435 11 Lom (správce dat), za účelem předání dotazu z tohoto formuláře Vámi vybranému inzerentovi a zpětného kontaktování mé osoby. Osobní údaje bude správce zpracovávat manuálně i automaticky přímo prostřednictvím svých zaměstnanců. Informace předané tímto formulářem budou uloženy v databázi správce maximálně po dobu 10 let. Odvolání souhlasu s uložením a zpracováním poskytnutých dat lze e-mailem na info@origo-reality.cz. V případě podezření na neoprávněné použití Vámi poskytnutých údajů máte právo předat podnět k šetření Úřadu pro ochranu osobních údajů. Více informací
Chystáte se prodat nemovitost?
Pomůžeme Vám!

Přihlášení k odběru

Nenechte si ujít nejnovější nabídky prodeje rodinných domů v Rokytnici nad Jizerou.