Pronájem obchodního prostoru, Chrudim, Soukenická, 45 m2 (ID: 1991552)

Soukenická, Chrudim II

12 000 Kč
/za nemovitost
+ energie a služby (3.000,-Kč)
Získejte výhodnou HYPOTÉKU Chci hypotéku

Parametry nemovitosti

AdresaSoukenická, Chrudim II
ID719
StavbaCihlová
Stav objektuVelmi dobrý
Lokalita objektuCentrum obce
Užitná plocha45 m2
Zastavěná plocha55 m2
Podlahová plocha45 m2
Třída energetické náročnostiE - Nehospodárná
Ukazatel energetické náročnosti258 kWh/m2 za rok
Elektřina230V
PlynPlynovod
OdpadVeřejná kanalizace
TopeníÚstřední plynové
TelekomunikaceInternet
DopravaVlak, Dálnice, MHD, Autobus
VodaVodovod
Bezbarierový přístup

Origo partneři v Chrudimi

Popis

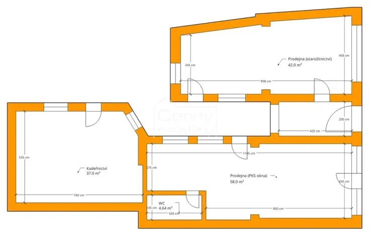
Pronájem obchodního prostoru (42m2), v centru Chrudimi, na adrese, Soukenická čp. 155, Chrudim. Jedná se o komerční prostor, se dvěma vchody a výlohou do Soukenické ulice. Prostor je možné využít jako obchod, kanceláře, sídlo obchodního zastoupení atp.
Prostory mají samostatný plynový kotel. Dále pak toaletu (geberit), umístěnou pod kotlem, umyvadlo a vlastní elektrický bojler nad umyvadlem. V 1.patře je k dispozici další samostatná toaleta. Prostor se dá rozdělit na dvě podobně velké místnosti. Více informací a prohlídku Vám zajistí makléř. ID 155026.

Makléř

Máte zájem o tuto nemovistost?

Tímto, v souladu s nařízením Evropského parlamentu a Rady (EU) 2016/679, v platném znění, prohlašuji, že mi je alespoň 16 let a uděluji tak svůj souhlas se zpracováním zadaných údajů (jméno, telefon, e-mail, ip adresa) společnosti B3 Technology, s.r.o., IČ: 07330600, se sídlem Novostavby 126/23, 435 11 Lom (správce dat), za účelem předání dotazu z tohoto formuláře Vámi vybranému inzerentovi a zpětného kontaktování mé osoby. Osobní údaje bude správce zpracovávat manuálně i automaticky přímo prostřednictvím svých zaměstnanců. Informace předané tímto formulářem budou uloženy v databázi správce maximálně po dobu 10 let. Odvolání souhlasu s uložením a zpracováním poskytnutých dat lze e-mailem na info@origo-reality.cz. V případě podezření na neoprávněné použití Vámi poskytnutých údajů máte právo předat podnět k šetření Úřadu pro ochranu osobních údajů. Více informací
Chystáte se prodat nemovitost?
Pomůžeme Vám!

Přihlášení k odběru

Nenechte si ujít nejnovější nabídky pronájmu obchodních prostor v Chrudimi.