Prodej pozemku pro bydlení, Libníč, 1004 m2

Libníč

4 969 800 Kč
/za nemovitost
Hypotéka od 22 212 Kč /měs. Chci hypotéku

Parametry pozemku

AdresaLibníč
ID06384
Stav objektuVelmi dobrý
Lokalita objektuOkraj obce
Plocha pozemku1004 m2
ElektřinaBez přípojky
KomunikaceAsfaltová
DopravaSilnice, Autobus
Bezbarierový přístup

Origo partneři v Libníči

Výkup a prodej starého nábytku

Popis

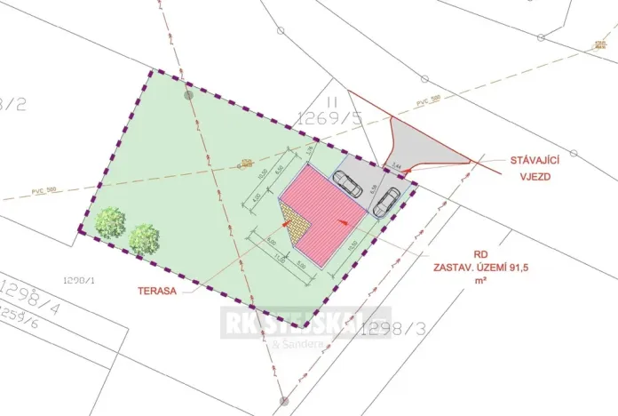
Nabízíme k prodeji stavební pozemek v klidné a vyhledávané obci Libníč, vzdálené pouhých 6 km od centra Českých Budějovic a jen 3 km od nájezdu na dálnici D3.
Pozemek má obdélníkový tvar a rovinatý terén, což výrazně snižuje náklady na terénní úpravy. Prodává se včetně stavebního povolení na rodinný dům.
Plánovaný dům je navržen o dispozici 4+kk až 5+kk s podlahovou plochou přibližně 140 m², přičemž vnitřní dispozici je možné upravit dle individuálních požadavků.
Veškeré inženýrské sítě jsou v dosahu – kanalizace vede přímo přes pozemek, elektřina a obecní vodovod se nacházejí v bezprostřední blízkosti a je možné je snadno připojit. Přístup je zajištěn z obecní komunikace.
V obci nechybí základní občanská vybavenost, například mateřská škola či potraviny. Libníč je ideálním místem pro rodinné bydlení v kontaktu s přírodou – les se nachází necelý kilometr od pozemku. Lokalita nabízí vynikající dopravní dostupnost do města a zároveň klid a soukromí venkovského prostředí.
Neváhejte nás kontaktovat pro více informací nebo si domluvte osobní prohlídku.

Makléř

Máte zájem o tento pozemek?

Tímto, v souladu s nařízením Evropského parlamentu a Rady (EU) 2016/679, v platném znění, prohlašuji, že mi je alespoň 16 let a uděluji tak svůj souhlas se zpracováním zadaných údajů (jméno, telefon, e-mail, ip adresa) společnosti B3 Technology, s.r.o., IČ: 07330600, se sídlem Novostavby 126/23, 435 11 Lom (správce dat), za účelem předání dotazu z tohoto formuláře Vámi vybranému inzerentovi a zpětného kontaktování mé osoby. Osobní údaje bude správce zpracovávat manuálně i automaticky přímo prostřednictvím svých zaměstnanců. Informace předané tímto formulářem budou uloženy v databázi správce maximálně po dobu 10 let. Odvolání souhlasu s uložením a zpracováním poskytnutých dat lze e-mailem na info@origo-reality.cz. V případě podezření na neoprávněné použití Vámi poskytnutých údajů máte právo předat podnět k šetření Úřadu pro ochranu osobních údajů. Více informací
Chystáte se prodat nemovitost?
Pomůžeme Vám!

Přihlášení k odběru

Nenechte si ujít nejnovější nabídky prodeje pozemků pro bydlení v Libníči.