Pronájem obchodního prostoru, Strakonice, Bezděkovská, 58 m2

Bezděkovská, Strakonice II

18 900 Kč
/za měsíc
Cena je uvedena bez DPH
Získejte výhodnou HYPOTÉKU Chci hypotéku

Parametry nemovitosti

AdresaBezděkovská, Strakonice II
ID879
StavbaMontovaná
Stav objektuVelmi dobrý
Lokalita objektuCentrum obce
Užitná plocha58 m2
Zastavěná plocha2500 m2
Podlahová plocha58 m2
Třída energetické náročnostiD - Méně úsporná
Ukazatel energetické náročnosti152 kWh/m2 za rok
Elektřina230V, 400V
TelekomunikaceTelefon, Internet, Kabelové rozvody
DopravaVlak, MHD, Autobus
Výtah
Bezbarierový přístup
Parkování

Origo partneři v Strakonicích

Výkup a prodej starého nábytku

Popis

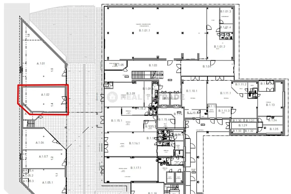
Pronájem obchodního, komerčního prostoru 58,23 m2 v pasáži OC Maxim, v centru okresního města Strakonice, vhodného pro obchod či služby. K dispozici od 1. 6. 2026. Nájemník musí být plátcem DPH! Nabízíme pronájem komerčního prostoru č. 18, č. A.1.02 o rozloze 58,23 m2 v 1.NP (přízemí) OC Maxim v centru Strakonic. Vhodné využití na obchod nebo služby. Jedná se o provozovnu, kde jsou instalovány minerální podhledy, nová světla a nové výkladce i vstupní dveře. Podlahová krytina - dlažba. Světlá výška činí 2,95 m. Manipulace se zbožím je možná z nákladové rampy v zadním traktu budovy prostřednictvím dvou nákladních výtahů. Provozovna se nachází na lukrativním místě, v pasáži (přízemí) hlavní budovy centra.

Vytápění je zajištěno úspornými elektrickými přímotopy. Možnost připojení k internetu za poplatek cca 250 Kč měsíčně (nájemce hradí přímo dodavateli, který sídlí v objektu). Úprava dispozice provozovny je po dohodě možná dle požadavků nájemce.

V nájemném nejsou zahrnuty poplatky za služby ve společných prostorách. Vyúčtování za využívání společných prostor probíhá jednou za rok dle poměru plochy, a to v měsíci červnu, a orientačně činí: vodné/stočné cca 1.200 Kč/rok, společná elektřina cca 5.400 Kč/rok, úklid společných prostor cca 6.200 Kč/rok, svoz a uložení odpadů cca 2.600 Kč/rok. Elektřinu (samostatný elektroměr) si platí nájemce dle skutečné spotřeby, kdy elektroměr je převeden přímo na nájemce. V objektu je k dispozici Wi-Fi připojení zdarma pro zákazníky centra. Energetická náročnost budovy stupeň D - méně úsporná.

Pro svou atraktivní polohu v centru okresního města nabízí OC Maxim rychlou a dostupnou možnost nákupu a služeb, jak pro obyvatele Strakonic, tak i pro náhodné návštěvníky a turisty. Velkou výhodou je možnost zaparkování na přilehlých parkovištích, ať už placených či neplacených. Všechna placená parkoviště v okolí jsou prvních 30 minut zdarma. V OC Maxim naleznete 42 provozoven na 4.200 m2 prodejní plochy. Budova prošla během roku 2011 kompletní stavební rekonstrukcí, která spočívala v zateplení objektu, výměně oken, výměně výkladců, výměně dveří a úpravě vnitřních prostor. Celý objekt vytváří v současné době svou koncepcí i novým, atraktivním vzhledem příjemné prostředí pro zákazníky i nájemce. Nájemci mohou po dohodě využít reklamní plochy centra.

Nabízený prostor je k dispozici od května 2026. Nájemce musí být plátce DPH! Pokud Vám nevyhovuje tento prostor, a hledáte atraktivní prostory pro své podnikání, neváhejte nás kontaktovat telefonicky na čísle 602 271 334. Vždy jsme schopni nabídnout různorodé prostory od malých či sdílených prostor, až po velké provozovny, vše v různých cenových relacích dle konkrétního umístění.

Makléř

Máte zájem o tuto nemovistost?

Tímto, v souladu s nařízením Evropského parlamentu a Rady (EU) 2016/679, v platném znění, prohlašuji, že mi je alespoň 16 let a uděluji tak svůj souhlas se zpracováním zadaných údajů (jméno, telefon, e-mail, ip adresa) společnosti B3 Technology, s.r.o., IČ: 07330600, se sídlem Novostavby 126/23, 435 11 Lom (správce dat), za účelem předání dotazu z tohoto formuláře Vámi vybranému inzerentovi a zpětného kontaktování mé osoby. Osobní údaje bude správce zpracovávat manuálně i automaticky přímo prostřednictvím svých zaměstnanců. Informace předané tímto formulářem budou uloženy v databázi správce maximálně po dobu 10 let. Odvolání souhlasu s uložením a zpracováním poskytnutých dat lze e-mailem na info@origo-reality.cz. V případě podezření na neoprávněné použití Vámi poskytnutých údajů máte právo předat podnět k šetření Úřadu pro ochranu osobních údajů. Více informací
Chystáte se prodat nemovitost?
Pomůžeme Vám!

Přihlášení k odběru

Nenechte si ujít nejnovější nabídky pronájmu obchodních prostor v Strakonicích.