Prodej rodinného domu, Kladno, Otmara Zinkeho, 106 m2 (ID: 1990535)

Otmara Zinkeho, Kladno

Rezervováno
12 490 000 Kč
/za nemovitost
Hypotéka od 55 823 Kč /měs. Chci hypotéku

Parametry domu

StavRezervováno
AdresaOtmara Zinkeho, Kladno
StavbaCihlová
Stav objektuNovostavba
Lokalita objektuKlidná část obce
Užitná plocha106 m2
Plocha pozemku277 m2
Třída energetické náročnostiB - Velmi úsporná
Ukazatel energetické náročnosti76 kWh/m2 za rok
Elektřina230V
PlynPlynovod
OdpadVeřejná kanalizace
KomunikaceAsfaltová
DopravaVlak, Dálnice, Silnice, MHD, Autobus
VodaVodovod
Topné tělesoPodlahové vytápění
Zdroj topeníPlynový kondenzační kotel, Krb
Parkování

Origo partneři v Kladně

Popis

Nabízím k prodeji polovinu dvojdomu, vedenou jako bytová jednotka č. 2 v rodinném domě o dvou bytových jednotkách.

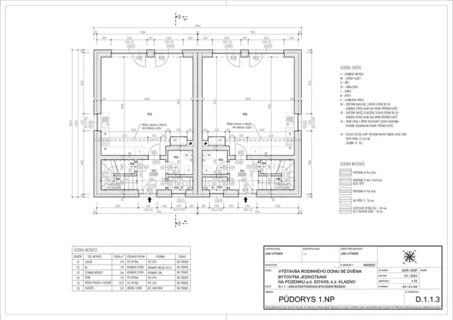
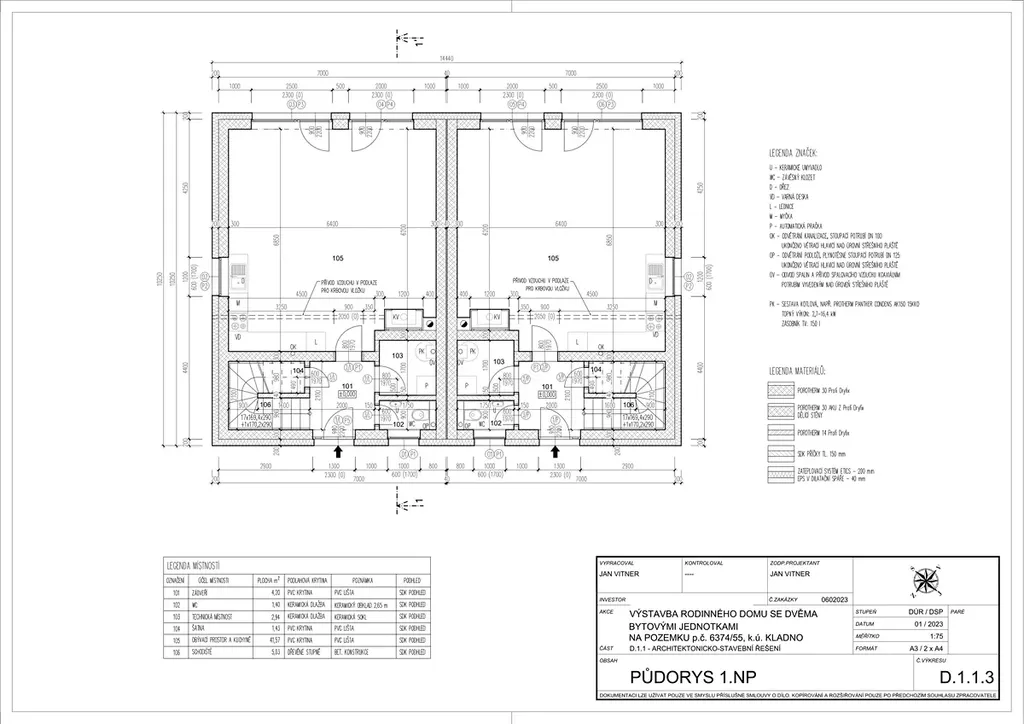
Jednotka disponuje podlahovou plochou 106 m2. V 1 NP se nachází velký obývací pokoj s kuchyňským koutem o výměře 41 m2, vstupní hala, technická místnost, toaleta s umyvadlem a šatna pod schodištěm. Kuchyně s vestavěnými spotřebiči zn. Candy je součástí prodeje. Obývací pokoj je prosvětlen velkými francouzskými okny a v jeho rohu je připravený komín na instalaci krbových kamen. V technické místnosti je umístěn centrální kotel a připravený přívod vody a odpad pro pračku se sušičkou.

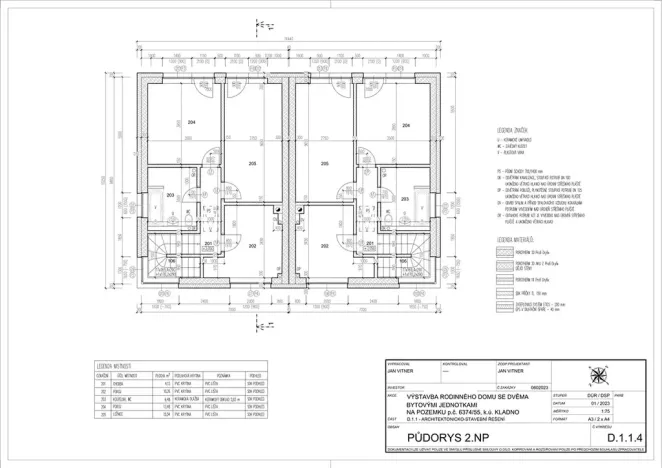
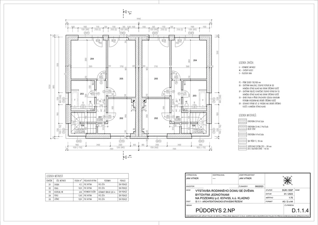
Ve druhém nadzemním podlaží se nachází tři ložnice o výměrách 10,3 m2, 13,5 m2 a 15,5 m2 a prostorná koupelna v moderním stylu se sprchovým koutem i vanou. Podkroví disponuje dostatkem prostoru pro uložení všech sezonních věcí.

Stavebně technické parametry stavby:

stavba provedena z betonových tvárnic Neico a zateplena polystyrenem o tloušťce 20 cm, okna sedmikomorová s trojskly, podlahové topení v celém domě, plynový kondenzační kotel Bosch, alarm Jablotron + kamerový systém, klimatizace Fujitsu v obývacím pokoji.

Stavba provedena v energetické třídě B.

K jednotce č. 2 náleží společné užívání parkovací plochy před domem o výměře 135 m2 (plocha A v plánku) s druhou jednotkou a výhradní užívání zahrady o výměře 135 m2 (plocha C v plánku).

Lokalita patří v nejžádanějším v rámci města Kladna pro svou unikátní polohu v sousedství lesů, klidný rezidenční ráz, veškerou občanskou vybaveností v dosahu a perfektní spojením do Prahy ať už autem po D6 nebo vlakem či autobusem.

Více informací Vám ráda poskytnu kdykoliv telefonicky nebo přímo osobně na prohlídce.

Makléř

Máte zájem o tento dům?

Tímto, v souladu s nařízením Evropského parlamentu a Rady (EU) 2016/679, v platném znění, prohlašuji, že mi je alespoň 16 let a uděluji tak svůj souhlas se zpracováním zadaných údajů (jméno, telefon, e-mail, ip adresa) společnosti B3 Technology, s.r.o., IČ: 07330600, se sídlem Novostavby 126/23, 435 11 Lom (správce dat), za účelem předání dotazu z tohoto formuláře Vámi vybranému inzerentovi a zpětného kontaktování mé osoby. Osobní údaje bude správce zpracovávat manuálně i automaticky přímo prostřednictvím svých zaměstnanců. Informace předané tímto formulářem budou uloženy v databázi správce maximálně po dobu 10 let. Odvolání souhlasu s uložením a zpracováním poskytnutých dat lze e-mailem na info@origo-reality.cz. V případě podezření na neoprávněné použití Vámi poskytnutých údajů máte právo předat podnět k šetření Úřadu pro ochranu osobních údajů. Více informací
Chystáte se prodat nemovitost?
Pomůžeme Vám!

Přihlášení k odběru

Nenechte si ujít nejnovější nabídky prodeje rodinných domů v Kladně.