Prodej bytu 3+1, Brno, Krásného, 55 m2

Krásného, Brno, Židenice

8 100 000 Kč
/za nemovitost
včetně provize
Hypotéka od 36 202 Kč /měs. Chci hypotéku

Parametry bytu

AdresaKrásného, Brno, Židenice
ID01532
StavbaPanelová
Stav objektuVelmi dobrý
Patro4. z 7
VybavenoNe
Lokalita objektuKlidná část obce
VlastnictvíOsobní
Užitná plocha55 m2
Třída energetické náročnostiD - Méně úsporná
Ukazatel energetické náročnosti117 kWh/m2 za rok
Balkon
Sklep
Výtah

Origo partneři v Brně

Popis

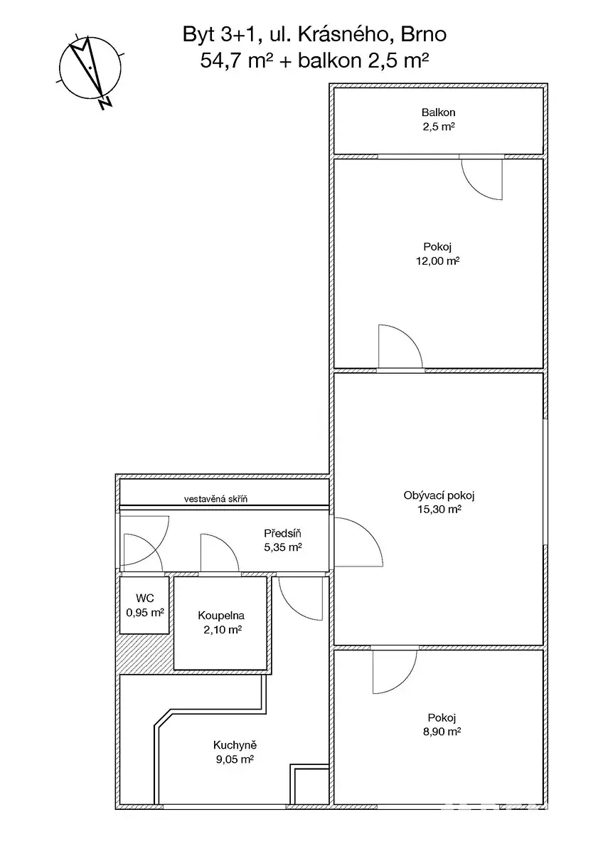
Nabízíme ke koupi byt v osobním vlastnictví o dispozici 3+1, který je umístěný ve 4. patře panelového bytového domu s výtahem na ul. Krásného v Brně - Juliánově v blízkosti lesoparku Bílá hora. Celková podlahová plocha bytu včetně příslušenství činí 54,7 m2 + balkon 2,5 m2. K bytu náleží sklepní box a dále je možné využívat společnou kolárnu a sušárnu v přízemí domu.
Z předsíně bytu je možné vstoupit do kuchyně (8,7 m2), obývacího pokoje (15,3 m2), do koupelny a na toaletu. Z obývacího pokoje jsou přístupné dvě ložnice (12 m2 a 8,9 m2). K větší z nich přiléhá balkon s hezkým výhledem, orientovaný jižním směrem. Byt je díky své poloze velmi dobře osvětlen.
Byt je po kompletní rekonstrukci, byla provedena nová elektroinstalace, vyměněna okna za plastová, instalovány bezpečnostní vstupní dveře a vnitřní dveře. Byt je vybaven kuchyňskou linkou s plynovou varnou deskou, elektrickou troubou, myčkou, digestoří a mikrovlnnou troubou, vestavěnou šatní skříní v předsíni a horizontálními žaluziemi v oknech. Koupelna je vybavena vanou, umyvadlem se skříňkou a zrcadlem. Toaleta je umístěna samostatně.
Měsíční zálohové platby za služby spojené s užíváním bytu (voda, teplo, fond oprav, společné výdaje domu) činí pro dvě osoby 6.118,- Kč za měsíc. Dále je hrazena spotřeba elektřiny a plynu cca 1.000,-Kč za měsíc. V bytě jsou instalovány veškeré měřiče energií.
Dům, ve kterém se byt nachází, prošel celkovou opravou a revitalizací. Společenství vlastníků jednotek nesplácí žádný úvěr.
Dům je situován v klidné části Juliánova, v blízkosti domu je zastávka MHD. V nejbližším okolí je veškerá občanská vybavenost (nákupní středisko, koupaliště, restaurace, dětské hřiště, sportoviště, základní i mateřská škola). Nedaleko je lesopark Bílá hora, který lze využívat k procházkách a relaxaci.
Nemovitost je vhodná k bydlení i jako investice za účelem pronájmu. Byt je možné použít jako zástavu v případě financování koupě prostřednictvím úvěru.
Pokud Vás tento byt zaujal, domluvte si se mnou osobní prohlídku. Zajištění hypotečního servisu na míru a další služby dle individuálních potřeb klienta jsou samozřejmostí.

Makléř

Máte zájem o tento byt?

Tímto, v souladu s nařízením Evropského parlamentu a Rady (EU) 2016/679, v platném znění, prohlašuji, že mi je alespoň 16 let a uděluji tak svůj souhlas se zpracováním zadaných údajů (jméno, telefon, e-mail, ip adresa) společnosti B3 Technology, s.r.o., IČ: 07330600, se sídlem Novostavby 126/23, 435 11 Lom (správce dat), za účelem předání dotazu z tohoto formuláře Vámi vybranému inzerentovi a zpětného kontaktování mé osoby. Osobní údaje bude správce zpracovávat manuálně i automaticky přímo prostřednictvím svých zaměstnanců. Informace předané tímto formulářem budou uloženy v databázi správce maximálně po dobu 10 let. Odvolání souhlasu s uložením a zpracováním poskytnutých dat lze e-mailem na info@origo-reality.cz. V případě podezření na neoprávněné použití Vámi poskytnutých údajů máte právo předat podnět k šetření Úřadu pro ochranu osobních údajů. Více informací
Chystáte se prodat nemovitost?
Pomůžeme Vám!

Přihlášení k odběru

Nenechte si ujít nejnovější nabídky prodeje bytů 3+1 v Brně.